Ga naar content

Zaandammerstraat 12

  • 263 m2 woonoppervlakte
  • 5 slaapkamers
  • Bouwjaar 1930
  • 489 m2 perceel

Vrijstaande woning op nieuwe fundering met eindeloze mogelijkheden!

Aan de Zaandammerstraat in Wormer staat een woning die méér is dan alleen groot: dit is een huis met mogelijkheden. Ooit bestond dit pand uit twee afzonderlijke woningen (nummers 10 en 12) en die indeling is nog altijd voelbaar aanwezig. Dat maakt deze vrijstaande woning bijzonder geschikt voor wie samen wil wonen, maar toch zelfstandig – denk aan ouders, oudere kinderen of een combinatie van wonen en werken aan huis. Met een royale woonoppervlakte van circa 263 m², een diep perceel en parkeren op eigen terrein is dit een plek waar ruimte, flexibiliteit en comfort samenkomen.

Indeling:
Zodra je binnenkomt, wordt direct duidelijk hoe bijzonder de opzet van deze woning is. De begane grond is namelijk nog steeds ingericht met het oorspronkelijke tweewoningenconcept in gedachten. Aan beide zijden van het huis is een keuken aanwezig, wat het eenvoudig maakt om de woning (opnieuw) te splitsen in twee zelfstandige woongedeelten. Aan de zijde van het voormalige nummer 10 is bovendien al rekening gehouden met de aanleg voor een badkamer, terwijl aan de zijde van nummer 12 een toiletaansluiting beschikbaar is. Hierdoor is de basis voor dubbele bewoning, mantelzorg of inwonende (volwassen) kinderen al gelegd, zonder ingrijpende verbouwingen.

De leefruimtes zijn royaal en licht, met volop mogelijkheden om meerdere zit- en leefhoeken te creëren. Verwarming en sfeer komen van de aanwezige houtkachel, die het huis in de koudere maanden een warme, huiselijke uitstraling geeft.

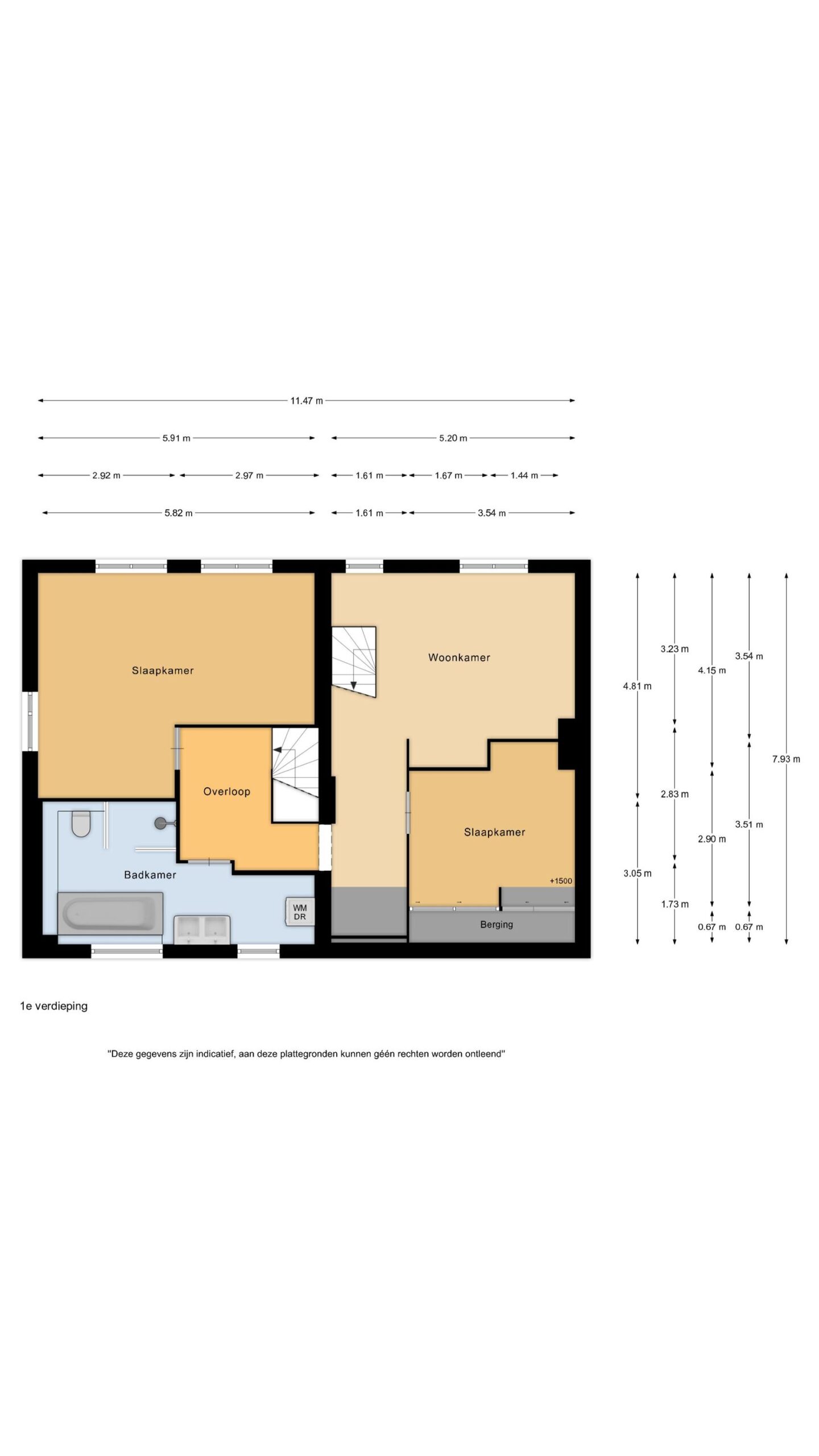
Op de eerste verdieping bevinden zich in 2 slaapkamers, tweede woonkamer (of derde slaapkamer) en de moderne badkamer voorzien van onder andere een ligbad, dubbele wastafel en een inloopdouche, een fijne plek om de dag ontspannen te beginnen of af te sluiten. De tweede verdieping biedt 2 extra slaapkamers en de tweede badkamer en voldoende bergruimte.

Ook buiten is de ruimte indrukwekkend. Het perceel van circa 489 m² biedt een royale achtertuin, met volop privacy en mogelijkheden voor meerdere terrassen, speelruimte of groen. Parkeren kan op eigen terrein, wat in deze omgeving een groot pluspunt is. Achter in de tuin staat een grote vrijstaande garage, perfect voor auto’s, motoren, opslag of als klus- en hobbyruimte.

Kenmerken
Bouwjaar: 1930
Perceeloppervlakte: 489 m²
Woonoppervlakte: 263 m²
Inhoud: 913 m³
Energielabel: B

Ligging:
In Wormer kom je niets te kort. Het centrum bevindt zich op loopafstand, hier vind je verschillende winkels en op vrijdag haal je hier allerlei verse boodschappen op de markt. Ook aan sportief recreëren is in Wormer gedacht, denk aan verschillende tennisverenigingen en voetbalvereniging WSV ’30. De omgeving leent zich ook uitstekend om in allerlei vormen in en rond het water te sporten, als uitgangspunt van prachtige fietstochten of gewoonweg te genieten van de vrije natuur. Het kindvriendelijke dorp beschikt verder over 4 basisscholen en goede kinderopvang. 

BIJZONDERHEDEN
* Vrijstaande woning met oorspronkelijke twee-woonhuisindeling;
* Ideaal voor meergeneratiewonen, mantelzorg, inwonende kinderen of werken aan huis;
* Parkeren op eigen terrein;
* Grote vrijstaande garage en een berging achter in de tuin;
* 26 zonnepanelen aanwezig;
* Fundering hersteld in 2016.

Aanvaarding in overleg.
Interesse in dit huis? Schakel direct jouw eigen NVM-aankoopmakelaar in. Jouw NVM-aankoopmakelaar komt op voor jouw belang en bespaart je tijd, geld en zorgen. Adressen van collega NVM-aankoopmakelaars vind je op Funda.

Alles over deze woning
Overdracht
Prijs€ 900.000 k.k.
StatusBeschikbaar
AanvaardingIn overleg
Aangeboden sinds7 januari 2026
Bouw
Type objectWoonhuis
SoortEengezinswoning
TypeVrijstaande woning
Bouwjaar1930
Dak typeSamengesteld dak
IsolatievormenDakisolatie, Muurisolatie, Vloerisolatie
Oppervlaktes en inhoud
Perceel489 m2
Woonoppervlakte263 m2
Inhoud913 m3
Buitenruimtes gebouwgebonden of vrijstaand0 m2
Tuinoppervlakte350 m2
Indeling
Aantal kamers7
Aantal slaapkamers5
Locatie
LiggingAan drukke weg, In centrum, In woonwijk
Tuin
TypeAchtertuin
StaatFraai aangelegd
LiggingWest
AchteromJa
Uitrusting
Soorten warm waterCV ketel
Parkeer faciliteitenOpenbaar parkeren, Op eigen terrein
Virtuele tour
Ik ben Erik Hempenius, NVM Register Makelaar-Taxateur / Regiomanager bij Brantjes Wormerland. Het plannen van een bezichtiging is de eerste stap in de zoektocht naar jouw droomhuis. Ik kijk ernaar uit je binnenkort te ontmoeten en je te helpen bij het vinden van jouw nieuwe thuis!

Plattegronden

Verken de locatie Zaandammerstraat 12
Ik ben Erik Hempenius, NVM Register Makelaar-Taxateur / Regiomanager bij Brantjes Wormerland. Het plannen van een bezichtiging is de eerste stap in de zoektocht naar jouw droomhuis. Ik kijk ernaar uit je binnenkort te ontmoeten en je te helpen bij het vinden van jouw nieuwe thuis!