Ga naar content

Willem Sijpesteijnstraat 14

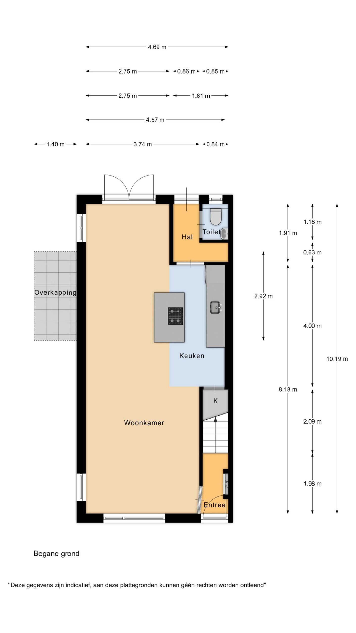
  • 78 m2 woonoppervlakte
  • 3 slaapkamers
  • Bouwjaar 1954
  • 193 m2 perceel

Nette uitgebouwde hoekwoning met parkeergelegenheid op eigen terrein!

Hier, aan een rustige straat in Assendelft, is zoeken naar een parkeerplek voorgoed verleden tijd, want je parkeert je auto gemakkelijk op eigen terrein!

Direct bij binnenkomst vallen de massief houten vloer en de verzorgde staat van de woning op. De leefruimte op de begane grond is verruimd met een riante uitbouw, die het comfort merkbaar vergroot en de woonkamer een royale uitstraling geeft. Het echte hart van de woning is de warme, open keuken met een stijlvol kookeiland, uitgerust met een groot vijfpitsgasfornuis en een grandioze oven — een droomopstelling voor wie graag en veel kookt. De keuken staat in open verbinding met de woonkamer, wat zorgt voor een gezellige en sociale sfeer. In de woning is heel veel HR++ isolatieglas, waardoor ook het geluid van buiten goed wordt gedempt.

Aan de voorzijde vinden we de ruime zithoek, met meer dan voldoende ruimte voor een ruime hoekbank. Aan de achterzijde bevindt zich de eettafel; hier is genoeg ruimte voor een zespersoonstafel. De grote openslaande deuren zorgen voor veel natuurlijk daglicht op deze plek.

Via de hal leidt de trap naar de verdieping, waar drie lichte en goed bemeten slaapkamers wachten — ook uitstekend te gebruiken als hobby- of werkkamer. De kamer aan de achterzijde is de ruimste en beschikt over veel lichtinval. Dit komt door de dakkapel aan de achterzijde van de woning. In de muren van de kamers bevinden zich inbouwkasten. De badkamer is netjes en voorzien van een inloopdouche met glazen afscheiding, een wastafelmeubel en een toilet. Ook de wasmachineopstelling bevindt zich praktisch op deze verdieping.

Dankzij de hoekligging beschikt de woning over een toegankelijke zijgang die de voor- en achtertuin met elkaar verbindt — ideaal voor dagelijks gebruik. De achtertuin, gelegen op het zuidoosten en met een oppervlakte van maar liefst 83 m², biedt volop ruimte om te ontspannen, te tuinieren of gezellig buiten te zitten. De separate berging met overkapping is niet alleen ideaal voor het stallen van fietsen, maar biedt ook een heerlijke beschutte plek om tot in de late uurtjes buiten te zitten. De woning heeft aan de buitenzijde een welverdiende opknapbeurt gekregen: de voegen zijn vernieuwd en de gevel is gereinigd en geïmpregneerd. Dat beschermt de woning op de lange termijn en voorkomt toekomstige zorgen. Laten we een kijkje binnen nemen.

Kortom: een goed onderhouden, sfeervol ingerichte hoekwoning met een ruim perceel, royale buitenruimte en een prachtige open keuken — een woning die direct uitnodigt om thuis te komen.

– Bouwjaar: 1954
– Woonoppervlakte: 78 m²
– Perceeloppervlakte: 193 m² eigen grond
– Energielabel: D

De ligging van Willem Sijpensteijnstraat 14 in Assendelft is uitstekend. Voor de dagelijkse boodschappen zijn diverse supermarkten op korte afstand bereikbaar. Scholen, sportverenigingen en andere voorzieningen bevinden zich eveneens in de directe omgeving. De woning is goed bereikbaar met zowel de auto als het openbaar vervoer. Met de auto rijd je in circa 15 minuten naar Zaandam, 25 minuten naar Amsterdam en bereik je Alkmaar of de kust in ongeveer 30 minuten. NS-station Krommenie-Assendelft en NS-station Zaandam bieden uitstekende treinverbindingen richting Amsterdam, Alkmaar en Beverwijk. Amsterdam Centraal is per trein in circa 25 minuten bereikbaar.

Bijzonderheden:
– Karakteristieke hoekwoning met ruim perceel van 193 m²; HR++
– Goed onderhouden woning met nieuwe voegen en een gereinigde en geïmpregneerde gevel;
– Parkeergelegenheid op eigen terrein;
– Open keuken met kookeiland;
– Recent vernieuwde meterkast;
– Drie slaapkamers op de verdieping;
– 2020 bgg vloer vervangen en kruipruimte isolatie aangebracht;
– Ideale ligging ten opzichte van dagelijkse voorzieningen;
– Oplevering in overleg.

Interesse in dit huis? Schakel direct je eigen NVM-aankoopmakelaar in. Jouw NVM-aankoopmakelaar komt op voor jouw belangen en bespaart je tijd, geld en zorgen. Adressen van collega NVM-aankoopmakelaars vind je op Funda.

Alles over deze woning
Overdracht
Prijs€ 350.000 k.k.
StatusOnder bod
AanvaardingIn overleg
Aangeboden sinds9 maart 2026
Bouw
Type objectWoonhuis
SoortEengezinswoning
TypeHoekwoning
Bouwjaar1954
Dak typeZadeldak
IsolatievormenMuurisolatie, Vloerisolatie, Dubbelglas
Oppervlaktes en inhoud
Perceel193 m2
Woonoppervlakte78 m2
Inhoud266 m3
Buitenruimtes gebouwgebonden of vrijstaand4 m2
Tuinoppervlakte133 m2
Indeling
Aantal kamers4
Aantal slaapkamers3
Locatie
LiggingIn woonwijk
Tuin
TypeAchtertuin
StaatNormaal
LiggingZuidoost
AchteromJa
Uitrusting
Soorten warm waterCV ketel
Parkeer faciliteitenOpenbaar parkeren, Op eigen terrein
Virtuele tour
Ik ben Corno Pronk, NVM Register Makelaar-Taxateur / Vestigingsmanager bij Brantjes Assendelft. Het plannen van een bezichtiging is de eerste stap in de zoektocht naar jouw droomhuis. Ik kijk ernaar uit je binnenkort te ontmoeten en je te helpen bij het vinden van jouw nieuwe thuis!

Plattegronden

Verken de locatie Willem Sijpesteijnstraat 14
Ik ben Corno Pronk, NVM Register Makelaar-Taxateur / Vestigingsmanager bij Brantjes Assendelft. Het plannen van een bezichtiging is de eerste stap in de zoektocht naar jouw droomhuis. Ik kijk ernaar uit je binnenkort te ontmoeten en je te helpen bij het vinden van jouw nieuwe thuis!