Ga naar content

Warande 45

  • 185 m2 woonoppervlakte
  • 3 slaapkamers
  • Bouwjaar 1960
  • 671 m2 perceel

Warande 45 – Unieke vrijstaande villa bij Park Westerhout

Met trots presenteren wij Warande 45, een unieke vrijstaande villa op een van de mooiste locaties van Beverwijk. Gelegen aan de geliefde Warande, op steenworp afstand van het prachtige Park Westerhout, combineert deze woning karakter, ruimte en een uitzonderlijke ligging.

Deze villa biedt een perfecte balans tussen stijlvol wonen en functionele ruimte. De indeling is verrassend: beneden is er volop plek om te werken of te ontspannen, terwijl het woongedeelte boven comfort en licht uitstraalt. Dankzij het royale perceel van 671 m² geniet je hier van rust, ruimte en maximale privacy.

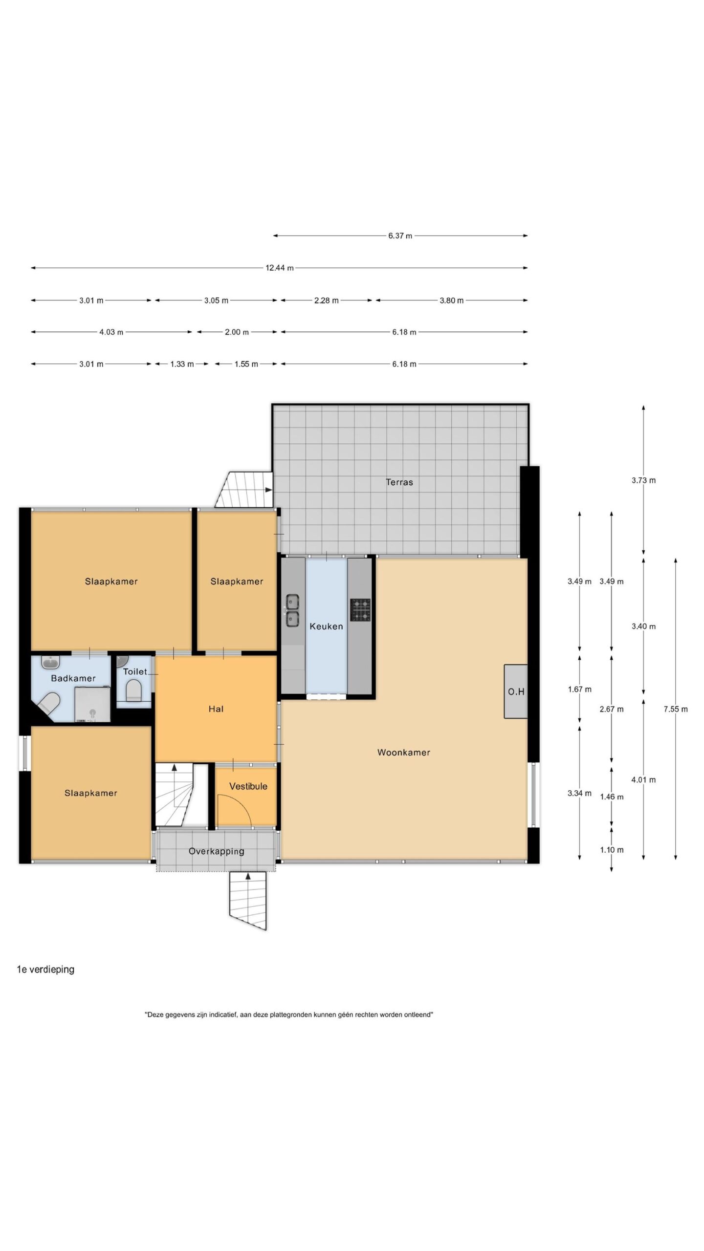
De tuin rondom is groen en verzorgd, met meerdere terrassen waar je op elk moment van de dag van de zon kunt genieten. Het ruime terras op het zuidoosten is de ideale plek voor een kop koffie in de ochtendzon of een lange zomeravond met vrienden.

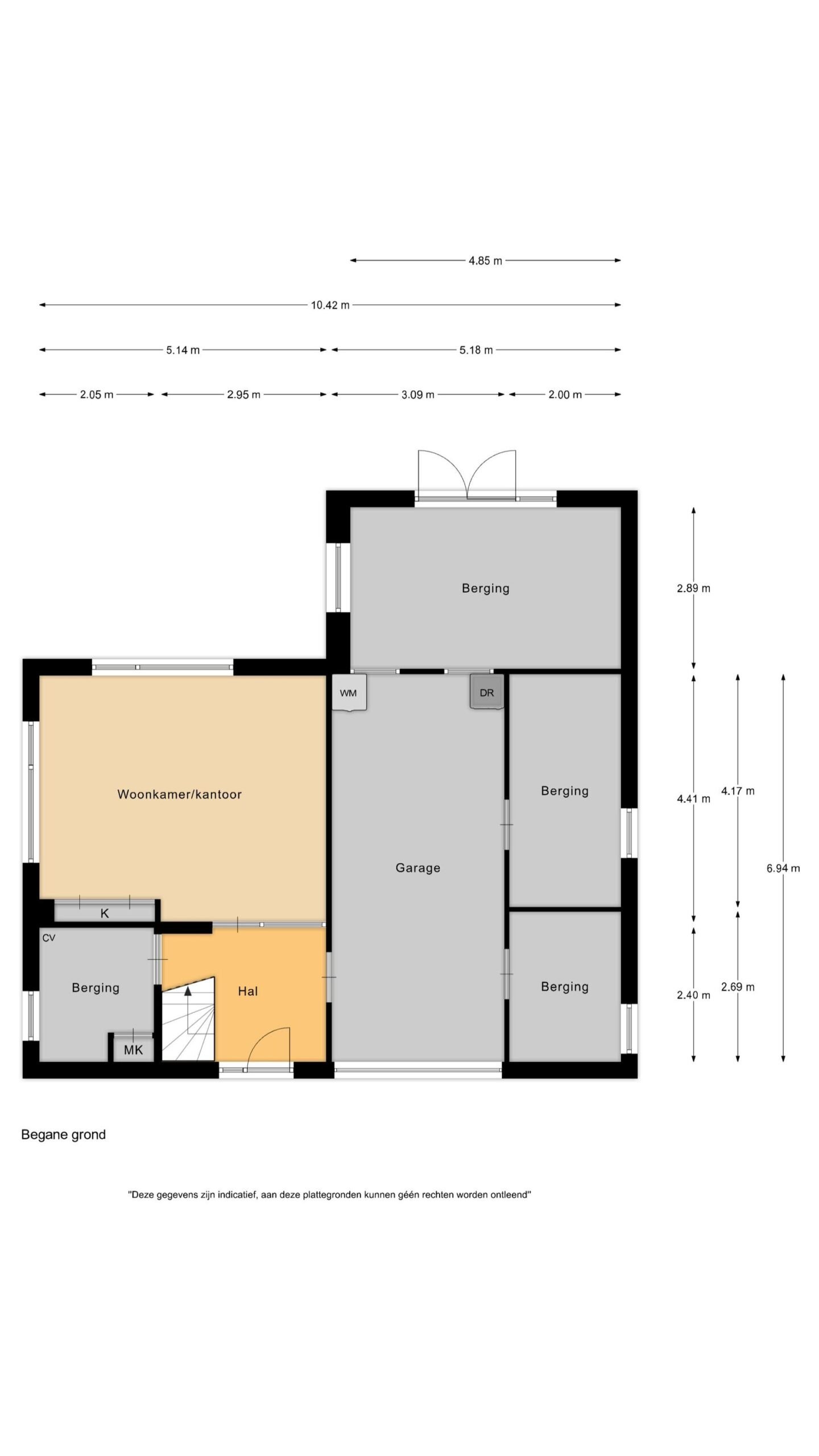
In het souterrain bevinden zich de garage met elektrische deur en meerdere bergingen, samen goed voor een overvloed aan praktische ruimte. Perfect voor opslag, hobby’s of het stallen van fietsen en gereedschap.

Bouwjaar: 1960
Woonoppervlakte: ca. 185 m² (inclusief overige inpandige ruimte souterrain)
Gebouwgebonden buitenruimte: 23 m² (terras)
Inhoud: 603 m³

Volop mogelijkheden op de begane grond

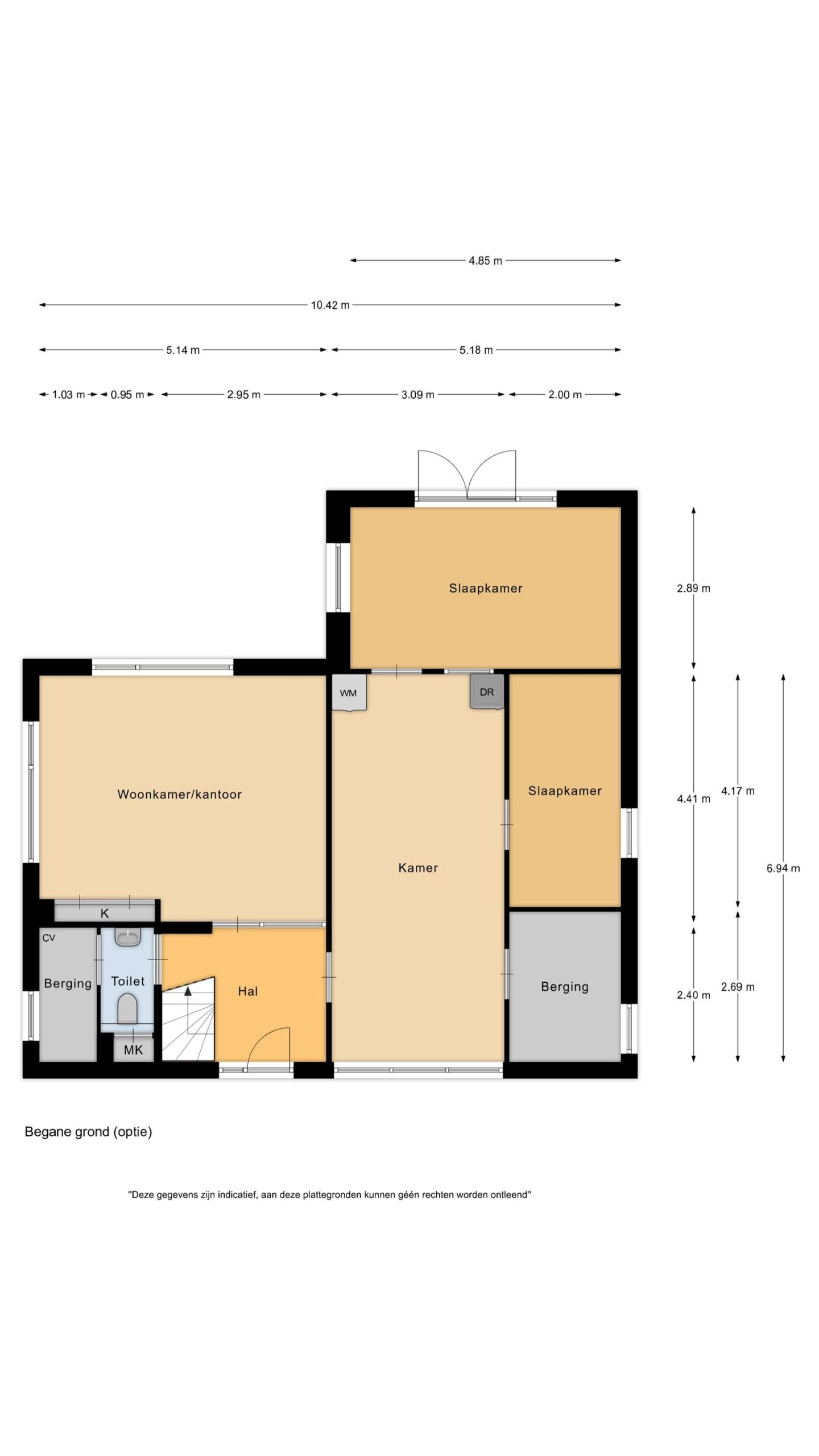
De benedenverdieping met garage en souterrain biedt een schat aan ruimte en talloze mogelijkheden. Met relatief eenvoudige aanpassingen kun je hier een volwaardige extra woonlaag realiseren.

Zo ontstaat de kans om gelijkvloers te wonen, gasten comfortabel te ontvangen of zelfs een zelfstandige woonunit te creëren. Ook leent deze ruimte zich uitstekend voor een kantoor, praktijk of atelier aan huis – ideaal voor wie wonen en werken wil combineren.

Kortom, Warande 45 is een woning die met je meegroeit en zich moeiteloos aanpast aan iedere levensfase. Een bijzonder thuis op een uitzonderlijke plek.

Bijzonderheden:
– een van de mooiste locaties van Beverwijk;
– royale leefruimtes met veel lichtinval;
– meerdere slaapkamers en een badkamer op de verdieping;
– souterrain met garage en veel bergruimte;
– mogelijkheden in de souterrain (zie indicatieve plattegrond);
– oprit met plaats voor meerdere auto’s;
– op korte afstand van winkels, scholen, openbaar vervoer en de duinen.

Interesse in dit huis? Schakel direct je eigen NVM-aankoopmakelaar in.
Jouw NVM-aankoopmakelaar komt op voor jouw belang en bespaart je tijd, geld en zorgen.
Adressen van collega NVM-aankoopmakelaars vind je op Funda.

Alles over deze woning
Overdracht
Prijs€ 835.000 k.k.
StatusVerkocht onder voorbehoud
AanvaardingIn overleg
Aangeboden sinds12 november 2025
Bouw
Type objectWoonhuis
SoortVilla
TypeVrijstaande woning
Bouwjaar1960
Dak typePlat dak
Oppervlaktes en inhoud
Perceel671 m2
Woonoppervlakte185 m2
Inhoud603 m3
Buitenruimtes gebouwgebonden of vrijstaand23 m2
Indeling
Aantal kamers5
Aantal slaapkamers3
Locatie
LiggingAan park, In woonwijk
Tuin
TypeTuin rondom
StaatVerzorgd
AchteromJa
Uitrusting
Soorten warm waterCV ketel
Parkeer faciliteitenOpenbaar parkeren, Op eigen terrein
Virtuele tour
Ik ben Lars Verhoef, NVM Register Makelaar-Taxateur/ Regiomanager bij Brantjes Beverwijk. Het plannen van een bezichtiging is de eerste stap in de zoektocht naar jouw droomhuis. Ik kijk ernaar uit je binnenkort te ontmoeten en je te helpen bij het vinden van jouw nieuwe thuis!

Plattegronden

Verken de locatie Warande 45
Ik ben Lars Verhoef, NVM Register Makelaar-Taxateur/ Regiomanager bij Brantjes Beverwijk. Het plannen van een bezichtiging is de eerste stap in de zoektocht naar jouw droomhuis. Ik kijk ernaar uit je binnenkort te ontmoeten en je te helpen bij het vinden van jouw nieuwe thuis!