Ga naar content

Voorsteven 68

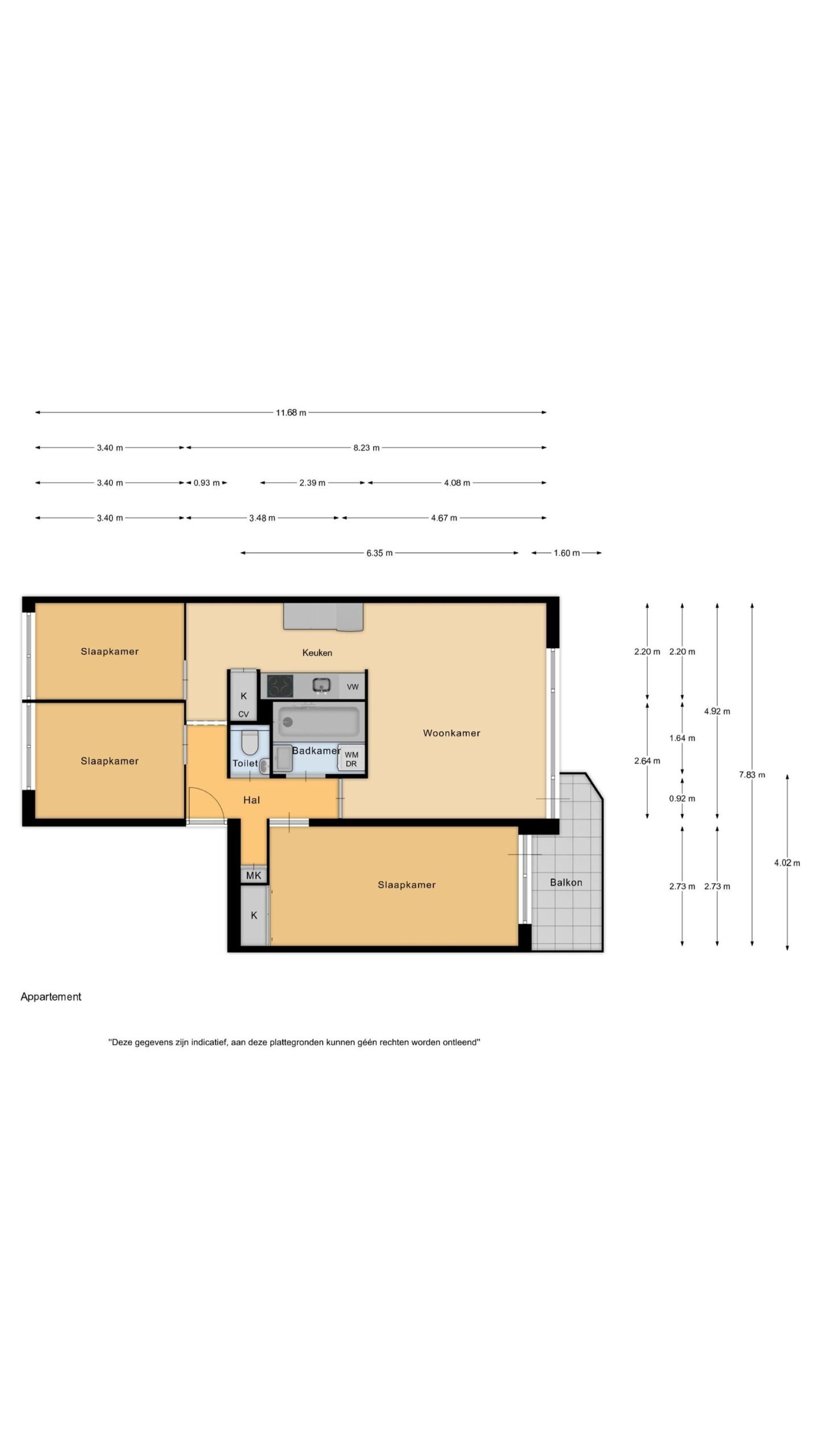
  • 76 m2 woonoppervlakte
  • 3 slaapkamers
  • Bouwjaar 1977

Voorsteven 68: 76 m² wooncomfort, 4 kamers en een fenomenaal uitzicht over het groene Kadoelerscheg. De erfpacht is EEUWIGDUREND afgekocht, dus geen erfpachtkosten meer, nu en in de toekomst!

Zodra je binnenstapt in de hal, merk je direct de logische indeling die alle kamers van het appartement met elkaar verbindt. De woonkamer vormt het hart van je nieuwe thuis en valt op door de enorme hoeveelheid licht. Door de grote raampartijen stroomt het zonlicht naar binnen, waardoor er een lichte en inspirerende plek ontstaat waar je met gemak een knusse zithoek én eethoek kwijt kunt. De rustige, neutrale afwerking is de perfecte basis om de ruimte helemaal naar jouw eigen smaak in te richten. De moderne keuken uit 2019 is slim en praktisch ingericht met diverse inbouwapparaten, wat dagelijks koken echt een plezier maakt.

Je hebt hier de luxe van drie ruime slaapkamers, wat je alle vrijheid geeft. Of je nu een grote master-bedroom zoekt, een rustige plek voor je thuiswerkplek of een gezellige kamer voor de kinderen; de ruimte is er. De badkamer is in 2014 gerenoveerd en ziet er keurig uit, voorzien van een bubbelbad met douche, wastafelmeubel en de aansluitingen voor je wasmachine en droger. De wc-ruimte is apart en beschikt over een elektrische bidet-toiletcombinatie, wat in het dagelijks gebruik natuurlijk erg fijn is.

Op je balkon van circa 6 m², dat bereikbaar is vanuit zowel de woonkamer als de master bedroom, geniet je van een uitzicht dat nooit verveelt: je kijkt prachtig uit over het groen van het Kadoelerscheg waar het water van De Nieuwe Gouw doorheen stroomt. Daarnaast heb je op het balkon een heerlijke zonligging op het westen. Dat betekent dat je vanaf de middag tot in de late uurtjes kunt genieten van de zon, terwijl je uitkijkt over het park.

Wat dit appartement echt uniek maakt, is dat je helemaal klaar bent voor de toekomst. Met een energielabel A en goede isolatie (muur, vloer en HR+ glas) woon je hier comfortabel met lage energielasten. Ook het complex zelf is goed aangepakt met een recente gevelrenovatie, kunststof kozijnen en een vernieuwd, geïsoleerd dak. Voor je extra spullen of je fiets heb je ook nog een eigen berging van 4 m² in de onderbouw.

Kortom, dit appartement combineert de rust van de natuur met de energie van Amsterdam Noord. Alles is tot in de puntjes verzorgd, van de lichte kamers tot de afgekochte erfpacht. Kom het zelf ervaren en bel Brantjes voor een bezichtiging!

– Bouwjaar: 1977
– Woonoppervlakte: 76 m²
– Energielabel: A
– Erfpacht eeuwigdurend afgekocht

Voorsteven 68 is gelegen in een rustige woonwijk in Amsterdam-Noord, een buurt die bekendstaat om haar groene karakter en prettige leefomgeving. In de directe omgeving vind je winkels, scholen, sportvoorzieningen en openbaar vervoer. Ook de bereikbaarheid is uitstekend: met de fiets, de auto of het openbaar vervoer ben je snel in het centrum van Amsterdam, terwijl je thuis juist geniet van rust en ruimte. Parkeren kan met een parkeervergunning, er is een mogelijkheid tot twee vergunningen.

Bijzonderheden:
– Ruim appartement met 3 slaapkamers;
– Keuken vernieuwd in 2019;
– De meterkast is in 2019 vernieuwd en zijn er nieuwe groepen geplaatst voor de inductiekookplaat;
– Mechanische ventilatie en domoticasysteem aanwezig;
– Kunststofkozijnen met HR+ beglazing uit 2021;
– Dak en gevels vernieuwd en verduurzaamd in 2021;
– De maandelijkse servicekosten bedragen: €167,-;
– Actieve en gezonde VvE met MJOP;
– Erfpacht eeuwigdurend afgekocht;
– Gunstige ligging dichtbij verschillende winkelcentra;
– Aanvaarding in overleg.

Interesse in dit huis? Schakel direct jouw eigen NVM-aankoopmakelaar in. Jouw NVM-aankoopmakelaar komt op voor jouw belang en bespaart je tijd, geld en zorgen. Adressen van collega NVM-aankoopmakelaars vind je op Funda.

Alles over deze woning
Overdracht
Prijs€ 395.000 k.k.
StatusBeschikbaar
AanvaardingIn overleg
Aangeboden sinds22 januari 2026
Bouw
Type objectAppartement
Bouwjaar1977
SoortTussenverdieping
Woonlaag2
Dak typePlat dak
IsolatievormenMuurisolatie, Vloerisolatie, Dubbelglas
Oppervlaktes en inhoud
Woonoppervlakte76 m2
Inhoud245 m3
Buitenruimtes gebouwgebonden of vrijstaand5 m2
Indeling
Aantal kamers4
Aantal slaapkamers3
Locatie
LiggingAan water, Aan park, In woonwijk, Vrij uitzicht
Tuin
AchteromNee
Uitrusting
Soorten warm waterCV ketel
Parkeer faciliteitenBetaald parkeren, Parkeervergunningen
Virtuele tour
Ik ben Kevin Trompert, NVM Makelaar bij Brantjes Assendelft. Het plannen van een bezichtiging is de eerste stap in de zoektocht naar jouw droomhuis. Ik kijk ernaar uit je binnenkort te ontmoeten en je te helpen bij het vinden van jouw nieuwe thuis!

Plattegronden

Verken de locatie Voorsteven 68
Ik ben Kevin Trompert, NVM Makelaar bij Brantjes Assendelft. Het plannen van een bezichtiging is de eerste stap in de zoektocht naar jouw droomhuis. Ik kijk ernaar uit je binnenkort te ontmoeten en je te helpen bij het vinden van jouw nieuwe thuis!