Ga naar content

Veenland 15

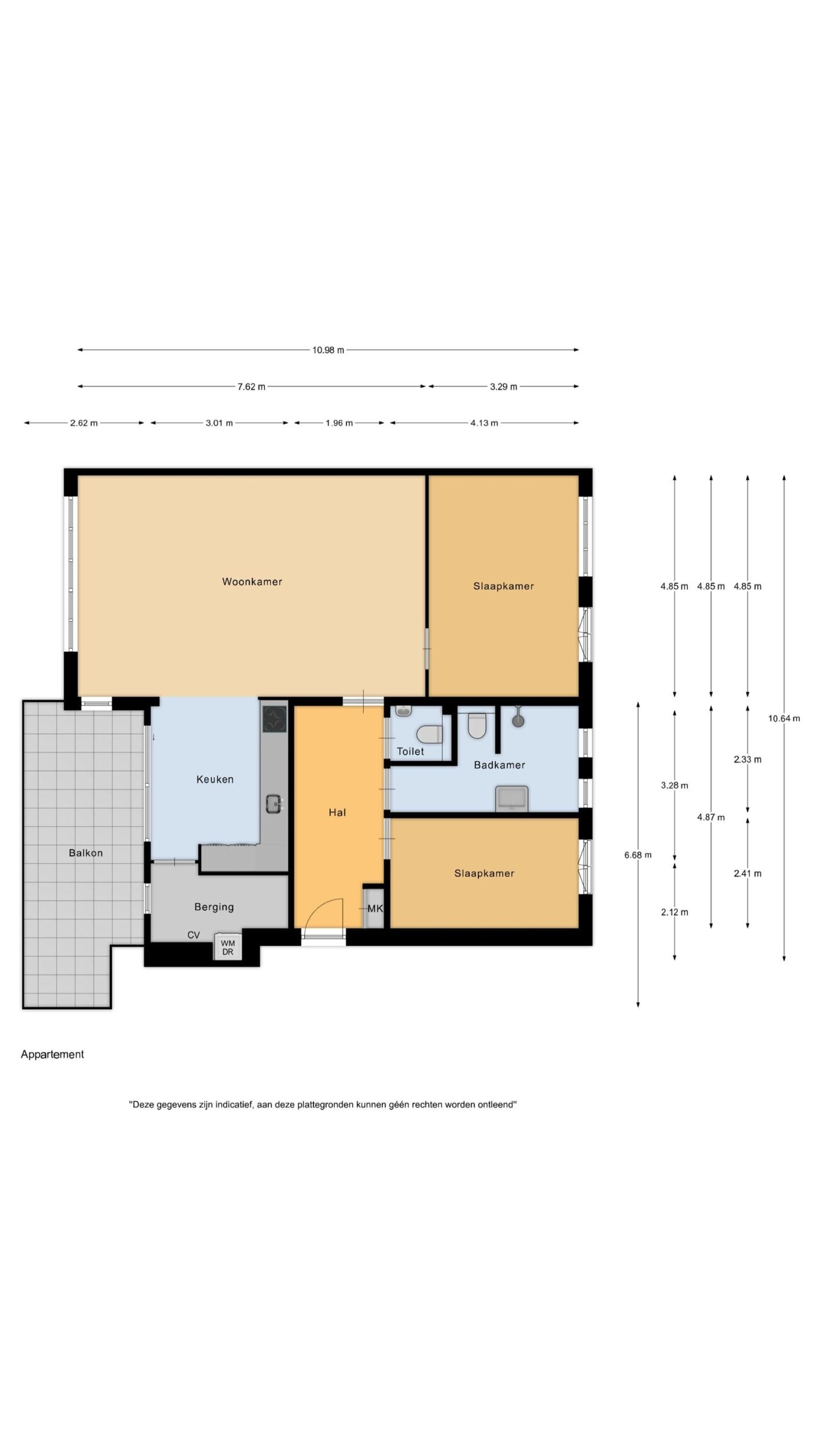
  • 102 m2 woonoppervlakte
  • 2 slaapkamers
  • Bouwjaar 2017
  • 333 m2 perceel

Een ruim appartement van maar liefst 102 m² woonoppervlak, voorzien van een zonnig balkon en een vrij uitzicht!

Op een heerlijke plek in Assendelft, met vrij uitzicht over de omgeving en een dagelijkse rust die je meteen omarmt, ligt dit royale en luxe afgewerkte appartement uit 2017. De lichte ruimtes, de hoogwaardige afwerking en het comfortabele woonklimaat maken dit tot een plek waar je meteen het gevoel krijgt: hier wil ik wonen. Alles is tot in de puntjes verzorgd, van de vloerverwarming in meerdere zones tot het moderne ventilatiesysteem, de eigen parkeerplaats én het zonnige balkon met buitenkraan. Dit is thuiskomen op niveau.

Je komt binnen in het kleinschalige en nette appartementencomplex, voorzien van liftinstallatie en een gezamenlijke entree die direct de verzorgde uitstraling van het gebouw verraadt. Via de lift of trap bereik je het appartement op de tweede verdieping. Daarnaast beschikt de woning over een eigen parkeerplaats op het binnenterrein en een ruime inpandige berging op de begane grond.

De hal heet je welkom en geeft toegang tot alle vertrekken. De lichte woonkamer met grote raampartijen laat het daglicht royaal binnenvallen en biedt een fantastisch vrij uitzicht over de omgeving. De woonkamer vormt één geheel met de open keuken, waardoor er een rustige en harmonieuze leefruimte ontstaat. De keuken (2017) is modern uitgevoerd en voorzien van alle inbouwapparatuur die je mag verwachten: een kookplaat, afzuigkap, combi-oven/stoomoven, combi-oven/magnetron, koelkast, vriezer, vaatwasser én een Quooker. Hier kook je met plezier terwijl je in contact blijft met de rest van de ruimte. Via de keuken stap je het zonnige balkon op, een heerlijke plek voor een kop koffie in de ochtend of een ontspannen borrel in de avond. Fijn detail: op het balkon bevindt zich een buitenkraan, ideaal voor het verzorgen van planten of het schoonmaken.

Het appartement beschikt over twee volwaardige slaapkamers, beide met een rustige uitstraling en goed in te richten dankzij de strakke lijnen en fijne lichtval. De moderne badkamer uit 2017 voelt luxe aan en is voorzien van een ruime inloopdouche, wastafelmeubel, spiegel met verlichting en toilet. Ook het separate toilet met fontein is keurig afgewerkt.

Het gehele appartement is uitgerust met vloerverwarming in meerdere zones, waarmee ieder vertrek afzonderlijk te regelen is, comfortabel én energiezuinig. Daarnaast is er een WTW-installatie (balansventilatie) aanwezig voor een optimaal binnenklimaat. HR++ glas, uitstekende isolatie en drie eigen zonnepanelen maken het wooncomfort compleet.

Wil jij compleet, modern en gelijkvloers wonen? Wij nodigen je graag uit voor een bezichtiging. Bel Brantjes voor een bezichtiging!

– Bouwjaar: 2017
– Woonoppervlakte: 102 m²
– Aantal kamers: 3
– Energielabel: A

Veenland ligt in een rustige en kindvriendelijke woonwijk in Assendelft-Noord, omringd door groen en water. Vanaf het appartement geniet je van vrij uitzicht en veel privacy. Voorzieningen zijn ruimschoots aanwezig: supermarkten, basisscholen, sportclubs en medische voorzieningen liggen op korte afstand. Ook de verbindingen zijn uitstekend — met de fiets ben je zo bij station Krommenie-Assendelft en met de auto zit je binnen enkele minuten op de A8 richting Amsterdam. Een rustige ligging met alle gemakken binnen handbereik.

Bijzonderheden:
– Groots appartement met vrij uitzicht;
– Moderne keuken en badkamer (2017);
– Vloerverwarming in meerdere zones door het hele appartement
– Het appartement beschikt over een WTW-installatie (balansventilatie);
– Er zijn drie zonnepanelen ter beschikking;
– Zonnig balkon met buitenkraan;
– Eigen parkeerplaats aanwezig op het terrein van het appartementencomplex;
– Inpandige berging op de begane grond;
– Lift in het complex;
– Servicekosten VvE € 244,- per maand;
– Oplevering in overleg.

Interesse in dit huis? Schakel direct je eigen NVM-aankoopmakelaar in. Jouw NVM-aankoopmakelaar komt op voor jouw belang en bespaart je tijd, geld en zorgen. Adressen van collega NVM-aankoopmakelaars vindt je op Funda.

Alles over deze woning
Overdracht
Prijs€ 559.000 k.k.
StatusVerkocht
AanvaardingIn overleg
Aangeboden sinds8 december 2025
Bouw
Type objectAppartement
Bouwjaar2017
SoortPortiekflat
Woonlaag2
Dak typeZadeldak
IsolatievormenDakisolatie, Muurisolatie, Vloerisolatie
Oppervlaktes en inhoud
Perceel333 m2
Woonoppervlakte102 m2
Inhoud349 m3
Buitenruimtes gebouwgebonden of vrijstaand16 m2
Indeling
Aantal kamers3
Aantal slaapkamers2
Locatie
LiggingIn woonwijk, Vrij uitzicht
Tuin
AchteromNee
Uitrusting
Soorten warm waterCV ketel
Parkeer faciliteitenOpenbaar parkeren, Op eigen terrein
Virtuele tour
Ik ben Jan den Adel, NVM Register Makelaar/ Nieuwbouw Specialist bij Brantjes Assendelft. Het plannen van een bezichtiging is de eerste stap in de zoektocht naar jouw droomhuis. Ik kijk ernaar uit je binnenkort te ontmoeten en je te helpen bij het vinden van jouw nieuwe thuis!

Plattegronden

Verken de locatie Veenland 15
Ik ben Jan den Adel, NVM Register Makelaar/ Nieuwbouw Specialist bij Brantjes Assendelft. Het plannen van een bezichtiging is de eerste stap in de zoektocht naar jouw droomhuis. Ik kijk ernaar uit je binnenkort te ontmoeten en je te helpen bij het vinden van jouw nieuwe thuis!