Ga naar content

Vechtstraat 38

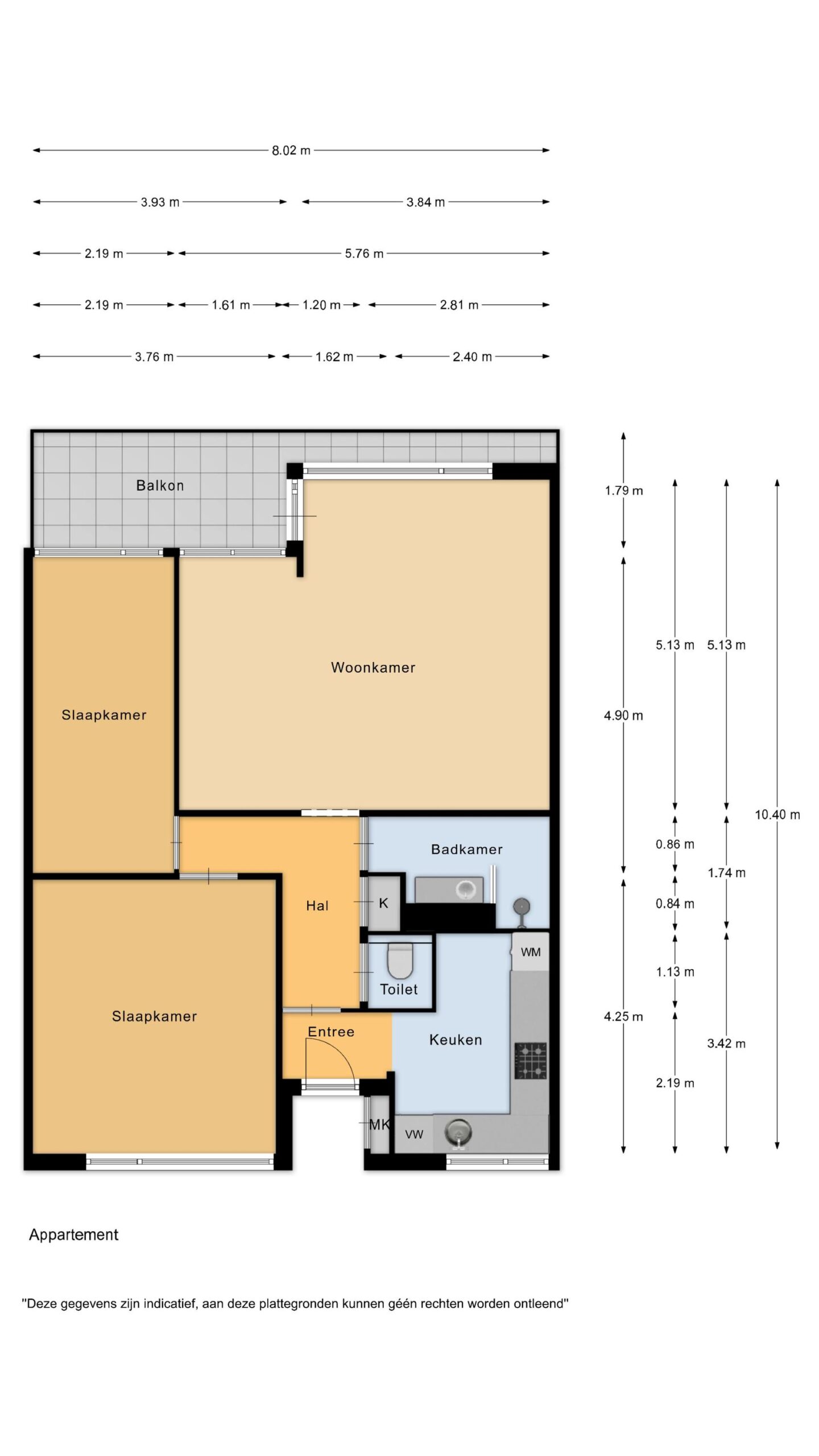
  • 76 m2 woonoppervlakte
  • 2 slaapkamers
  • Bouwjaar 1968

Welkom in de Vechtstraat! Dit gezellige appartement van circa 76 m² biedt je een fijne woonbeleving in een levendige straat met alle voorzieningen binnen handbereik.

Bij binnenkomst kom je in een ruime hal waar de keuken direct aan grenst. Deze keuken ligt apart van de woonkamer en heeft genoeg ruimte om op jouw manier culinair aan de slag te gaan. Met een paar creatieve ideeën maak je er de keuken van je eigen, persoonlijke smaak van.

De lichte en ruime woonkamer vormt het hart van het appartement en geeft je direct toegang tot het zonnige balkon aan de voorzijde. Dit balkon is ideaal om lekker in de zon te zitten en even te genieten van de buitenlucht. Daarnaast biedt deze woning twee comfortabele slaapkamers, perfect om tot rust te komen na een drukke dag.

De badkamer en het toilet zijn in 2020 vernieuwd, waardoor je kunt rekenen een moderne uitstraling en hedendaagse voorzieningen. Alles is zodanig praktisch ingedeeld dat je je meteen thuis voelt.

Bijzonderheden:
– Woonoppervlakte 76m²;
– Heerlijk licht 3-kamerappartement;
– 2 slaapkamers;
– Badkamer vernieuwd in 2020;
– Warmwater middels geiser;
– Verwarming d.m.v. blokverwarming;
– Servicekosten € 281,- incl. stookkosten en water.

Het appartement heeft een ideale en centrale ligging; aan de rand van het winkelcentrum en direct bij het openbaar vervoer. Op loopafstand vind je de Heerenduinen en op fietsafstand de duinen, het strand en de haven.

Interesse in dit huis? Schakel direct je eigen NVM-aankoopmakelaar in.
Jouw NVM-aankoopmakelaar komt op voor jouw belang en bespaart je tijd, geld en zorgen.
Adressen van collega NVM-aankoopmakelaars vind je op Funda.

Er bestaan plannen voor een grootschalig onderhouds- en verduurzamingsproject. Hiervoor is echter nog geen definitieve begroting opgesteld. De Vereniging van Eigenaars is voornemens de werkzaamheden te financieren middels een 30-jarige lening bij het Nationaal Warmtefonds, aangevuld met subsidie. Als gevolg hiervan zullen de servicekosten worden verhoogd.

De plannen omvatten onder meer het vervangen van alle kozijnen en ramen door kunststof exemplaren met triple glas, het aanbrengen van gevel-, dak- en plafondisolatie, de installatie van CO2-/hydrogestuurde ventilatie en het plaatsen van zonnepanelen ten behoeve van de algemene ruimten.

Alles over deze woning
Overdracht
Prijs€ 275.000 k.k.
StatusVerkocht onder voorbehoud
AanvaardingIn overleg
Aangeboden sinds17 maart 2026
Bouw
Type objectAppartement
Bouwjaar1968
SoortPortiekflat
Woonlaag3
Dak typePlat dak
IsolatievormenVloerisolatie, Dubbelglas
Oppervlaktes en inhoud
Woonoppervlakte76 m2
Inhoud246 m3
Buitenruimtes gebouwgebonden of vrijstaand9 m2
Indeling
Aantal kamers3
Aantal slaapkamers2
Tuin
AchteromNee
Uitrusting
Soorten warm waterCentrale voorziening
Parkeer faciliteitenOpenbaar parkeren
Virtuele tour
Ik ben Nicky Maarschalk, Assistent makelaar bij Brantjes Velsen. Het plannen van een bezichtiging is de eerste stap in de zoektocht naar jouw droomhuis. Ik kijk ernaar uit je binnenkort te ontmoeten en je te helpen bij het vinden van jouw nieuwe thuis!

Plattegronden

Verken de locatie Vechtstraat 38
Ik ben Nicky Maarschalk, Assistent makelaar bij Brantjes Velsen. Het plannen van een bezichtiging is de eerste stap in de zoektocht naar jouw droomhuis. Ik kijk ernaar uit je binnenkort te ontmoeten en je te helpen bij het vinden van jouw nieuwe thuis!