Ga naar content

Schenkerven 21

  • 173 m2 woonoppervlakte
  • 5 slaapkamers
  • Bouwjaar 2005
  • 189 m2 perceel

Exclusief wonen: 173 m² wooncomfort, inpandige garage, luxe afwerking en gelegen aan water!

Aan een rustige straat in Parkrijk Saendelft staat deze uitzonderlijk ruime en luxe woning met maar liefst 173 m² woonoppervlak. Luxe en ruimte gaan hier hand in hand. De woning is tijdens de bouw in 2005 direct uitgebouwd en in 2018 volledig gemoderniseerd, waarbij comfort, kwaliteit en duurzaamheid centraal hebben gestaan. Het hoge afwerkingsniveau is in de gehele woning zichtbaar en maakt dit tot een bijzonder prettig en instapklaar familiehuis.

Via de hal betreed je de zeer royale woonkamer met open keuken. De woonkamer heeft een oppervlakte van circa 62 m² en is opvallend licht dankzij het zijraam en de twee grote schuifpuien richting de tuin. De begane grond is voorzien van comfortabele vloerverwarming en strak gestucte wanden. Er is meer dan voldoende ruimte voor een grote zithoek en een royale eettafel voor maar liefst tien personen. De sfeervolle haard zorgt voor extra warmte en gezelligheid en maakt deze leefruimte compleet.

Aansluitend bevindt zich de luxe open keuken, die vanaf 2018 is vernieuwd en geoptimaliseerd. De keuken is uitgevoerd met hoogwaardige Miele inbouwapparatuur en beschikt over twee ovens, een wijnkoelkast, een Quooker, een inductiekookplaat met geïntegreerde afzuigkap en veel praktische bergruimte. Vanuit de woonkamer geven de schuifpuien toegang tot de tuin.

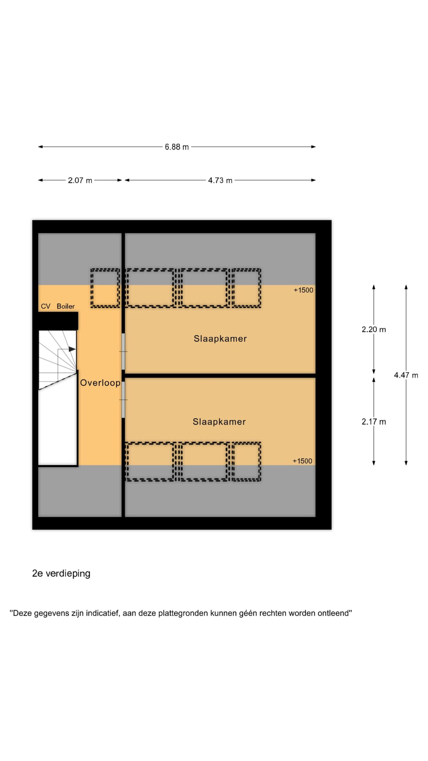
Op de eerste verdieping zet het hoge afwerkingsniveau zich moeiteloos voort. Hier bevinden zich drie slaapkamers. Twee nette slaapkamers liggen aan de voorzijde van de woning en zijn ideaal als kinder- of werkkamer. De slaapkamer aan de achterzijde is de ruimste van de drie en mag met recht de master bedroom genoemd worden. Deze kamer is voorzien van airconditioning, zodat het ook in de zomer comfortabel koel blijft, en beschikt over een praktische inloopkast. De luxe badkamer, vernieuwd in november 2018, is stijlvol en compleet uitgevoerd. De badkamer beschikt over elektrische vloerverwarming, een dubbele wastafel, een dubbele inloopdouche en een vrijstaand ligbad. Een heerlijke ruimte die elke dag aanvoelt als een spa in eigen huis. Het toilet is separaat, wat extra comfort biedt. Op de tweede verdieping bevinden zich nog twee goed bemeten kamers, ideaal als extra slaapkamers, werkkamers of logeerruimtes. De kamer aan de zuidzijde is voorzien van airconditioning.

De tuin is in 2020 volledig vernieuwd, zeer netjes aangelegd en vormt een groot pluspunt van de woning. De tuin is gelegen op het zuidwesten, is via de zijkant bereikbaar en biedt volop privacy. Achterin de tuin bevindt zich een luxe vlonder aan het water: een heerlijke plek om tijdens zomerse dagen te ontspannen en te genieten van de rust en het vrije uitzicht. Aan de voorzijde van de woning bevindt zich de inpandige garage met een elektrische deur. De garage is ruim genoeg om je auto te parkeren of seizoensspullen op te slaan en beschikt over aansluitingen voor wasmachine en droger. Daarnaast heb je de beschikking over een praktische vliering, perfect voor spullen waar je niet dagelijks bij hoeft.

Ook op het gebied van duurzaamheid is deze woning uitstekend uitgerust. De woning is volledig geïsoleerd beschikt over een dubbelspiraal zonneboiler van 300 liter met drie zonnecollectoren en maar liefst twaalf zonnepanelen. Deze woning is klaar voor de toekomst!

Kortom, Schenkerven 21 is een bijzonder complete, luxe en energiezuinige eindwoning met een royaal woonoppervlak, hoogwaardige afwerking en een fraai aangelegde tuin aan het water. Een ideale woning voor wie ruim, comfortabel en toekomstbestendig wil wonen in een rustige en prettige woonomgeving. Wil jij de woning in het echt bekijken? Plan dan jouw bezichtiging!

– Bouwjaar: 2005
– Woonoppervlakte: 173 m²
– Perceeloppervlakte: 189 m² eigen grond
– Energielabel: A

De woning is gelegen op een uitstekende locatie in Assendelft, op loopafstand van winkelcentrum De Saen. Hier vind je alle dagelijkse voorzieningen binnen handbereik, waaronder een bakker, slager, twee supermarkten, een kledingwinkels en delicatessenwinkels. Daarnaast bevinden zich basisscholen en middelbare scholen op korte afstand, wat de woning uitermate geschikt maakt voor gezinnen. Ook station Krommenie-Assendelft ligt nabij. Vanaf dit station ben je met de trein in circa 8 minuten in Zaandam en in ongeveer 20 minuten in Amsterdam Centraal. De uitvalswegen richting Amsterdam, Alkmaar en Haarlem zijn eveneens snel en eenvoudig bereikbaar. Hierdoor woon je hier zeer centraal, met alle voorzieningen binnen handbereik, terwijl je tegelijkertijd geniet van rust en ruimte.

Bijzonderheden:
– Zeer ruime woning met 173 m² woonoppervlakte;
– Ruime en lichte woonkamer verwarmd middels vloerverwarming;
– Keuken met kookeiland vernieuwd in 2018 met diverse inbouwapparatuur van Miele;
– De woning beschikt over vijf slaapkamers;
– Luxe badkamer met dubbele wastafel, dubbele douche en ligbad;
– Op het dak liggen 12 zonnepanelen;
– Nette tuin, vernieuwd in 2020, gelegen aan water en op het zuidwesten;
– Beschikking over een inpandige garage aan de voorzijde met een elektrische deur;
– In 2018 is de meterkast vernieuwd;
– 300 liter vat boiler en drie zonnecollectoren;
– Centrale ligging in Saendelft;
– Oplevering in overleg.

Interesse in dit huis? Schakel direct je eigen NVM-aankoopmakelaar in. Jouw NVM-aankoopmakelaar komt op voor jouw belang en bespaart je tijd, geld en zorgen. Adressen van collega NVM-aankoopmakelaars vind je op Funda.

Alles over deze woning
Overdracht
Prijs€ 675.000 k.k.
StatusBeschikbaar
AanvaardingIn overleg
Aangeboden sinds3 februari 2026
Bouw
Type objectWoonhuis
SoortEengezinswoning
TypeEindwoning
Bouwjaar2005
Dak typeMansardedak
IsolatievormenDakisolatie, Muurisolatie, Vloerisolatie, Dubbelglas, Volledig geïsoleerd, HR glas
Oppervlaktes en inhoud
Perceel189 m2
Woonoppervlakte173 m2
Inhoud732 m3
Buitenruimtes gebouwgebonden of vrijstaand0 m2
Tuinoppervlakte74 m2
Indeling
Aantal kamers6
Aantal slaapkamers5
Locatie
LiggingAan water, In woonwijk, Aan vaarwater
Tuin
TypeAchtertuin
StaatFraai aangelegd
LiggingZuidwest
AchteromJa
Uitrusting
Soorten warm waterZonneboiler, Zonnecollectoren
Parkeer faciliteitenOpenbaar parkeren
Virtuele tour
Ik ben Jan den Adel, NVM Register Makelaar/ Nieuwbouw Specialist bij Brantjes Assendelft. Het plannen van een bezichtiging is de eerste stap in de zoektocht naar jouw droomhuis. Ik kijk ernaar uit je binnenkort te ontmoeten en je te helpen bij het vinden van jouw nieuwe thuis!

Plattegronden

Verken de locatie Schenkerven 21
Ik ben Jan den Adel, NVM Register Makelaar/ Nieuwbouw Specialist bij Brantjes Assendelft. Het plannen van een bezichtiging is de eerste stap in de zoektocht naar jouw droomhuis. Ik kijk ernaar uit je binnenkort te ontmoeten en je te helpen bij het vinden van jouw nieuwe thuis!