Ga naar content

Musket 26

  • 161 m2 woonoppervlakte
  • 4 slaapkamers
  • Bouwjaar 2005
  • 124 m2 perceel

Ruime en energiezuinige gezinswoning met A+ label èn eigen parkeerplaats!

Zijn jullie op zoek naar een comfortabele en instapklare gezinswoning met volop ruimte en een fijne sfeer? Dan is dit de woning die jullie zoeken. Met een A+ label, een eigen parkeerplek en maar liefst 160 m2 woonoppervlakte hoef jij hier voorlopig niet meer weg. Deze woning combineert licht, ruimte en duurzaamheid in de kindvriendelijke en gewilde woonwijk Broekpolder.

Bouwjaar: 2005
Woonoppervlakte: 161 m²
Perceeloppervlakte: 124 m²
Inhoud: 599 m³
Energielabel: A+

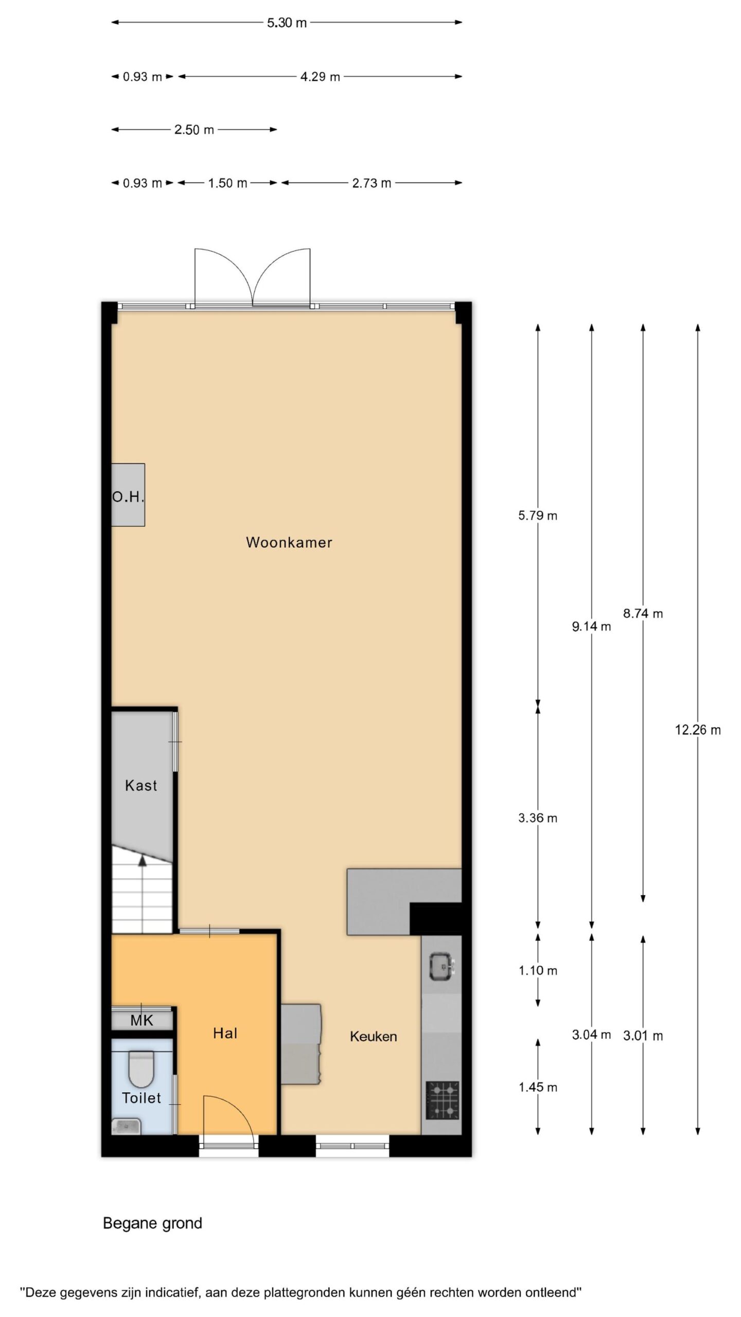
Kom binnen in de hal met toegang tot toilet en meterkast. Bij binnenkomt in de woonkamer valt direct de glazen achterpui in de aanbouw op, wauw wat een plaatje! Hier hebben de huidige bewoners over nagedacht.
De woonkamer is hierdoor heerlijk licht en biedt voldoende ruimte voor een gezellige zithoek en een royale eettafel. De openslaande deuren verbinden binnen moeiteloos met buiten, waardoor de achtertuin een verlengstuk van de leefruimte vormt. De keuken is compleet uitgevoerd met diverse inbouwapparatuur en biedt alles wat je nodig hebt om comfortabel te koken.

Op de eerste verdieping bevinden zich twee zeer goed bemeten slaapkamers die flexibel in te delen zijn als slaap-, werk- of hobbyruimte. De badkamer is functioneel en compleet, voorzien van onder andere een douche, ligbad en wastafelmeubel. Dankzij de rechte wanden zijn de kamers praktisch in te richten en voelen ze ruim aan.

De tweede verdieping is vergroot met een dakkapel, wat zorgt voor extra ruimte en licht. Deze verdieping biedt nog eens twee volwaardige slaapkamers. Op de voorzolder is een handige wasruimte gerealiseerd. Opbergruimte tekort? Via de vlizotrap hebben we toegang tot de grote bergruimte waar tevens ook de CV ketel (2023) en de wtw installatie te vinden is.

De achtertuin is verzorgd aangelegd en biedt voldoende ruimte om te genieten van het buitenleven met genoeg plek voor een loungehoek en eettafel. De tuin beschikt daarnaast over een praktische houten berging. Via de achtertuin hebben we toegang tot het afgesloten parkeerterrein. Hier heb je de mogelijkheid tot het parkeren van 1 auto of motor.

De woning is volledig geïsoleerd, voorzien van HR++ glas en beschikt over een energiezuinig karakter met energielabel A+, wat zorgt voor lage energielasten en optimaal wooncomfort.

Ben je ook zo enthousiast geworden? Bel ons voor een bezichtiging, we laten deze woning graag aan je zien.

Ligging
De woning is gelegen aan een rustige weg in een kindvriendelijke woonwijk in Heemskerk. In de directe omgeving vind je scholen, winkels en sportvoorzieningen. Ook zijn uitvalswegen richting onder andere Haarlem, Alkmaar en Amsterdam goed bereikbaar. Voor ontspanning en recreatie liggen strand, duinen en natuurgebieden op korte afstand.

Bijzonderheden
– riante tussenwoning in de geliefde woonwijk Broekpolder;
– reeds uitgebouwd met glazen achterpui;
– volledig geïsoleerd;
– Energielabel A+
– Cv-ketel 2023 (Remeha);
– eigen parkeerplaats op afgesloten terrein (€10,- per maand servicekosten);
– aanvaarding in overleg.

Interesse in dit huis? Schakel direct jouw eigen NVM aankoopmakelaar in. Jouw NVM aankoopmakelaar komt op voor jouw belang en bespaart je tijd, geld en zorgen. Adressen van collega NVM aankoopmakelaars vind je op Funda.

Alles over deze woning
Overdracht
Prijs€ 615.000 k.k.
StatusBeschikbaar
AanvaardingIn overleg
Aangeboden sinds26 maart 2026
Bouw
Type objectWoonhuis
SoortEengezinswoning
TypeTussenwoning
Bouwjaar2005
Dak typeZadeldak
IsolatievormenVolledig geïsoleerd
Oppervlaktes en inhoud
Perceel124 m2
Woonoppervlakte161 m2
Inhoud599 m3
Buitenruimtes gebouwgebonden of vrijstaand0 m2
Indeling
Aantal kamers5
Aantal slaapkamers4
Locatie
LiggingAan rustige weg, In woonwijk
Tuin
TypeAchtertuin
StaatVerzorgd
LiggingNoord
AchteromJa
Uitrusting
Soorten warm waterCV ketel
Parkeer faciliteitenOpenbaar parkeren, Op eigen terrein
Virtuele tour
Ik ben Denise Numan, NVM Makelaar bij Brantjes Heemskerk. Het plannen van een bezichtiging is de eerste stap in de zoektocht naar jouw droomhuis. Ik kijk ernaar uit je binnenkort te ontmoeten en je te helpen bij het vinden van jouw nieuwe thuis!

Plattegronden

Verken de locatie Musket 26
Ik ben Denise Numan, NVM Makelaar bij Brantjes Heemskerk. Het plannen van een bezichtiging is de eerste stap in de zoektocht naar jouw droomhuis. Ik kijk ernaar uit je binnenkort te ontmoeten en je te helpen bij het vinden van jouw nieuwe thuis!