Ga naar content

Kruiskamplaan 67

  • 157 m2 woonoppervlakte
  • 4 slaapkamers
  • Bouwjaar 2018
  • 247 m2 perceel

Luxe en royaal wonen aan het water met eigen aanlegsteiger en zonnige achtertuin zonder aanwezigheid van achterburen. Wie wil dat nou niet!

Deze moderne 2-onder-1-kapwoning heeft een zee aan ruimte, beschikt over veel lichtinval, is comfortabel en heeft een unieke ligging aan het water. Deze ideale gezinswoning is tot in detail verzorgd en helemaal van deze tijd.

Via de ruime oprit en verzorgde voortuin kom je binnen in de hal, waar direct de strakke afwerking en warme sfeer opvallen. De entree biedt toegang tot het moderne toilet en leidt naar de leefruimte, waar het huis zich meteen in volle breedte presenteert. De woonkamer is uitzonderlijk ruim opgezet en dankzij de grote raampartijen aan de achterzijde heerlijk licht. In de raampartijen zit ook een deur, wat zorgt voor een naadloze overgang naar de tuin en het water, terwijl de stijlvolle gashaard en de eikenhouten vloer met vloerverwarming zorgen voor een comfortabele en sfeervolle basis.

Aan de voorzijde bevindt zich de keuken, die strak en modern is uitgevoerd met een combinatie van lichte fronten en houtaccenten. De keuken is praktisch ingedeeld met veel werk- en bergruimte en voorzien van diverse inbouwapparatuur. De stalen deuren richting de woonkamer geven het geheel een eigentijdse uitstraling en versterken het open karakter van de woning.

Op de 1e verdieping zijn in totaal drie ruim bemeten slaapkamers aanwezig, die beschikken over een prettige lichtinval en een verzorgde afwerking. De badkamer is modern en volledig ingericht met een inloopdouche, dubbele wastafel en een tweede toilet. Alles is uitgevoerd in een rustige, neutrale stijl waardoor het geheel direct instapklaar aanvoelt.

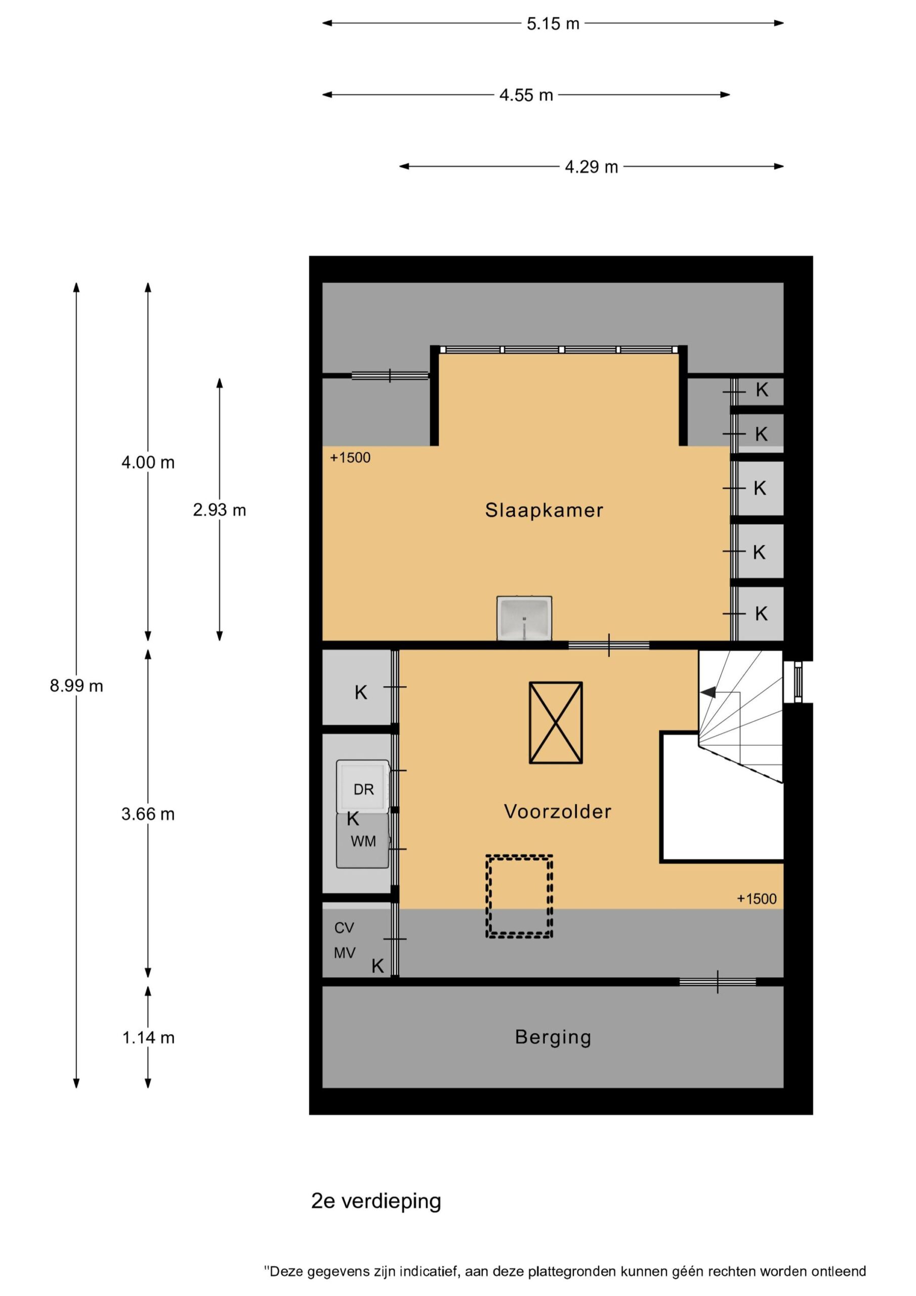
De tweede verdieping is eveneens zeer ruim ingedeeld. Door de geplaatste dakkapel is er een zeer riante vierde slaapkamer ontstaan. Daarnaast is er nog een grote overloop met wasruimte en volop opslagruimte aanwezig. Via een vlizotrap is bovendien een praktische vliering bereikbaar.

De achtertuin vormt een verlengstuk van de woning en is strak aangelegd met meerdere zitplekken. De ligging aan het water met vrij uitzicht zorgt voor een bijzonder gevoel van rust en ruimte. De aanlegsteiger maakt het mogelijk om direct het water op te gaan, wat ideaal is voor liefhebbers van varen. Door de gunstige zonligging en de mate van privacy is dit een plek waar je optimaal kunt genieten van lange dagen buiten. De woning beschikt daarnaast over een ruime berging en parkeergelegenheid op eigen terrein.

De woning ligt in de gewilde en kindvriendelijke wijk Waldijk in Uitgeest, aan een rustige straat en direct aan vaarwater met open verbinding richting het Uitgeestermeer. In de directe omgeving vind je scholen, winkels en sportvoorzieningen. Het NS-station en de uitvalswegen richting de A9 zijn snel bereikbaar, waardoor steden als Amsterdam, Alkmaar, Haarlem en Zaandam binnen korte tijd te bereiken zijn.

Ben je enthousiast geworden? Bel ons voor een bezichtiging; we laten deze woning graag aan je zien.

Bouwjaar: 2018
Woonoppervlakte: ca. 157 m²
Perceeloppervlakte: 247 m²
Inhoud: ca. 570 m³
Energielabel: A

Bijzonderheden:
– Royale en uitgebouwde 2-onder-1-kapwoning;
– Direct aan vaarwater met eigen aanlegsteiger;
– Parkeren op eigen terrein;
– Ruime en lichte woonkamer met onder andere vloerverwarming en gashaard;
– Moderne keuken voorzien van vaatwasser, combi-oven, stoomoven, Quooker, koel-vriescombinatie
en inductiekookplaat met wokbrander;
– Eikenhouten vloerafwerking op de begane grond en eerste verdieping;
– Vier ruime slaapkamers (mogelijkheid tot creëren van een vijfde slaapkamer);
– Dakkapel aan de achterzijde geplaatst (2019);
– Zeer nette badkamer met onder andere inloopdouche, tweede toilet, dubbele wastafel en elektrische vloerverwarming;
– Alle kamers zijn voorzien van tv- en internetaansluiting;
– Stalen binnendeuren voor een eigentijdse uitstraling;
– Volledig geïsoleerd en energielabel A;
– Zonnige achtertuin aan het water met achterom en aanlegsteiger;
– Ruime berging aan de voorzijde van de woning aanwezig;
– Ligging in een kindvriendelijke omgeving, basisschool om de hoek;
– Gunstige ligging nabij uitvalswegen en de A9;
– NS-station Uitgeest, bushalte en supermarkt op loopafstand;
-Goed gesitueerd ten opzichte van Amsterdam, Alkmaar, Zaandam en Haarlem.

Interesse in dit huis? Schakel direct uw eigen NVM-aankoopmakelaar in. Uw NVM-aankoopmakelaar komt op voor úw belang en bespaart u tijd, geld en zorgen. Adressen van collega NVM-aankoopmakelaars vindt u op Funda.

Alles over deze woning
Overdracht
Prijs€ 750.000 k.k.
StatusBeschikbaar
AanvaardingIn overleg
Aangeboden sinds24 maart 2026
Bouw
Type objectWoonhuis
SoortEengezinswoning
TypeTwee onder één kapwoning
Bouwjaar2018
Dak typeZadeldak
IsolatievormenDakisolatie, Muurisolatie, Vloerisolatie, Dubbelglas, Volledig geïsoleerd
Oppervlaktes en inhoud
Perceel247 m2
Woonoppervlakte157 m2
Inhoud570 m3
Buitenruimtes gebouwgebonden of vrijstaand5 m2
Indeling
Aantal kamers5
Aantal slaapkamers4
Locatie
LiggingAan rustige weg, In woonwijk, Vrij uitzicht, Aan vaarwater
Tuin
TypeAchtertuin
StaatVerzorgd
LiggingOost
AchteromJa
Uitrusting
Soorten warm waterCV ketel
Parkeer faciliteitenOpenbaar parkeren, Op eigen terrein
Virtuele tour
Ik ben Raymond Westra, NVM Register Makelaar bij Brantjes Heemskerk. Het plannen van een bezichtiging is de eerste stap in de zoektocht naar jouw droomhuis. Ik kijk ernaar uit je binnenkort te ontmoeten en je te helpen bij het vinden van jouw nieuwe thuis!

Plattegronden

Verken de locatie Kruiskamplaan 67
Ik ben Raymond Westra, NVM Register Makelaar bij Brantjes Heemskerk. Het plannen van een bezichtiging is de eerste stap in de zoektocht naar jouw droomhuis. Ik kijk ernaar uit je binnenkort te ontmoeten en je te helpen bij het vinden van jouw nieuwe thuis!