Ga naar content

Klokbaai 18

  • 102 m2 woonoppervlakte
  • 3 slaapkamers
  • Bouwjaar 2009
  • 57 m2 perceel

Moderne en instapklare 2-onder-1-kapwoning met energielabel A in hartje Zaandam!

Wonen in een jonge, comfortabele woning op een rustige plek midden in het centrum van Zaandam? Deze uitstekend onderhouden 2-onder-1-kapwoning combineert modern wooncomfort met een fijne indeling en een energiezuinig karakter, ideaal voor gezinnen en stellen die zorgeloos willen wonen.

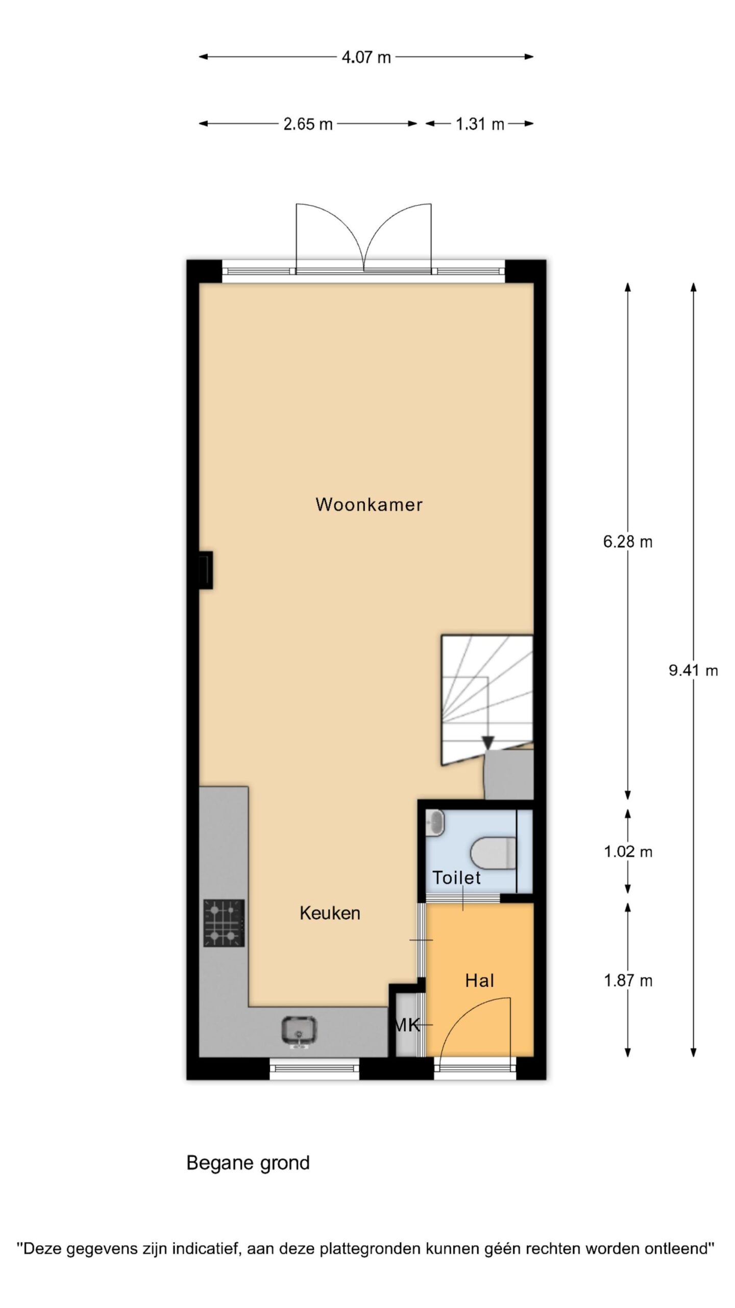
Bij binnenkomst stap je in de hal met toegang tot het toilet, de meterkast en de keuken. De keuken is aan de voorzijde van de woning gelegen en uitgevoerd in een moderne hoekopstelling, voorzien van eigentijdse inbouwapparatuur. Aan de achterzijde bevindt zich de royale en lichte woonkamer, waar grote raampartijen zorgen voor een prettige lichtinval en een ruimtelijk gevoel. Vanuit de woonkamer heb je direct toegang tot de stadstuin, een fijne plek om buiten te zitten en te ontspannen.

Op de eerste verdieping bevinden zich twee ruime slaapkamers, beide van goed formaat en praktisch in te delen. De tweede verdieping biedt nog meer ruimte en comfort, met een royale slaapkamer, een wasruimte met opstelling van de cv-ketel en een complete badkamer. Deze badkamer is voorzien van een toilet, wastafel en een douche in bad.

De woning is gebouwd in 2009 en volledig geïsoleerd, wat zorgt voor een aangenaam woonklimaat en lage energielasten. Dankzij de vloerverwarming door de gehele woning geniet je van extra comfort.

De achtertuin biedt een beschutte buitenruimte waar je, ondanks de centrale ligging, heerlijk rustig kunt zitten.

Ben je ook zo enthousiast geworden? Bel ons voor een bezichtiging, we laten deze woning graag aan je zien.

Bouwjaar: 2009
Perceeloppervlakte: 57 m² eigen grond
Woonoppervlakte: 102 m²
Energielabel: A

De woning ligt aan een rustige weg in het centrum van Zaandam, in een prettige woonwijk met alle voorzieningen binnen handbereik. Winkels, supermarkten, restaurants en het NS-station bevinden zich op korte afstand. Ook scholen, sportfaciliteiten en uitvalswegen zijn goed bereikbaar. Daarnaast zijn er diverse recreatiemogelijkheden in de omgeving, waardoor je hier zowel centraal als comfortabel woont.

Bijzonderheden
– Moderne 2-onder-1-kapwoning
– Volledig geïsoleerd en energielabel A
– Voorzien van HR+++ beglazing
– Schilderwerk voor- en achterzijde medio 2023
– Vloerverwarming in de gehele woning
– Nieuwe cv-ketel (Intergas, 2024)
– Keuken (2013) met moderne hoekopstelling aan voorzijde en nieuwe appartuur 2024
– Drie ruime slaapkamers
– Praktische wasruimte op zolderverdieping
– Gelegen in centrum maar aan rustige straat
– Notaris aan keuze koper, echter wel een notaris in Zaandam of directe omgeving
– Verkoop “as is”
– Oplevering in overleg.

Interesse in dit huis? Schakel direct jouw eigen NVM aankoopmakelaar in. Jouw NVM aankoopmakelaar komt op voor jouw belang en bespaart je tijd, geld en zorgen. Adressen van collega NVM aankoopmakelaars vind je op Funda.

Alles over deze woning
Overdracht
Prijs€ 469.000 k.k.
StatusBeschikbaar
AanvaardingIn overleg
Aangeboden sinds18 april 2026
Bouw
Type objectWoonhuis
SoortEengezinswoning
TypeTwee onder één kapwoning
Bouwjaar2009
Dak typeMansardedak
IsolatievormenDakisolatie, Muurisolatie, Vloerisolatie, Dubbelglas, Volledig geïsoleerd
Oppervlaktes en inhoud
Perceel57 m2
Woonoppervlakte102 m2
Inhoud350 m3
Buitenruimtes gebouwgebonden of vrijstaand0 m2
Indeling
Aantal kamers5
Aantal slaapkamers3
Locatie
LiggingAan rustige weg, In centrum, In woonwijk
Tuin
TypeAchtertuin
StaatNormaal
LiggingNoordwest
AchteromNee
Uitrusting
Soorten warm waterCV ketel
Parkeer faciliteitenBetaald parkeren, Parkeervergunningen
Virtuele tour
Ik ben Jeffrey Veerkamp, NVM Makelaar / Vestigingsmanager bij Brantjes Zaandam. Het plannen van een bezichtiging is de eerste stap in de zoektocht naar jouw droomhuis. Ik kijk ernaar uit je binnenkort te ontmoeten en je te helpen bij het vinden van jouw nieuwe thuis!

Plattegronden

Verken de locatie Klokbaai 18
Ik ben Jeffrey Veerkamp, NVM Makelaar / Vestigingsmanager bij Brantjes Zaandam. Het plannen van een bezichtiging is de eerste stap in de zoektocht naar jouw droomhuis. Ik kijk ernaar uit je binnenkort te ontmoeten en je te helpen bij het vinden van jouw nieuwe thuis!