Ga naar content

Emmy Belinfantelaan 57

  • 128 m2 woonoppervlakte
  • 3 slaapkamers
  • Bouwjaar 2010
  • 120 m2 perceel

Moderne tussenwoning in kindvriendelijke buurt met energielabel A!

Grijp je kans bij deze ruime eengezinswoning in de gezinsvriendelijke wijk Broekpolder. De woning bevindt zich aan een rustige straat die speciaal is ingericht voor fietsers. Binnen is de woning voorzien van een keurige laminaatvloer en een open keuken welke aan de voorzijde is gesitueerd. De ruime achtertuin heeft een riante vrijstaande houten berging en is gelegen op het noordwesten. Heerlijk genieten van de zon na een lange werkdag.

De locatie is bijzonder gunstig, met het NS-station Heemskerk, winkelcentrum Citadel, diverse basisscholen en kinderopvangmogelijkheden op korte afstand. Daarnaast zijn de snelwegen naar Alkmaar en Haarlem/Amsterdam eenvoudig bereikbaar. Een extra pluspunt is dat kinderen direct voor de deur kunnen spelen in het speeltuintje.

Bouwjaar: 2010
Woonoppervlakte: ca. 128m2
Externe bergruimte: ca. 6m2
Inhoud: ca. 464 m3
Perceel: 120m2
Energielabel A.

Begane grond:
Bij binnenkomst tref je een ruime en brede hal aan met de meterkast en een separaat toilet met fonteintje. De woonkamer is royaal en beschikt over een keurige laminaatvloer en ruime trapkast. De grote raampartijen zorgen voor veel natuurlijk licht. De keuken is simpel doch functioneel, uiteraard is dit de ideale gelegenheid om je eigen smaak aan te woning toe te voegen. De achtertuin ligt op het noordwesten en is uitgerust met een berging met elektra en heeft een achterom.

Eerste verdieping:
Op de overloop heb je toegang tot twee slaapkamers. Er zijn mogelijkheden om de indeling van de slaapkamers te wijzigen zodat er 3 slaapkamers ontstaan. De badkamer is uitgerust met een inloopdouche, toilet en wastafel.

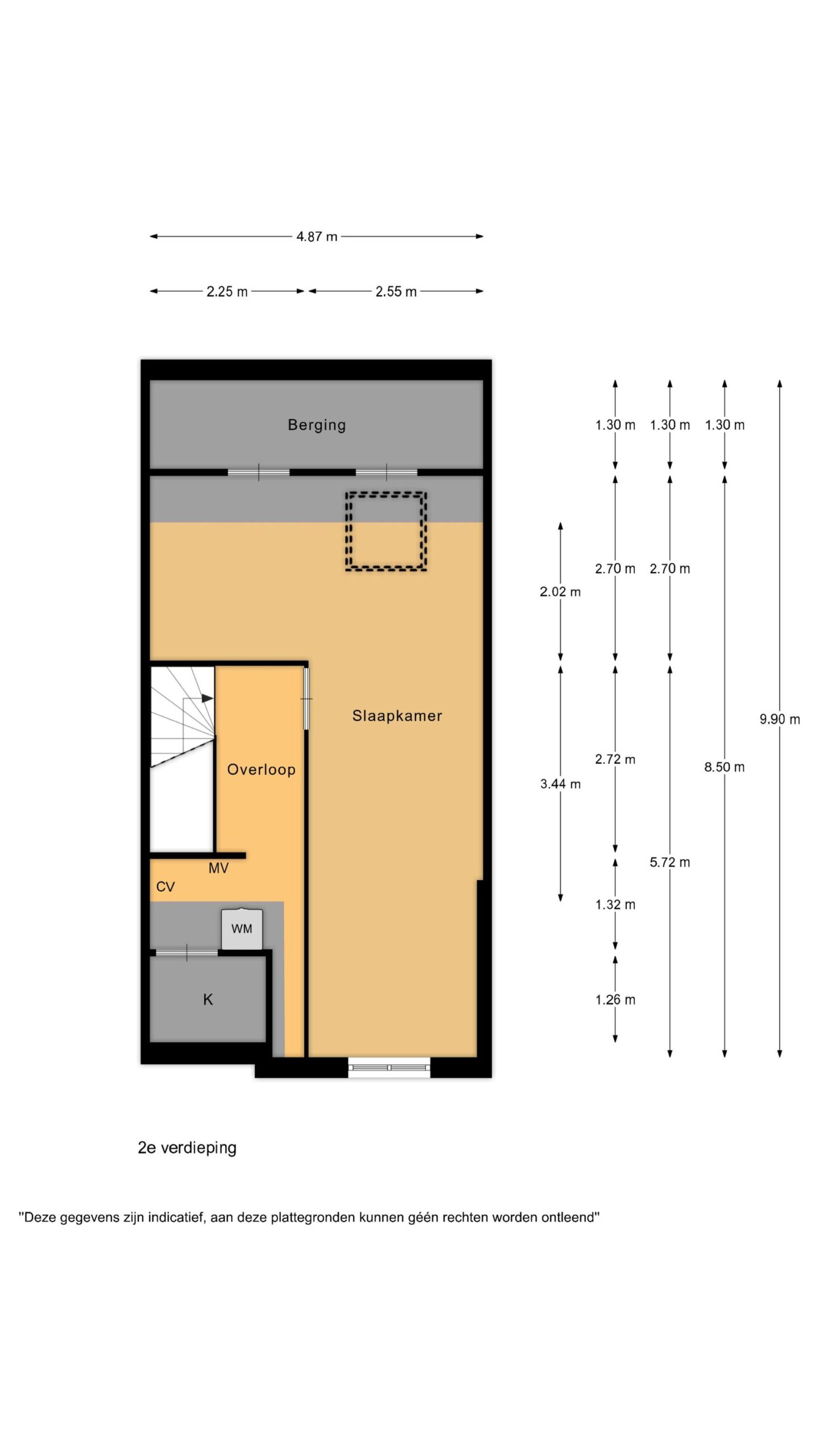
Tweede verdieping:
Ruime overloop met een CV ketel en wasruimte. Op de zolderverdieping treffen we een grote slaapkamer met een speelse indeling. Hier is het mogelijk om niet een maar twee slaapkamers te realiseren. Tevens is er voldoende opbergruimte achter de knieschotten aanwezig.

Interesse? Neem dan gauw contact op met ons kantoor om een bezichtiging in te plannen!

Bijzonderheden:
– energielabel A
– glasvezel aanwezig;
– gelegen aan een rustige weg;
– speelgelegenheid voor kinderen tegenover de woning.

Let op:
– de eigendomsoverdracht vindt plaats bij Notariskantoor Batenburg in Beverwijk;
– de woning is uitsluitend bestemd voor zelfbewoning. In de koop- en leveringsakte wordt een zelfbewoningsplicht opgenomen.
– Als u een sociale huurwoning in de Gemeente Beverwijk/Heemskerk achterlaat dient u dit bij het uitbrengen van de bieding te vermelden.
Bij opmerking geeft u dan aan wie is de verhuurder is en wat is de huurprijs.

Interesse in dit appartement? Schakel direct uw eigen NVM-aankoopmakelaar in. Uw NVM-aankoopmakelaar komt op voor úw belang en bespaart u tijd, geld en zorgen. Adressen van collega NVM-aankoopmakelaars vindt u op Funda.

Alles over deze woning
Overdracht
Prijs€ 490.000 k.k.
StatusBeschikbaar
AanvaardingIn overleg
Aangeboden sinds15 februari 2026
Bouw
Type objectWoonhuis
SoortEengezinswoning
TypeTussenwoning
Bouwjaar2010
Dak typeSamengesteld dak
IsolatievormenVolledig geïsoleerd
Oppervlaktes en inhoud
Perceel120 m2
Woonoppervlakte128 m2
Inhoud464 m3
Buitenruimtes gebouwgebonden of vrijstaand0 m2
Indeling
Aantal kamers4
Aantal slaapkamers3
Locatie
LiggingAan drukke weg, In woonwijk
Tuin
TypeAchtertuin
StaatNormaal
LiggingNoordwest
AchteromJa
Uitrusting
Soorten warm waterCV ketel
Parkeer faciliteitenOpenbaar parkeren
Virtuele tour
Ik ben Jeroen van Dongen, NVM Makelaar bij Brantjes Beverwijk. Het plannen van een bezichtiging is de eerste stap in de zoektocht naar jouw droomhuis. Ik kijk ernaar uit je binnenkort te ontmoeten en je te helpen bij het vinden van jouw nieuwe thuis!

Plattegronden

Verken de locatie Emmy Belinfantelaan 57
Ik ben Jeroen van Dongen, NVM Makelaar bij Brantjes Beverwijk. Het plannen van een bezichtiging is de eerste stap in de zoektocht naar jouw droomhuis. Ik kijk ernaar uit je binnenkort te ontmoeten en je te helpen bij het vinden van jouw nieuwe thuis!