Ga naar content

Eikenstraat 59

  • 133 m2 woonoppervlakte
  • 3 slaapkamers
  • Bouwjaar 1998

Altijd al gedroomd van wonen in een van de mooiste appartementen van dit complex? Dit is je moment.

Welkom in dit moderne en uitstekend onderhouden gebouw, waar comfort en stijl samenkomen. Dit royale appartement van maar liefst 133 m² biedt alles wat je zoekt: ruimte, licht en luxe. Hier voel je je direct thuis.

Je beschikt over een eigen parkeerplaats en een grote berging, zodat gemak en praktische leefruimte perfect in balans zijn.

De absolute blikvanger is de extra kamer op de vijfde verdieping, een veelzijdige ruimte met een prachtig uitzicht over Beverwijk. Een ideale plek om te werken, te ontspannen of gewoon te genieten van het uitzicht.

Kortom, dit is een unieke kans om comfortabel en stijlvol te wonen op een bijzondere locatie.
Wacht niet te lang, want dit appartement verdient het om gezien te worden.

Bouwjaar: 1998
Woonoppervlakte: ca. 133 m²
Balkon: ca. 7 m²
Externe bergruimte: 21 m²
Lift aanwezig: Ja
Energielabel: B

Entree: afgesloten entree met bellentableau en brievenbussen, elektrische deuropeners en toegang tot lift naar eerste woonlaag of naar de parkeerplaats en berging in de ondergelegen parkeergarage;

Indeling:
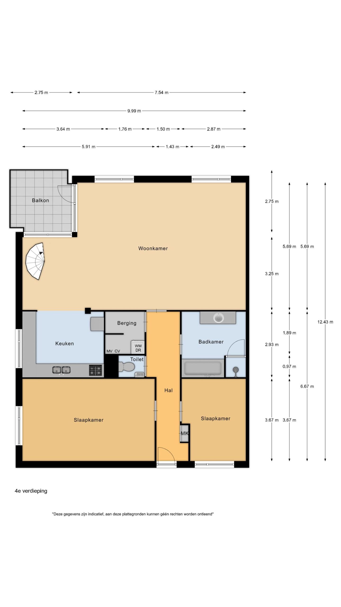
Bij binnenkomst kom je in een ruime hal met de meterkast. Vanuit hier heb je toegang tot de twee goed bemeten slaapkamers. Loop je verder door de hal, dan kom je bij het separate toilet met fonteintje en daar tegenover bevindt zich de ruime badkamer, uitgerust met een wastafelmeubel, radiator, ligbad en douchecabine.

In het appartement is tevens een handige berging aanwezig, waar de cv-ketel en de wasruimte zich bevinden.

De ruime, open woonkamer met veel daglicht en de open keuken maken dit echt een heerlijke plek om te genieten. Daarnaast is er een ruim balkon op het noorden, waar je fijn buiten kunt zitten.

Tot slot is er een trap aanwezig naar het mooiste plekje van het huis: een kamer met een fantastisch uitzicht over Beverwijk!

Bijzonderheden:
– eigen parkeerplaats in afgesloten garage;
– ruime berging in de kelder;
– gezonde en actieve VvE;
– gelegen nabij strand, bos en duinen, maar ook dicht bij cafés, restaurants, bioscoop, winkels, bibliotheek en muziekschool;
– voorzieningen vlakbij, zoals supermarkt, huisarts en apotheek;
– zeer ruim en licht appartement met veel bergruimte;
– vrij uitzicht over Beverwijk;
– servicekosten circa € 224,- per maand.

Alles over deze woning
Overdracht
Prijs€ 495.000 k.k.
StatusBeschikbaar
AanvaardingIn overleg
Aangeboden sinds22 oktober 2025
Bouw
Type objectAppartement
Bouwjaar1998
SoortMaisonnette
Woonlaag4
Dak typePlat dak
IsolatievormenDakisolatie, Muurisolatie, Vloerisolatie, Dubbelglas
Oppervlaktes en inhoud
Woonoppervlakte133 m2
Inhoud396 m3
Buitenruimtes gebouwgebonden of vrijstaand7 m2
Indeling
Aantal kamers4
Aantal slaapkamers3
Locatie
LiggingIn woonwijk, Vrij uitzicht
Tuin
AchteromNee
Uitrusting
Soorten warm waterCV ketel
Parkeer faciliteitenOp eigen terrein, Op afgesloten terrein
Virtuele tour
Ik ben Lars Verhoef, NVM Register Makelaar-Taxateur/ Regiomanager bij Brantjes Beverwijk. Het plannen van een bezichtiging is de eerste stap in de zoektocht naar jouw droomhuis. Ik kijk ernaar uit je binnenkort te ontmoeten en je te helpen bij het vinden van jouw nieuwe thuis!

Plattegronden

Verken de locatie Eikenstraat 59
Ik ben Lars Verhoef, NVM Register Makelaar-Taxateur/ Regiomanager bij Brantjes Beverwijk. Het plannen van een bezichtiging is de eerste stap in de zoektocht naar jouw droomhuis. Ik kijk ernaar uit je binnenkort te ontmoeten en je te helpen bij het vinden van jouw nieuwe thuis!