Ga naar content

Dovenetelweg 1

  • 91 m2 woonoppervlakte
  • 2 slaapkamers
  • Bouwjaar 1961
  • 294 m2 perceel

Jouw kans in Kogerveld – hoekwoning met garage en zonnige achtertuin

Ben je op zoek naar een lichte woning met een zonnige tuin en een garage? Dan is deze tweelaagse hoekwoning in de populaire wijk Kogerveld precies wat je zoekt! Met een praktische indeling, volop ruimte en een fijne ligging vlak bij voorzieningen en uitvalswegen, is dit huis geschikt voor een breed publiek: van starters tot jonge gezinnen en iedereen die comfortabel en centraal wil wonen.

Bij binnenkomst stap je de lichte woonkamer binnen, waar het daglicht van beide kanten rijkelijk naar binnen stroomt. Het grote raam aan de voorzijde met vrij uitzicht en de schuifpui aan de achterzijde zorgen voor een open, uitnodigende sfeer. Er is volop ruimte voor een gezellige zithoek én een eettafel waar je samen met vrienden of familie heerlijk kunt tafelen. De keuken bevindt zich achterin de woning en is voorzien van moderne inbouwapparatuur zoals een inductiekookplaat, oven en vaatwasser. Hier kook je met plezier, terwijl je altijd contact houdt met de woonkamer en de tuin.

Via de schuifpui loop je de achtertuin in van ca. 35 m², gelegen op het zuidwesten. Dankzij de gunstige ligging geniet je hier volop van de middag- en avondzon. Er is meer dan genoeg plek voor zowel een eettafel als een loungehoek, zodat je optimaal kunt genieten van het buitenleven. Achter in de tuin vind je de garage, die zowel via de tuin als via de straat bereikbaar is – ideaal voor de fiets, scooter of gewoon als extra bergruimte.

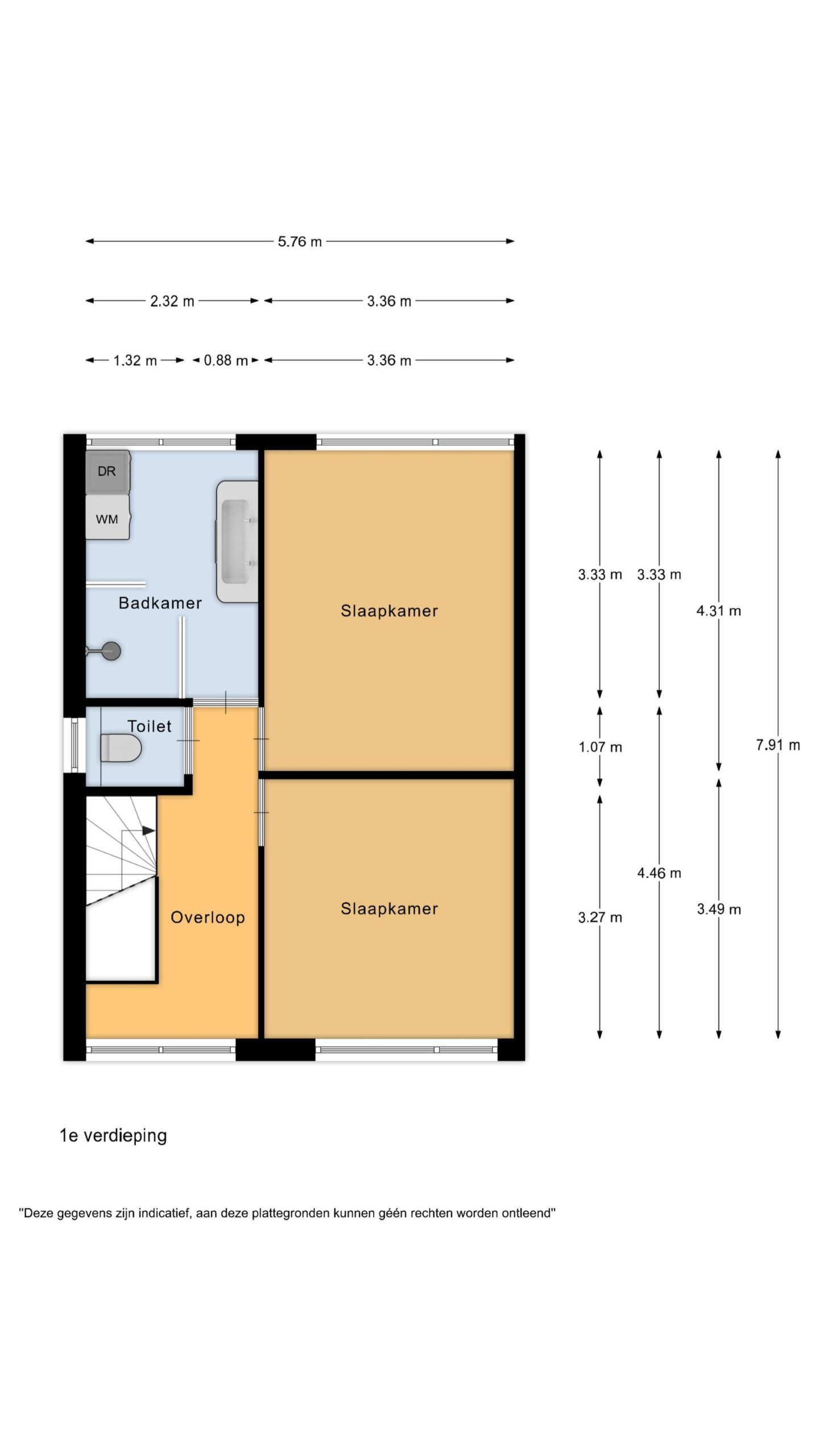
De eerste verdieping biedt twee goed bemeten slaapkamers. De master bedroom is groot genoeg voor een tweepersoonsbed én een royale kastenwand. De tweede kamer is perfect als kinderkamer, logeer- of werkkamer – multifunctioneel en altijd praktisch. Op dezelfde verdieping bevindt zich de badkamer, die netjes en volledig is ingericht met een dubbele wastafel, een ruime inloopdouche en aansluitingen voor wasmachine en droger. De aansluitingen voor de wasmachine en droger werken via aparte groepen, zodat beide apparaten tegelijkertijd kunnen draaien. Op de overloop is een werkplek gerealiseerd en er is tevens ruimte voor een opbouw.

Zie jij jezelf hier al wonen? Plan dan snel een bezichtiging en ontdek zelf de charme van deze fijne woning!

– Bouwjaar: 1961
– Woonoppervlakte: 91 m²
– Perceeloppervlakte: 147 m²
– Energielabel: E

De woning ligt in de rustige en groene wijk Kogerveld. Deze wijk staat bekend om haar vriendelijke, kinderrijke karakter en de vele groen- en waterpartijen. Dankzij het nabijgelegen treinstation Kogerveld en diverse buslijnen zijn er uitstekende verbindingen naar het centrum van Zaandam, Amsterdam en andere omliggende steden. In de directe omgeving vind je scholen, supermarkten, sportfaciliteiten en gezellige eetgelegenheden – allemaal op loop- of fietsafstand. Voor natuurliefhebbers zijn er prachtige wandel- en fietsroutes langs de Zaan en in het nabijgelegen natuur- en recreatiegebied Jagersveld.

Bijzonderheden:
– Ideale starterswoning in Kogerveld;
– Tweelaagse hoekwoning met garage;
– Lichte woonkamer met schuifpui;
– Voorzien van kunststof kozijnen;
– Zonnige achtertuin (zuidwest, ca. 35 m²);
– Twee goed bemeten slaapkamers;
– Nette badkamer met inloopdouche en dubbele wastafel;
– Oplevering in overleg.

Interesse in dit huis? Schakel direct je eigen NVM-aankoopmakelaar in. Jouw NVM-aankoopmakelaar komt op voor jouw belang en bespaart je tijd, geld en zorgen. Adressen van collega NVM-aankoopmakelaars vind je op Funda.

Alles over deze woning
Overdracht
Prijs€ 400.000 k.k.
StatusBeschikbaar
AanvaardingIn overleg
Aangeboden sinds3 oktober 2025
Bouw
Type objectWoonhuis
SoortEengezinswoning
TypeHoekwoning
Bouwjaar1961
Dak typePlat dak
IsolatievormenDubbelglas, HR glas
Oppervlaktes en inhoud
Perceel294 m2
Woonoppervlakte91 m2
Inhoud305 m3
Buitenruimtes gebouwgebonden of vrijstaand0 m2
Tuinoppervlakte70 m2
Indeling
Aantal kamers3
Aantal slaapkamers2
Locatie
LiggingIn woonwijk
Tuin
TypeAchtertuin
StaatNormaal
LiggingZuidwest
AchteromJa
Uitrusting
Soorten warm waterCV ketel
Parkeer faciliteitenOpenbaar parkeren
Virtuele tour
Ik ben Jan den Adel, NVM Register Makelaar/ Nieuwbouw Specialist bij Brantjes Assendelft. Het plannen van een bezichtiging is de eerste stap in de zoektocht naar jouw droomhuis. Ik kijk ernaar uit je binnenkort te ontmoeten en je te helpen bij het vinden van jouw nieuwe thuis!

Plattegronden

Verken de locatie Dovenetelweg 1
Ik ben Jan den Adel, NVM Register Makelaar/ Nieuwbouw Specialist bij Brantjes Assendelft. Het plannen van een bezichtiging is de eerste stap in de zoektocht naar jouw droomhuis. Ik kijk ernaar uit je binnenkort te ontmoeten en je te helpen bij het vinden van jouw nieuwe thuis!