Ga naar content

Dorpsstraat 130

  • 299 m2 woonoppervlakte
  • 4 slaapkamers
  • Bouwjaar 1920
  • 2.305 m2 perceel

Altijd al de droom gehad om landelijk te wonen op een groots perceel van welgeteld 2.305 m² op eigen grond? Die droom word je nu aangeboden! De Dorpsstraat 130 is gelokaliseerd in het rustige en zuidelijke deel van Assendelft. Deze stolpboerderij uit 1920 heeft een riant woonoppervlakte van 299 m². De woning heeft enorm veel potentie en kan jouw eigen droomwoning worden. Hier ontvouwen zich dan ook eindeloze mogelijkheden waar de kansen kunnen worden geweven tot jouw potentiële werkelijkheid.

Alles wat dit huis aanbiedt behoort tot het klassieke plaatje van ruraal wonen in een plattelandswoning. We staan voor het perceel en zien de typische uitstraling van een klassieke stolpboerderij. Een lange oprit belegd met kiezelstenen brengt je naar de carport en garage aan de achterzijde van de woning. De hoeve is beschut gelegen en omringd door eigen tuin. Het kolossale perceel is afgeschermd door bomen waar het aan de achterzijde en de zijkant grenst aan water.

De eindeloze mogelijkheden stralen door naar de binnenzijde van het pand. Het typische leven in een boerderij strekt zich verder naar de indeling. De begane grond biedt alles én meer qua woonruimte en perspectieven: twee kamers (waarvan 1 slaapkamer), twee woonkamers, twee keukens, twee badkamers, een bergingsruimte, kastruimte, een garage en een uitgestrekte hal die geheel met elkaar verbindt. De authentieke accenten strelen het oog door aanwezigheid: klassieke verdiepingsbalken gecombineerd met lambrisering op de wanden en tijdoverstijgende binnen- en buitendeuren complimenteren de authenticiteit van het geheel.

De omringende tuin heeft een oppervlakte van 2.062 m² waar vanzelfsprekend de ruimte wordt geboden om diverse terrassen te creëren, groenvoorzieningen te treffen en waar zelfs op dit moment een vijver aanwezig is voor het houden van vissen.

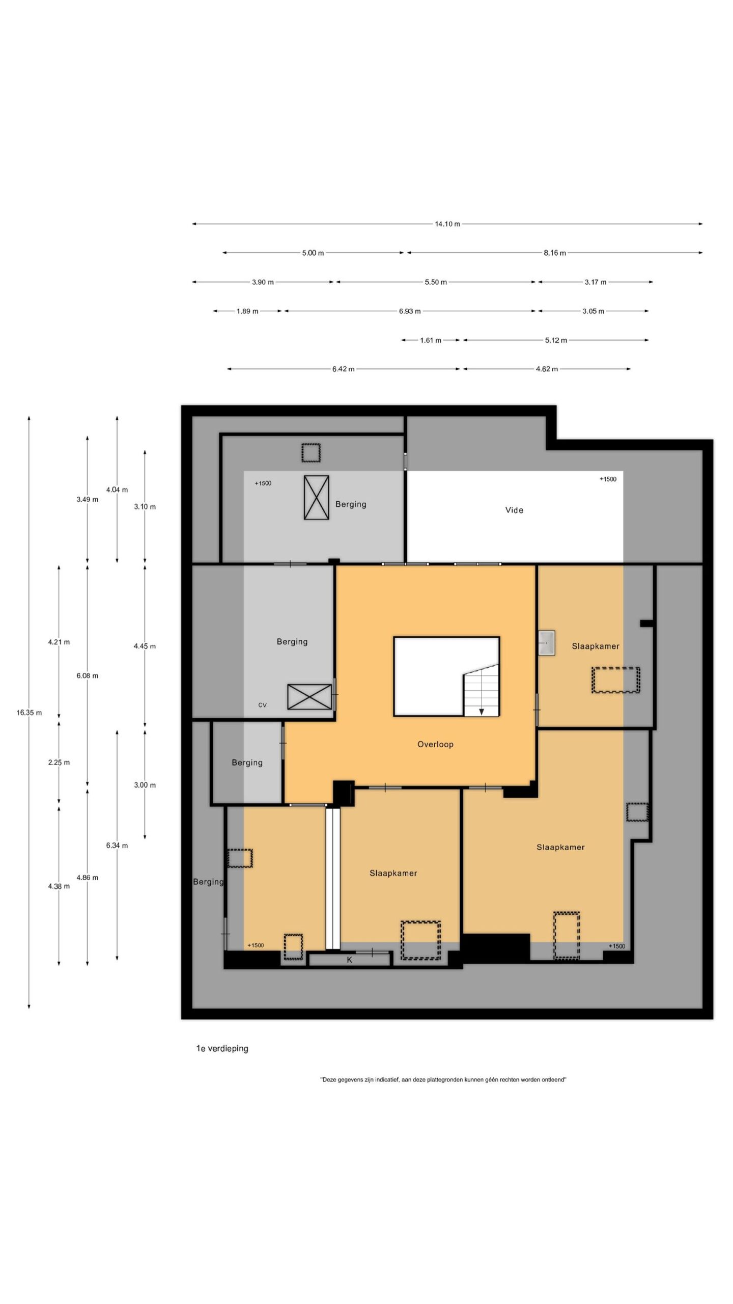
De eerste verdieping herbergt drie verschillende grote slaapvertrekken tezamen met bergingsmogelijkheden en een vide. Centraal staat de overloop die bereikt wordt met een stijlvolle vaste trap vanaf de begane grond. Er is tot slot ook een vliering beschikbaar mocht er nog ruimte benodigd zijn voor eventuele opslag.

Een werkelijk fenomenale plek om volkomen te genieten van een groene, grootse en landelijke omgeving. Benieuwd geworden naar deze stolpboerderij? Neem contact met ons op voor een uitgebreide bezichtiging.

– Bouwjaar: 1920
– Woonoppervlakte: 299 m²
– Perceeloppervlakte: 2.305 m² eigen grond
– Energielabel: E

Bijzonderheden:
– Gedeeltelijke funderingsherstel heeft plaatsgevonden (twee zijmuren zijn voorzien van nieuwe heipalen);
– Vrije ligging met veel land achter de woning;
– Riant perceel met eindeloze mogelijkheden;
– Eigen parkeergelegenheid (carport en garage);
– In opdracht van de gemeente Zaanstad wordt de fundering gemonitord sinds februari 2024, rapportage is beschikbaar;
– Aanvaarding in overleg.

Interesse in dit huis? Schakel direct je eigen NVM-aankoopmakelaar in. Je NVM-aankoopmakelaar komt op voor jouw belang en bespaart je tijd, geld en zorgen. Adressen van collega NVM-aankoopmakelaars vindt je op Funda.

Alles over deze woning
Overdracht
Prijs€ 895.000 k.k.
StatusBeschikbaar
AanvaardingIn overleg
Aangeboden sinds5 juni 2025
Bouw
Type objectWoonhuis
SoortWoonboerderij
TypeVrijstaande woning
Bouwjaar1920
Dak typeTentdak
IsolatievormenGedeeltelijk dubbelglas
Oppervlaktes en inhoud
Perceel2.305 m2
Woonoppervlakte299 m2
Inhoud1.534 m3
Buitenruimtes gebouwgebonden of vrijstaand0 m2
Tuinoppervlakte2.062 m2
Indeling
Aantal kamers7
Aantal slaapkamers4
Locatie
LiggingAan water, Aan rustige weg, Open ligging, Landelijk gelegen
Tuin
TypeAchtertuin
StaatNormaal
LiggingNoordwest
AchteromJa
Uitrusting
Soorten warm waterCV ketel
Parkeer faciliteitenOp eigen terrein
Virtuele tour
Ik ben Corno Pronk, NVM Register Makelaar-Taxateur / Vestigingsmanager bij Brantjes Assendelft. Het plannen van een bezichtiging is de eerste stap in de zoektocht naar jouw droomhuis. Ik kijk ernaar uit je binnenkort te ontmoeten en je te helpen bij het vinden van jouw nieuwe thuis!

Plattegronden

Verken de locatie Dorpsstraat 130
Ik ben Corno Pronk, NVM Register Makelaar-Taxateur / Vestigingsmanager bij Brantjes Assendelft. Het plannen van een bezichtiging is de eerste stap in de zoektocht naar jouw droomhuis. Ik kijk ernaar uit je binnenkort te ontmoeten en je te helpen bij het vinden van jouw nieuwe thuis!