Ga naar content

Deutzstraat 14

  • 158 m2 woonoppervlakte
  • 3 slaapkamers
  • Bouwjaar 1976
  • 122 m2 perceel

Wonen én ondernemen op één centrale locatie in hartje centrum

Algemeen:
In het hart van het centrum van Heemskerk wordt dit unieke object aangeboden: een royale maisonnettewoning op nummer 14, gecombineerd met een ruime winkelruimte op nummer 12. Een ideale kans voor wie wonen en werken wil combineren, zoekt naar een karakteristiek pand met commerciële mogelijkheden, of wil investeren in een multifunctioneel vastgoedobject op een centrale locatie.

Ligging:
Het pand is gelegen aan de Deutzstraat, midden in het dorpscentrum van Heemskerk. In de directe omgeving bevinden zich winkels, horeca, scholen, openbaar vervoer en gratis parkeergelegenheid (en blauwe zone). De centrale ligging zorgt voor uitstekende zichtbaarheid en een constante stroom aan passanten.

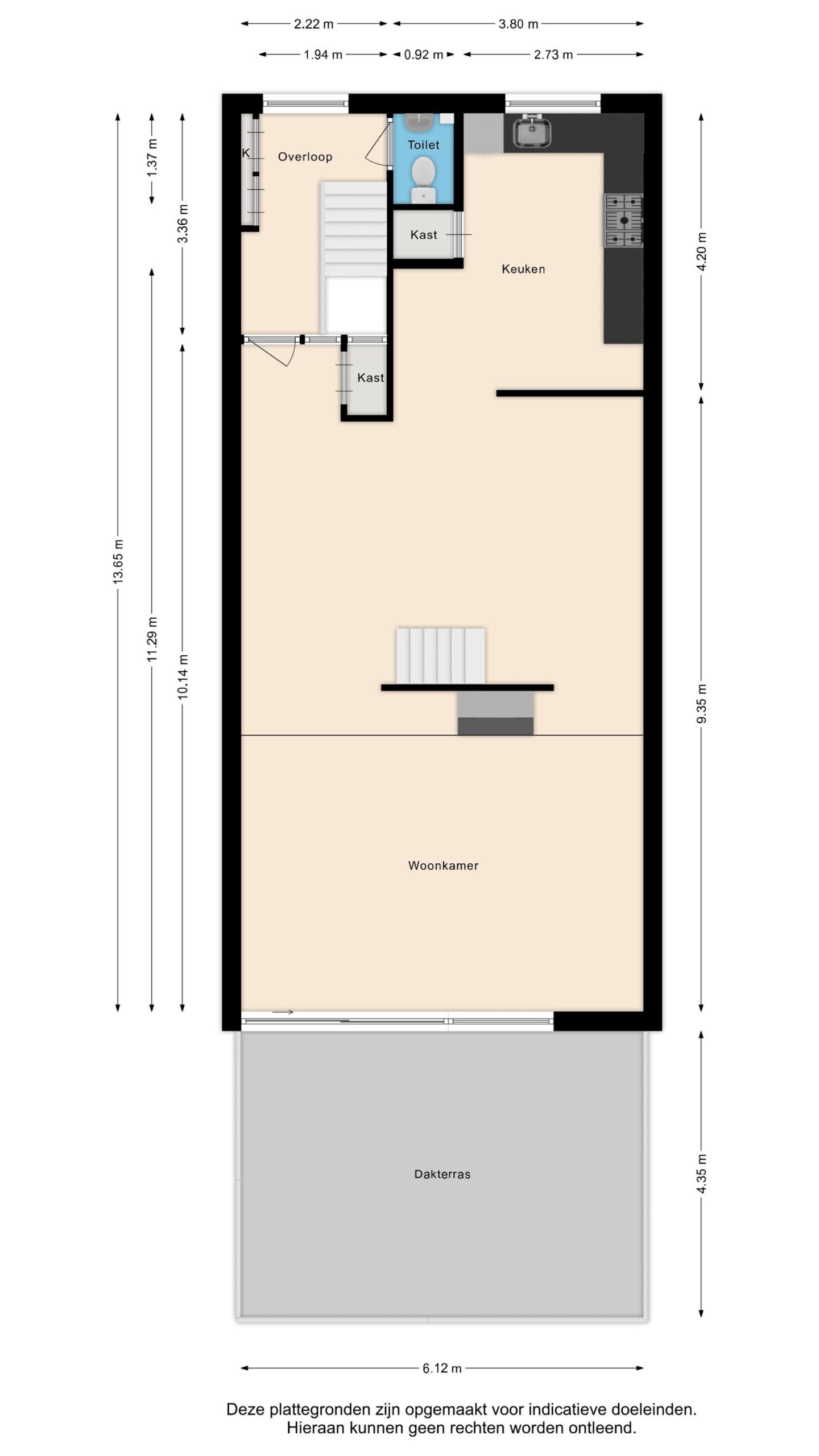
De woning (nr. 14  maisonnette)

De woning is verrassend ruim van opzet, met veel lichtinval, niveauverschillen en grote raampartijen. De sfeervolle woonkamer beschikt over een open haard, houten vloer en brede schuifpui richting het zonnige dakterras van circa 28 m². De halfopen keuken aan de achterzijde is ruim opgezet en profiteert ook van veel natuurlijk licht.

Indeling woning

Tweede verdieping:
· Entree via trapopgang;
· Ruime woonkamer met houten vloer, open haard en grote raampartijen;
· Halfopen keuken;
· Toilet;
· Toegang tot dakterras (circa 28 m²) met veel privacy,

Derde verdieping:
· Overloop;
· Drie ruime slaapkamers;
· Badkamer met ligbad, douche, wastafel en tweede toilet,

Kenmerken woning:
Gebruiksoppervlak wonen ca. 158 m²
Inhoud ca. 491 m³
Aantal slaapkamers 3
Dakterras ca. 28 m²
Bouwjaar 1976

De winkelruimte (nr. 12)

Deze commerciële ruimte maakt deel uit van het te verkopen geheel en biedt uitstekende mogelijkheden voor detailhandel, dienstverlening of atelier. De brede etalage pui, diepe verkoopvloer, kantoor-/opslagruimte en extra verdieping maken dit een aantrekkelijke bedrijfsruimte met hoge zichtbaarheid.

Indeling commerciële ruimte:

Begane grond:
· Ruime winkel-/verkoopvloer met brede frontbreedte;
· Achtergelegen kantoor-/opslagruimte;
· Toegang tot trapopgang.

1e Verdieping (afhankelijk van mogelijke splitsing kan dit ook bij de woning worden getrokken)
· Kantoor-/opslagruimte met zicht op bedrijfsvoering
· Geschikt voor administratie, personeel of voorraad

Kenmerken winkelruimte:
Bruto vloeroppervlak ca. 154 m2
Verdieping kantoor-/opslagruimte
Bestemming C1 – winkelruimte
Parkeren Gratis (blauwe zone), openbare parkeergelegenheid
Oplevering as is where is
(Voor bestemmingsinformatie en voorwaarden, zie Funda in Business)

Bijzonderheden
· Combinatie van ruime woning en winkelruimte;
· Unieke kans om wonen en ondernemen te combineren;
· Centrale ligging in hartje centrum;
· Veel lichtinval en speelse woningindeling;
· Ideaal voor eigen gebruik of als beleggingsobject;
· Parkeren in de omgeving gratis en met blauwe kaart;
· Verkoop vindt plaats op basis van as is where is;
· Bestemming C1 (winkelruimte);
· Oplevering in overleg.

Bestemming en mogelijkheden

De winkelruimte op nummer 12 beschikt over bestemming C1 detailhandel, met mogelijkheden voor winkels, dienstverlening en kleinschalige commerciële activiteiten. Het geheel biedt interessante kansen voor bijvoorbeeld winkel aan huis, praktijkruimte, showroom, salon, kantoor, atelier of belegging.

Een uniek object met karakter en mogelijkheden midden in het centrum van Heemskerk.

Interesse in dit huis? Schakel direct jouw eigen NVM-aankoopmakelaar in. Jouw NVM-aankoopmakelaar komt op voor jouw belang en bespaart je tijd, geld en zorgen. Adressen van collega NVM-aankoopmakelaars vind je op Funda.

Alles over deze woning
Overdracht
Prijs€ 789.000 k.k.
StatusBeschikbaar
AanvaardingIn overleg
Aangeboden sinds19 november 2025
Bouw
Type objectAppartement
Bouwjaar1976
SoortMaisonnette
Woonlaag2
Dak typePlat dak
IsolatievormenDubbelglas
Oppervlaktes en inhoud
Perceel122 m2
Woonoppervlakte158 m2
Inhoud491 m3
Buitenruimtes gebouwgebonden of vrijstaand28 m2
Indeling
Aantal kamers4
Aantal slaapkamers3
Locatie
LiggingIn centrum
Tuin
AchteromNee
Uitrusting
Soorten warm waterCV ketel
Parkeer faciliteitenOpenbaar parkeren
Ik ben Raymond Westra, NVM Register Makelaar bij Brantjes Heemskerk. Het plannen van een bezichtiging is de eerste stap in de zoektocht naar jouw droomhuis. Ik kijk ernaar uit je binnenkort te ontmoeten en je te helpen bij het vinden van jouw nieuwe thuis!

Plattegronden

Verken de locatie Deutzstraat 14
Ik ben Raymond Westra, NVM Register Makelaar bij Brantjes Heemskerk. Het plannen van een bezichtiging is de eerste stap in de zoektocht naar jouw droomhuis. Ik kijk ernaar uit je binnenkort te ontmoeten en je te helpen bij het vinden van jouw nieuwe thuis!