Ga naar content

Delftlaan 42

  • 83 m2 woonoppervlakte
  • 4 slaapkamers
  • Bouwjaar 1961
  • 130 m2 perceel

Fijne tussenwoning met vier slaapkamers in rustige en kindvriendelijke buurt!

Op zoek naar een comfortabele gezinswoning op een rustige plek met alle voorzieningen dichtbij? Deze fijne tussenwoning in Assendelft biedt ruimte, praktische indeling en een prettige woonomgeving, ideaal voor starters en jonge gezinnen.

Je komt binnen in de hal met toegang tot het toilet, waarna je doorloopt naar de lichte en aangename woonkamer. Dankzij de grote raampartijen geniet je hier van een prettige lichtinval en een open sfeer. De woning heeft een praktische indeling die zich uitstekend leent voor dagelijks gezinsleven. De keuken is functioneel ingericht en voorzien van diverse apparatuur, met directe toegang tot de achtertuin.

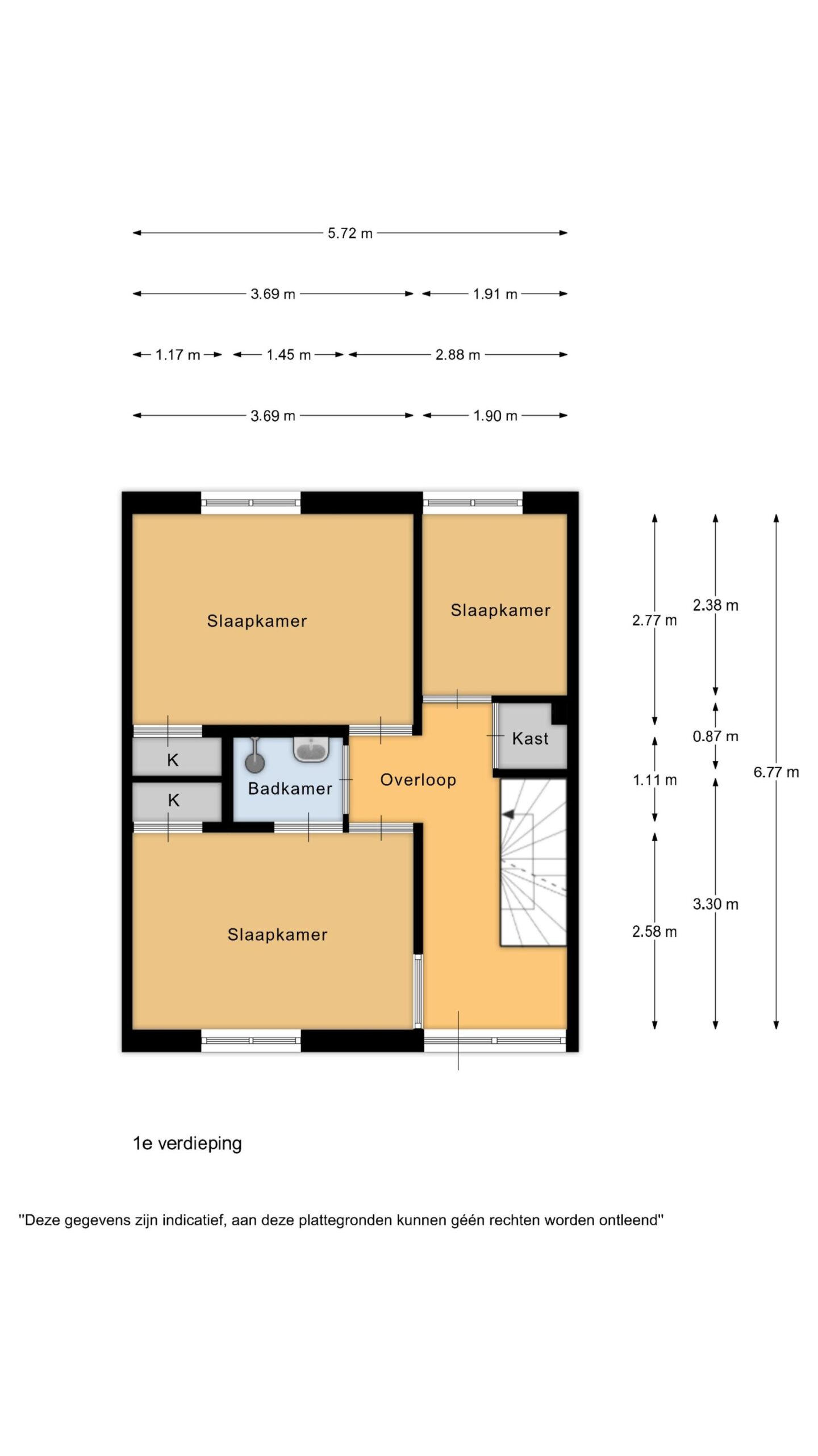
Op de verdiepingen vind je in totaal vier slaapkamers, waardoor er voldoende ruimte is voor een gezin, thuiswerken of hobby’s. De kamers zijn goed bemeten en flexibel in te delen. De badkamer is compact en praktisch ingericht.

De achtertuin biedt een fijne buitenruimte waar je kunt genieten van rust en privacy. Met zowel een voor- als achtertuin is er altijd wel een plekje in de zon of schaduw te vinden.

De woning is in de loop der jaren op meerdere punten verbeterd, waaronder de isolatie van vloer, dak en gevel, en is voorzien van een recent geplaatste cv-ketel. Dit zorgt voor een aangenaam en energiezuiniger woonklimaat. Het energielabel is opgesteld in 2022, waarbij nadien nog extra isolerende maatregelen zijn uitgevoerd en de nieuwe cv-ketel is geplaatst.

Ben je ook zo enthousiast geworden? Bel Brantjes voor een bezichtiging, we laten deze woning graag aan je zien.

– Bouwjaar: 1961
– Woonoppervlakte: 83 m²
– Perceeloppervlakte: 130 m²
– Energielabel: D

De woning ligt in een rustige woonwijk in Assendelft, waar kinderen veilig kunnen spelen en waar buren elkaar kennen. Voorzieningen als supermarkten, scholen, sportclubs en openbaar vervoer zijn binnen handbereik. Ook de uitvalswegen richting Amsterdam, Haarlem en Zaandam zijn uitstekend bereikbaar. Een ideale plek voor wie rustig wil wonen, maar wel graag alles dichtbij heeft.

Bijzonderheden:
– Vier slaapkamers aanwezig
– Voor- en achtertuin (zuidoost) met fijne buitenruimte
– Woning voorzien van dak-, vloer- en muurisolatie (recent aangebracht)
– Cv-ketel uit 2025 (Remeha, eigendom)
– Dubbele beglazing in de gehele woning
– Glasvezel aanwezig
– Onderhoud cv-installatiecontract lopend tot 2027
– De woning ligt in een rustige en kindvriendelijke buurt.

Aanvaarding in overleg.

Interesse in dit huis? Schakel direct jouw eigen NVM-aankoopmakelaar in. Jouw NVM-aankoopmakelaar komt op voor jouw belang en bespaart je tijd, geld en zorgen. Adressen van collega NVM-aankoopmakelaars vind je op Funda.

Alles over deze woning
Overdracht
Prijs€ 360.000 k.k.
StatusBeschikbaar
AanvaardingIn overleg
Aangeboden sinds24 maart 2026
Bouw
Type objectWoonhuis
SoortEengezinswoning
TypeTussenwoning
Bouwjaar1961
Dak typeZadeldak
IsolatievormenDakisolatie, Muurisolatie, Vloerisolatie, Dubbelglas
Oppervlaktes en inhoud
Perceel130 m2
Woonoppervlakte83 m2
Inhoud330 m3
Buitenruimtes gebouwgebonden of vrijstaand0 m2
Tuinoppervlakte86 m2
Indeling
Aantal kamers5
Aantal slaapkamers4
Locatie
LiggingAan rustige weg, In woonwijk
Tuin
TypeAchtertuin
StaatNormaal
LiggingZuidoost
AchteromJa
Uitrusting
Soorten warm waterCV ketel
Parkeer faciliteitenOpenbaar parkeren
Virtuele tour
Ik ben Kevin Trompert, NVM Makelaar bij Brantjes Assendelft. Het plannen van een bezichtiging is de eerste stap in de zoektocht naar jouw droomhuis. Ik kijk ernaar uit je binnenkort te ontmoeten en je te helpen bij het vinden van jouw nieuwe thuis!

Plattegronden

Verken de locatie Delftlaan 42
Ik ben Kevin Trompert, NVM Makelaar bij Brantjes Assendelft. Het plannen van een bezichtiging is de eerste stap in de zoektocht naar jouw droomhuis. Ik kijk ernaar uit je binnenkort te ontmoeten en je te helpen bij het vinden van jouw nieuwe thuis!