Ga naar content

De Twee Gebroeders 37

  • 85 m2 woonoppervlakte
  • 3 slaapkamers
  • Bouwjaar 1977
  • 105 m2 perceel

Wonen aan vaarwater in de populaire buurt ’t Kalf. Deze uitgebouwde woning ligt verscholen op een rustig woonerf waar uitsluitend bestemmingsverkeer komt.

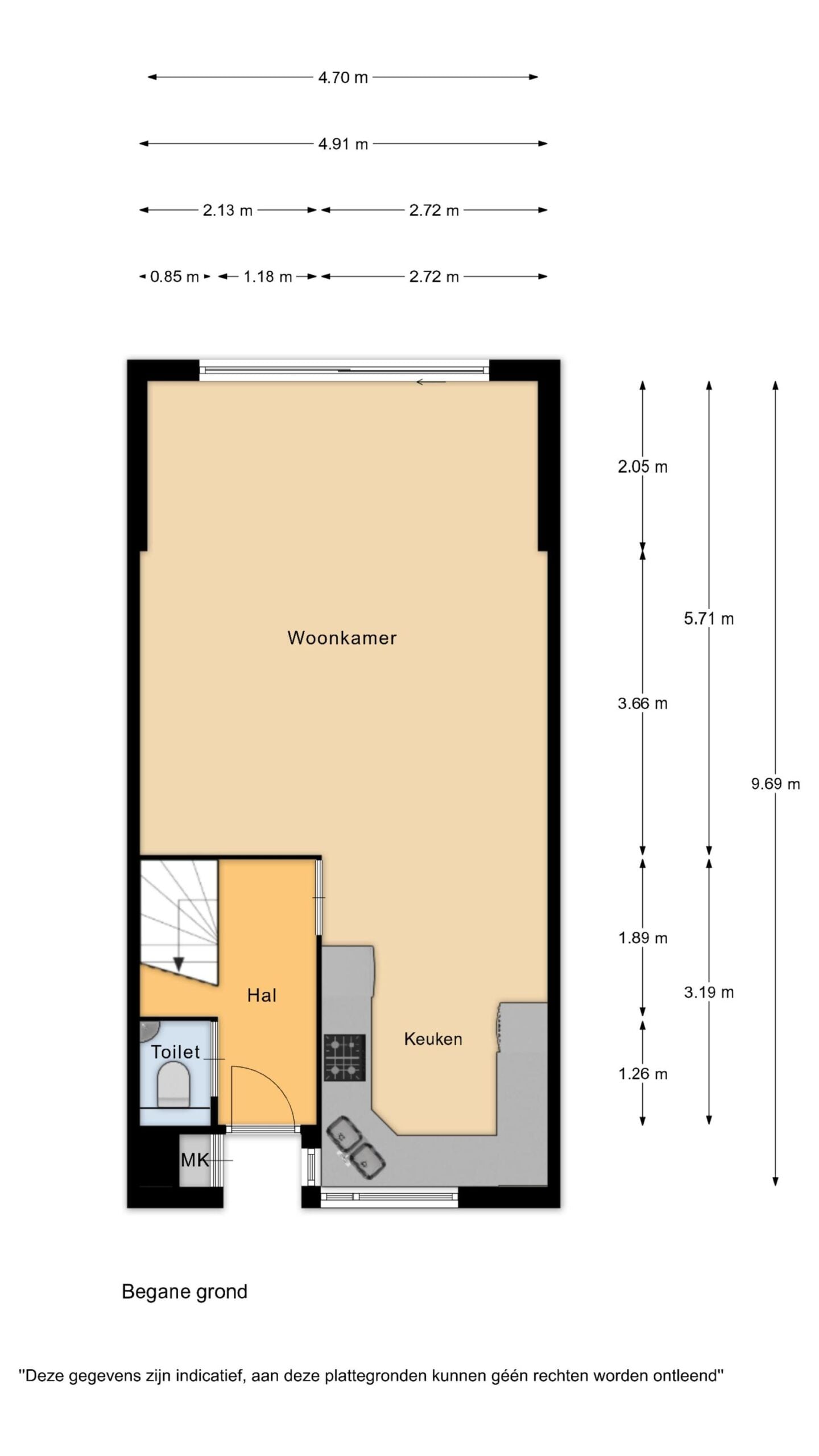
Bij binnenkomst valt direct de royale en lichte woonkamer op. De uitbouw aan de achterzijde (2005) in combinatie met de grote schuifpui zorgt voor een overvloed aan daglicht en een ruimtelijk gevoel. Er is meer dan voldoende plek voor zowel een comfortabele zithoek als een grote eettafel, een ideale leefruimte waar je echt tot rust komt. Aan de voorzijde bevindt zich de keuken, voorzien van diverse inbouwapparatuur zoals een oven, combimagnetron en vaatwasser. De kookplaat, afzuigkap en koelkast zijn in 2023 vernieuwd. Vanuit de keuken heb je een prettig uitzicht over de straat.

Via de schuifpui bereik je de fraai aangelegde achtertuin, waar een goede balans tussen groen en bestrating zorgt voor een sfeervolle en onderhoudsvriendelijke buitenruimte. Het absolute hoogtepunt is de ligging aan vaarwater. Met een bootje vaar je zo richting het Jagersplas, een unieke toevoeging aan het wooncomfort.

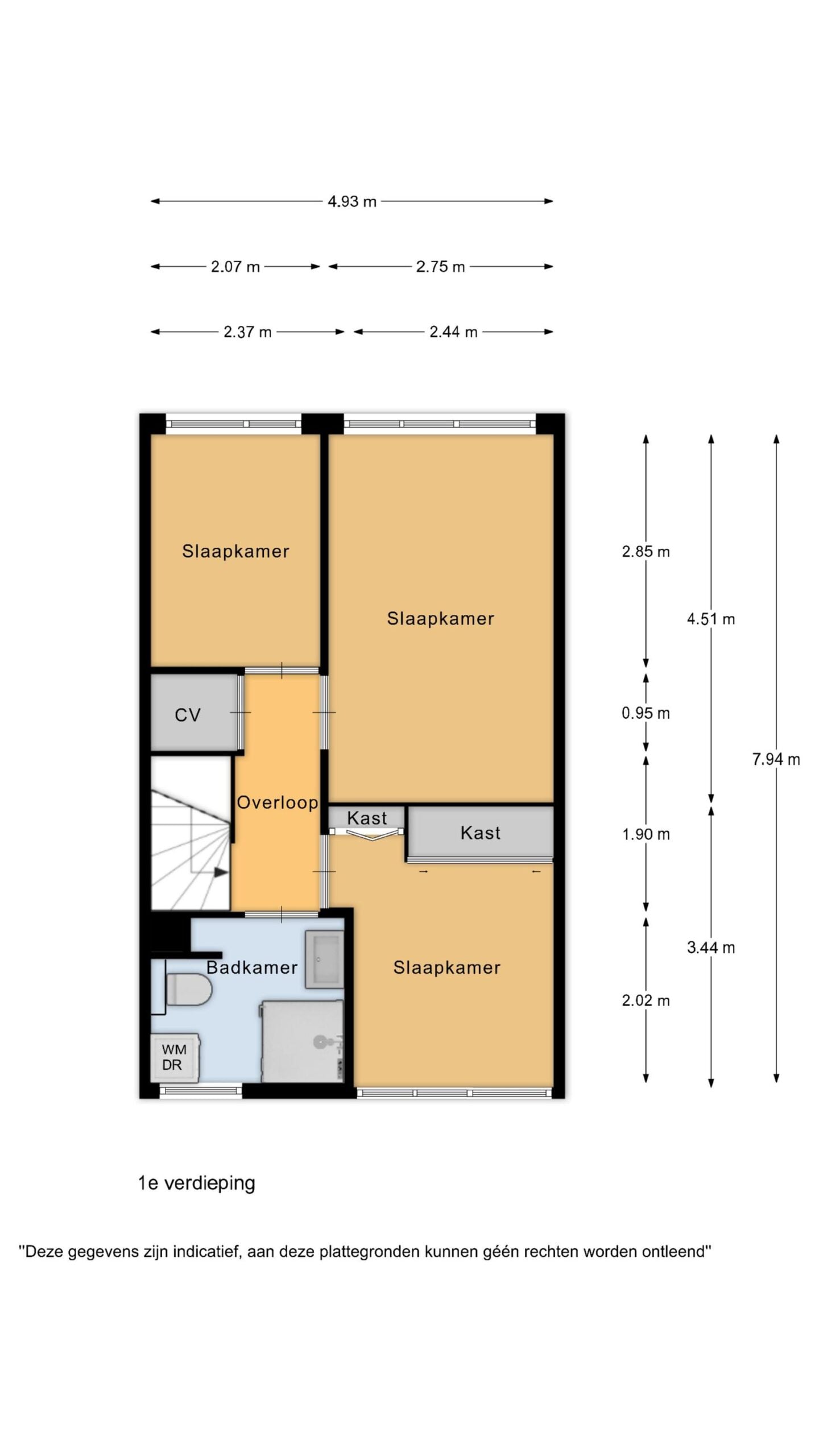
Op de eerste verdieping bevinden zich drie goed bemeten slaapkamers. De slaapkamer aan de achterzijde fungeert als ruime master bedroom met voldoende ruimte voor een groot bed en een kastenwand. De overige kamers zijn flexibel in te delen als kinder-, werk- of logeerkamer. De badkamer is praktisch en compleet uitgevoerd met een toilet, inloopdouche, wastafel en aansluitingen voor wasmachine en droger. De afwerking is netjes en verzorgd. Aan de voorzijde is bovendien een stenen berging aanwezig, ideaal voor fietsen en extra opslag. Daarnaast is de woning verduurzaamd met 8 zonnepanelen (2022), extra vloerisolatie (2023) en een cv-ketel uit 2020, wat zorgt voor een energiezuiniger geheel en lagere maandlasten.

Kortom: een verrassend ruime en lichte woning op een rustige locatie, met als absolute eyecatcher de tuin aan het water. Comfortabel wonen met een vleugje luxe. Plan snel een bezichtiging en ervaar het zelf!

– Bouwjaar: 1977
– Woonoppervlakte: 85 m²
– Perceeloppervlakte: 105 m² eigen grond
– Energielabel: C

De woning ligt in een heerlijk stukje Zaandam, omringd door een prettige en diverse omgeving. ’t Kalf staat bekend als een kindvriendelijke wijk met een gezellige sfeer. Vlak bij de woning vind je een basisschool, wat het perfect maakt voor gezinnen met jonge kinderen. Daarnaast zijn er meerdere speelplaatsen in de buurt waar de kleintjes veilig kunnen spelen. Op loopafstand bevindt zich een compleet winkelcentrum waar je terechtkunt voor al je dagelijkse boodschappen. De diversiteit aan winkels en eetgelegenheden biedt volop keuzemogelijkheden. Voor natuurliefhebbers en recreanten is de prachtige Jagersplas in de nabijheid. Hier kun je genieten van een ontspannen wandeling langs het water of een picknick in het groen. De bereikbaarheid is uitstekend. Dichtbijgelegen bushaltes zorgen voor goede verbindingen met het openbaar vervoer, terwijl het nabijgelegen NS-station je snel naar de grote steden brengt. Met de nabijgelegen snelwegen ben je bovendien in no time op weg naar bestemmingen verder weg.

Bijzonderheden:
– Uitgebouwde woning gelegen aan vaarwater;
– Prettige voortuin met de mogelijkheid tot parkeren op eigen terrein;
– Keuken aan de voorzijde met vernieuwde kookplaat, afzuigkap en koelkast in 2023;
– De CV-ketel is in 2020 geplaatst;
– 8 zonnepanelen aanwezig uit 2022;
– In 2023 extra vloerisolatie (Quadfoam) aangebracht;
– De woning beschikt over drie slaapkamers;
– Gelegen in de rustige en populaire wijk ’t Kalf;
– Voorzieningen op loopafstand;
– Oplevering in overleg.

Interesse in dit huis? Schakel direct je eigen NVM-aankoopmakelaar in. Jouw NVM-aankoopmakelaar komt op voor jouw belang en bespaart je tijd, geld en zorgen. Adressen van collega NVM-aankoopmakelaars vind je op Funda.

Alles over deze woning
Overdracht
Prijs€ 410.000 k.k.
StatusBeschikbaar
AanvaardingIn overleg
Aangeboden sinds21 maart 2026
Bouw
Type objectWoonhuis
SoortEengezinswoning
TypeTussenwoning
Bouwjaar1977
Dak typeZadeldak
IsolatievormenDakisolatie, Muurisolatie, Vloerisolatie, Gedeeltelijk dubbelglas
Oppervlaktes en inhoud
Perceel105 m2
Woonoppervlakte85 m2
Inhoud304 m3
Buitenruimtes gebouwgebonden of vrijstaand0 m2
Tuinoppervlakte48 m2
Indeling
Aantal kamers4
Aantal slaapkamers3
Locatie
LiggingAan water, In woonwijk, Aan vaarwater
Tuin
TypeAchtertuin
StaatNormaal
LiggingNoord
AchteromNee
Uitrusting
Soorten warm waterCV ketel
Parkeer faciliteitenOpenbaar parkeren, Op eigen terrein
Virtuele tour
Ik ben Kevin Trompert, NVM Makelaar bij Brantjes Assendelft. Het plannen van een bezichtiging is de eerste stap in de zoektocht naar jouw droomhuis. Ik kijk ernaar uit je binnenkort te ontmoeten en je te helpen bij het vinden van jouw nieuwe thuis!

Plattegronden

Verken de locatie De Twee Gebroeders 37
Ik ben Kevin Trompert, NVM Makelaar bij Brantjes Assendelft. Het plannen van een bezichtiging is de eerste stap in de zoektocht naar jouw droomhuis. Ik kijk ernaar uit je binnenkort te ontmoeten en je te helpen bij het vinden van jouw nieuwe thuis!