Ga naar content

De Mei 18

  • 79 m2 woonoppervlakte
  • 3 slaapkamers
  • Bouwjaar 1980
  • 84 m2 perceel

Sfeervol wonen nabij De Zaan – instapklare eindwoning met zonnige tuin en eigen parkeerplaats!

Je zou het misschien niet denken, maar aan De Mei 18 woon je op steenworp afstand van De Zaan en geniet je hier van een heerlijk rustige woonomgeving! Deze charmante eindwoning combineert het beste van twee werelden: een centrale ligging én een fijne, ontspannen sfeer. Met zijn lichte woonkamer, moderne afwerking en zonnige tuin is dit een huis waar je je direct thuis voelt.

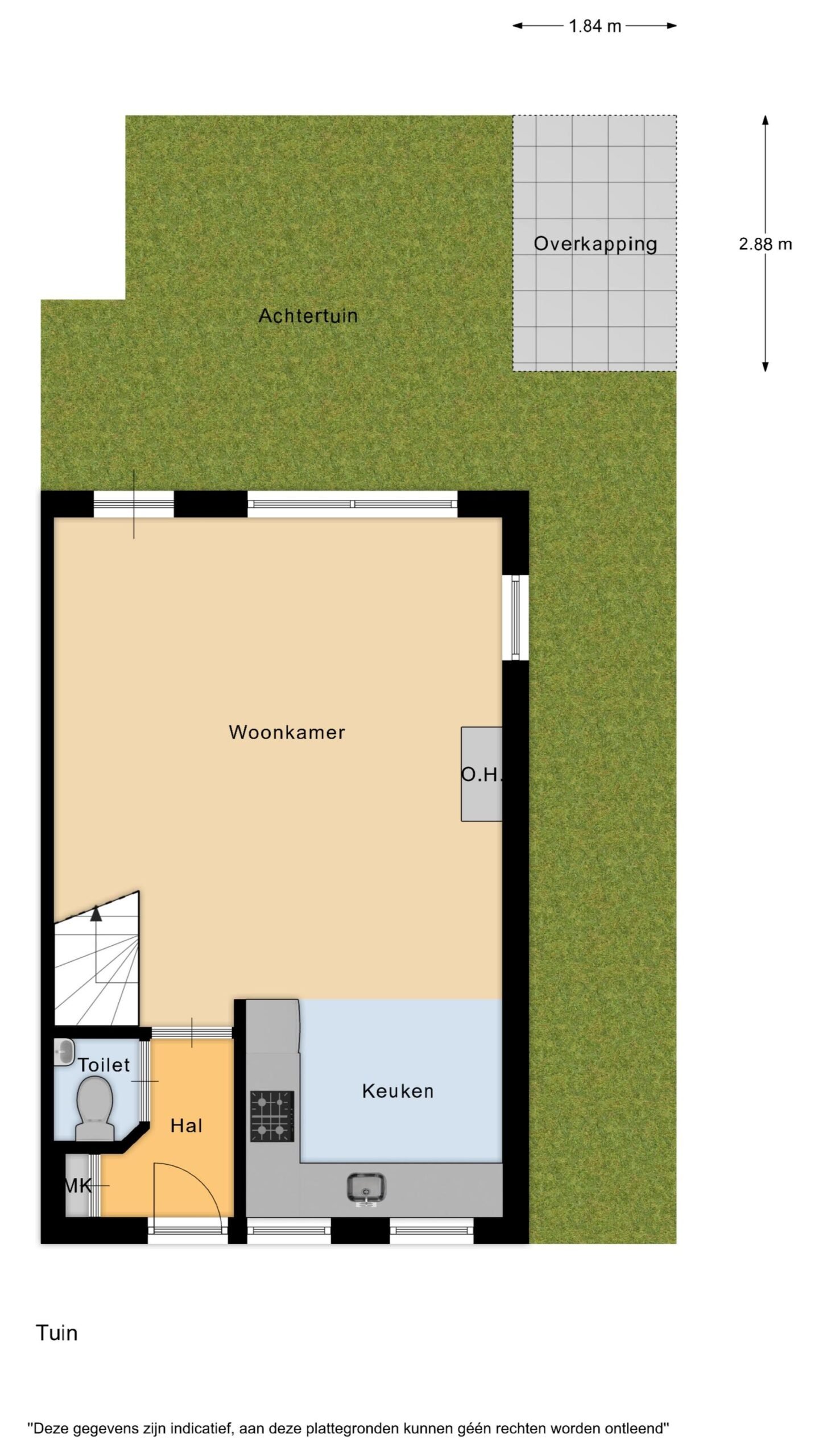
Je komt binnen in een verzorgde hal met een modern toilet en voldoende ruimte voor jassen en schoenen. Vanuit hier loop je door naar de woonkamer, waar de zithoek aan de tuinzijde een heerlijke, lichte plek vormt met volop privacy, hier voel je direct de rust van thuis. Aan de voorzijde ligt de keuken, geplaatst in 2010 en voorzien van moderne inbouwapparatuur uit 2022. De eethoek verbindt de twee ruimtes op een natuurlijke manier, waardoor koken, eten en gezellig samenzijn in elkaar overlopen.

De wanden en plafonds zijn in 2023 volledig gestuct, wat het geheel een frisse, moderne uitstraling geeft. Via de tuindeur stap je de zonnige achtertuin in, compleet met overkapping, een plek waar je het hele jaar door buiten kunt genieten van de zon.

Op de eerste verdieping bevinden zich drie ruime slaapkamers, voorzien van nieuw stucwerk en nieuwe vloeren (2023). De badkamer is in 2024 geheel vernieuwd en uitgevoerd met visgraattegels en beton ciré; stijlvol, fris en met een moderne wastafel en douche.

Via de vlizotrap bereik je de bergzolder, handig voor extra opbergruimte. In de huidige situatie wordt deze gebruikt als bergruimte (ca. 16 m²), maar met het plaatsen van een vaste trap zou hier eenvoudig een extra kamer kunnen ontstaan.

Ben je enthousiast geworden na het lezen van deze tekst? Neem dan snel contact met ons op, we laten je de woning graag persoonlijk zien tijdens een bezichtiging!

Kenmerken
Bouwjaar: 1980
Perceeloppervlakte: 84 m²
Woonoppervlakte: 79 m²
Inhoud: 349 m³
Energielabel: C

De woonwijk / ligging
Je woont hier op een ideale plek in Wormerveer: rustig, groen en toch verrassend centraal. Op slechts enkele minuten lopen ligt NS-station Wormerveer, vanwaar je binnen 20 minuten op Amsterdam Centraal staat. Ook de uitvalswegen richting Zaandam, Alkmaar, Haarlem en Amsterdam liggen om de hoek, wat de locatie bijzonder gunstig maakt.

Voor ontspanning en gezelligheid hoef je niet ver: de Zaanbocht met haar sfeervolle winkeltjes, terrasjes en leuke evenementen ligt op loop- of fietsafstand. En voor wie van natuur houdt, is dit een perfecte uitvalsbasis: je wandelt of fietst zo naar de oevers van De Zaan, of verder richting het prachtige Wormer- en Jisperveld – een uniek natuurgebied vol rust, water en weidse vergezichten.

Hier woon je echt met het beste van twee werelden: de dynamiek van de Zaanstreek binnen handbereik, én de rust van een fijne, gemoedelijke woonwijk.

Bijzonderheden
– Badkamer vernieuwd in 2024, uitgevoerd met visgraattegels en beton ciré
– Keuken uit 2010, met inbouwapparatuur vernieuwd in 2022
– Stucwerk gehele woning (2023)
– Nieuwe vloeren boven (2023)
– Kunststof kozijnen eerste verdieping en deels begane grond
– Schilderwerk buiten 2019, inclusief nieuwe boeidelen en kozijnen beneden
– Eigen parkeerplaats
– Rustige ligging nabij De Zaan, met alle voorzieningen dichtbij
– Aanvaarding in overleg

Interesse in dit huis? Schakel direct jouw eigen NVM-aankoopmakelaar in. Jouw NVM-aankoopmakelaar komt op voor jouw belang en bespaart je tijd, geld en zorgen. Adressen van collega NVM-aankoopmakelaars vind je op Funda.

Alles over deze woning
Overdracht
Prijs€ 415.000 k.k.
StatusBeschikbaar
AanvaardingIn overleg
Aangeboden sinds29 oktober 2025
Bouw
Type objectWoonhuis
SoortEengezinswoning
TypeEindwoning
Bouwjaar1980
Dak typeZadeldak
IsolatievormenDakisolatie, Muurisolatie, Dubbelglas
Oppervlaktes en inhoud
Perceel84 m2
Woonoppervlakte79 m2
Inhoud349 m3
Buitenruimtes gebouwgebonden of vrijstaand0 m2
Tuinoppervlakte31 m2
Indeling
Aantal kamers4
Aantal slaapkamers3
Locatie
LiggingAan rustige weg, In woonwijk
Tuin
TypeAchtertuin
StaatNormaal
LiggingZuidwest
AchteromJa
Uitrusting
Soorten warm waterCV ketel
Parkeer faciliteitenOpenbaar parkeren
Virtuele tour
Ik ben Roan Mulderij, NVM Makelaar bij Brantjes Wormerland. Het plannen van een bezichtiging is de eerste stap in de zoektocht naar jouw droomhuis. Ik kijk ernaar uit je binnenkort te ontmoeten en je te helpen bij het vinden van jouw nieuwe thuis!

Plattegronden

Verken de locatie De Mei 18
Ik ben Roan Mulderij, NVM Makelaar bij Brantjes Wormerland. Het plannen van een bezichtiging is de eerste stap in de zoektocht naar jouw droomhuis. Ik kijk ernaar uit je binnenkort te ontmoeten en je te helpen bij het vinden van jouw nieuwe thuis!