Ga naar content

Celebesstraat 70

  • 97 m2 woonoppervlakte
  • 2 slaapkamers
  • Bouwjaar 1930
  • 119 m2 perceel

Charmante jaren ’30 twee-onder-een-kap!

In de geliefde en sfeervolle Indische Buurt van Wormerveer staat aan de Celebesstraat 70 een charmante jaren ’30 twee-onder-een-kapwoning die de afgelopen jaren een indrukwekkende metamorfose heeft ondergaan. Sinds de aankoop is de woning met veel liefde, aandacht en smaak gemoderniseerd, waarbij het karakter van de jaren ’30 met zorg behouden is gebleven. Het resultaat is een warm, stijlvol en instap klaar thuis waarin alles klopt: van de vernieuwde keuken en het moderne sanitair tot de vernieuwde trap, de lichte ruimtes en de zonnige tuin.

Bij binnenkomst voelt de woonkamer direct uitnodigend. De houttinten, grote raampartijen en de sfeervolle open haard geven de ruimte een zachte, warme uitstraling. De huidige eigenaren hebben met veel oog voor detail gerenoveerd, wat overal zichtbaar is. Aan de achterzijde ligt de moderne keuken uit 2023, uitgevoerd in rustige houtaccenten en met alle benodigde inbouwapparatuur. Aansluitend bevindt zich in de aanbouw het eveneens gerenoveerde toilet, praktisch en modern vormgegeven. Vanuit zowel de keuken als de woonkamer met openslaande deuren loopt binnen moeiteloos over in buiten.

De achtertuin ligt op het westen, waardoor je vanaf de middag tot in de avond heerlijk van de zon geniet. De tuin heeft een prettig formaat: overzichtelijk, sfeervol in te richten en groot genoeg voor meerdere zitplekken. Achterin staat een ruime en geïsoleerde berging, ideaal voor wie graag aan huis werkt, klust of een hobbyruimte zoekt met serieuze werkruimte.

De trap naar de eerste verdieping is volledig vervangen en aansluitend in stijl mee geschilderd, waardoor deze naadloos onderdeel is van het interieur. Boven bevindt zich een ruime slaapkamer met rechte wanden en veel licht. Oorspronkelijk waren dit twee kamers; die indeling is desgewenst eenvoudig terug te brengen voor wie extra slaapkamers nodig heeft. De moderne badkamer is comfortabel en eigentijds uitgerust met een inloopdouche, een stijlvol wastafelmeubel en een nieuw toilet.

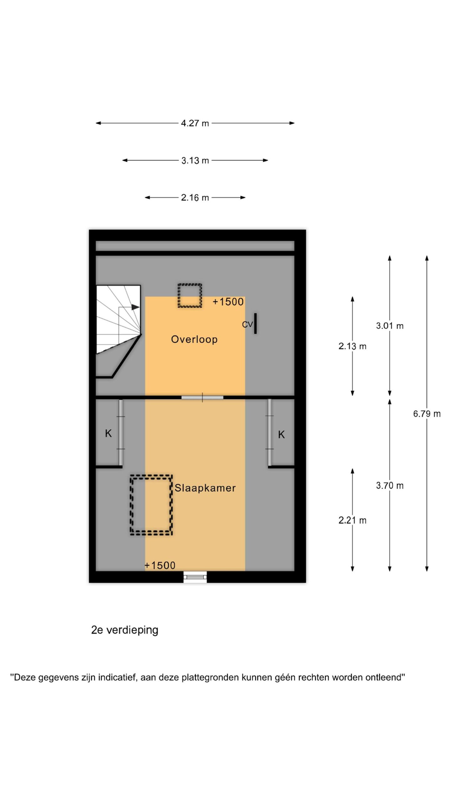
De tweede verdieping voelt als een volwaardige extra woonlaag en biedt een fijne extra slaapkamer, licht en praktisch in te richten. Op de overloop bevinden zich de cv-installatie (onderhoud in 2025) en extra bergruimte, wat de verdieping niet alleen sfeervol maar ook functioneel maakt.

Ben je enthousiast geworden na het lezen van de tekst? Neem dan snel contact met ons op! We laten je de woning graag zien tijdens een persoonlijke bezichtiging.

Overzicht
– Bouwjaar: 1930
– Perceeloppervlakte: 119 m²
– Woonoppervlakte: 97 m²
– Inhoud: 333 m³
– Energielabel: E

Ligging
Celebesstraat 70 ligt in de geliefde Indische Buurt van Wormerveer, een rustige en gezellige woonwijk met karakteristieke jaren ’30-bebouwing en een warme, dorps aanvoelende sfeer. Op loopafstand vind je werkelijk alles wat het dagelijks leven gemakkelijk maakt: winkels, scholen, speeltuinen, horeca en fijne wandelroutes langs de Zaan. De Dekamarkt ligt letterlijk om de hoek, waardoor je zo even naar de supermarkt wandelt voor een boodschap of vers brood.

Het station van Wormerveer bevindt zich op korte afstand en maakt reizen richting Amsterdam, Zaandam of Alkmaar bijzonder eenvoudig. Ook met de auto is de bereikbaarheid uitstekend; via de nabijgelegen uitvalswegen rijd je binnen enkele minuten richting de A8 en A9, waardoor grote steden als Amsterdam, Haarlem en Alkmaar snel te bereiken zijn.

Toch woon je hier niet alleen gunstig voor werk of stedelijke uitstapjes, maar ook ideaal voor liefhebbers van rust en natuur. Binnen nog geen 25 minuten sta je op het strand, wandel je door duingebieden, fiets je door het bos of ontdek je de groene omgeving rondom de Zaanstreek en het Alkmaardermeer. Het is precies deze combinatie van gemak, bereikbaarheid en natuur die de locatie van deze woning zo aantrekkelijk maakt.

Bijzonderheden
– Charmante jaren ’30 twee-onder-een-kapwoning;
– Sfeervolle woonkamer met open haard;
– Moderne keuken (2023) met inbouwapparatuur;
– Moderne badkamer;
– Dakisolatie (2022), vloerisolatie (2024), dubbel glas en HR+ glas aanwezig;
– Platte daken van keuken en berging vernieuwd en geïsoleerd;
– Cv-ketel Intergas HRE 28/24 (2014), onderhoud 2025;
– Openslaande deuren naar fijne achtertuin;
– Elektra deels vernieuwd (nieuwe meterkast en stopcontacten begane grond);
– Riolering deels vernieuwd (2024);
– Aanvaarding in overleg.

Interesse in dit huis? Schakel direct jouw eigen NVM-aankoopmakelaar in. Jouw NVM-aankoopmakelaar komt op voor jouw belang en bespaart je tijd, geld en zorgen. Adressen van collega NVM-aankoopmakelaars vind je op Funda.

Alles over deze woning
Overdracht
Prijs€ 375.000 k.k.
StatusVerkocht onder voorbehoud
AanvaardingIn overleg
Aangeboden sinds2 maart 2026
Bouw
Type objectWoonhuis
SoortEengezinswoning
TypeTwee onder één kapwoning
Bouwjaar1930
Dak typeMansardedak
IsolatievormenDakisolatie, Vloerisolatie, Dubbelglas
Oppervlaktes en inhoud
Perceel119 m2
Woonoppervlakte97 m2
Inhoud333 m3
Buitenruimtes gebouwgebonden of vrijstaand0 m2
Tuinoppervlakte67 m2
Indeling
Aantal kamers3
Aantal slaapkamers2
Locatie
LiggingAan rustige weg, In woonwijk
Tuin
TypeAchtertuin
StaatVerzorgd
LiggingWest
AchteromJa
Uitrusting
Soorten warm waterCV ketel
Parkeer faciliteitenOpenbaar parkeren
Virtuele tour
Ik ben Roan Mulderij, NVM Makelaar bij Brantjes Wormerland. Het plannen van een bezichtiging is de eerste stap in de zoektocht naar jouw droomhuis. Ik kijk ernaar uit je binnenkort te ontmoeten en je te helpen bij het vinden van jouw nieuwe thuis!

Plattegronden

Verken de locatie Celebesstraat 70
Ik ben Roan Mulderij, NVM Makelaar bij Brantjes Wormerland. Het plannen van een bezichtiging is de eerste stap in de zoektocht naar jouw droomhuis. Ik kijk ernaar uit je binnenkort te ontmoeten en je te helpen bij het vinden van jouw nieuwe thuis!