Ga naar content

Arendsweg 61B

  • 93 m2 woonoppervlakte
  • 2 slaapkamers
  • Bouwjaar 1918

TE HUUR: Ruim appartement in een monumentale kerk in Beverwijk

Per 1 november 2025 komt er een uniek appartement in de Goede Raad Kerk van Beverwijk beschikbaar. Dankzij de monumentale status van het pand zijn tal van authentieke details behouden gebleven, zoals het hergebruik van oude deuren en kasten. Niet alleen wordt er aandacht besteed aan de authentieke elementen, maar ook aan de stijlvolle afwerking van het gebouw. Zowel de keuken als het sanitair zijn in een bijpassende stijl afgewerkt.

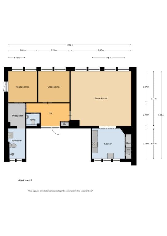
Het appartement bevindt zich op de eerste etage en is bereikbaar via een trap. Bij binnenkomst in het appartement kom je in een ruime hal, waaruit alle vertrekken toegankelijk zijn. Aan de rechterzijde bevindt zich een zeer ruime woonkamer met open keuken. Grote raampartijen zorgen voor volop daglicht. De open keuken is uitgerust met diverse inbouwapparatuur, extra opbergruimte en een aansluiting voor de wasmachine.

Vanuit de hal bereik je de twee naast elkaar gelegen slaapkamers. Vanuit één van deze slaapkamers is er directe toegang tot het terras, waar je heerlijk van de buitenlucht kunt genieten. De ruime badkamer is uitgerust met een inloopdouche, wastafel en toilet, en tevens is er een tweede toilet aanwezig in de hal.

Voor wat betreft parkeren biedt de voorzijde van de kerk voldoende parkeergelegenheid in de omgeving, al is er geen privéparkeerplek. Daarnaast is er een gezamenlijke fietsenstalling beschikbaar.

Ben je enthousiast geworden en wil je een bezichtiging inplannen? Neem dan direct contact op met ons kantoor!

Huurcondities:
– Huurprijs exclusief servicekosten van € 55,- per maand;
– Huurprijs exclusief gas, elektra, water, internet en televisie;
– Waarborgsom: 2 maanden huur;
– Huurtermijn: minimaal 24 maanden;
– Inkomenseis: bruto inkomen gelijk aan 3,5 keer de maandhuur;
– Onder voorbehoud van gunning door de verhuurder;
– Onder voorbehoud van een positieve uitkomst van de screening van inkomensgegevens en legitimatie van de huurder;
– Huisdieren in overleg toegestaan;
– Roken in de woning is niet toegestaan.

Alles over deze woning
Overdracht
Prijs€ 1.671 p/m
StatusOnder optie
AanvaardingPer datum
Aangeboden sinds15 oktober 2025
Bouw
Type objectAppartement
Bouwjaar1918
SoortPortiekflat
Woonlaag1
Dak typeSamengesteld dak
IsolatievormenDakisolatie, Muurisolatie, Vloerisolatie, Dubbelglas
Oppervlaktes en inhoud
Woonoppervlakte93 m2
Inhoud241 m3
Buitenruimtes gebouwgebonden of vrijstaand10 m2
Indeling
Aantal kamers3
Aantal slaapkamers2
Locatie
LiggingIn centrum, In woonwijk
Tuin
AchteromNee
Uitrusting
Soorten warm waterCV ketel
Parkeer faciliteitenOpenbaar parkeren, Op eigen terrein
Ik ben Danilla Prigge, Verhuurmakelaar bij Brantjes Beverwijk. Het plannen van een bezichtiging is de eerste stap in de zoektocht naar jouw droomhuis. Ik kijk ernaar uit je binnenkort te ontmoeten en je te helpen bij het vinden van jouw nieuwe thuis!
Verken de locatie Arendsweg 61B
Ik ben Danilla Prigge, Verhuurmakelaar bij Brantjes Beverwijk. Het plannen van een bezichtiging is de eerste stap in de zoektocht naar jouw droomhuis. Ik kijk ernaar uit je binnenkort te ontmoeten en je te helpen bij het vinden van jouw nieuwe thuis!