HEUL 5
Woontype HEUL – bouwnummer 5
Twee-onder-een-kap-woning geschakeld via de aangebouwde berging/garage. Mogelijkheid tot 5 slaapkamers of 4 slaapkamer en 2 badkamers.
Woonoppervlakte: ca. 137 m2 en met uitbreidingsopties te vergroten tot ca. 170 m2.
Perceeloppervlakten: ca. 225 m2 eigen grond
Koop-/aanneemsom: € 900.000,– v.o.n.
Tuinligging: zuidwest
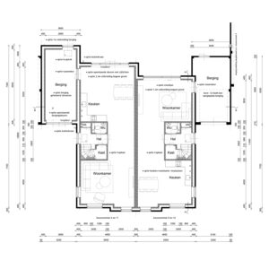
Deze heerlijke half vrijstaande woning is een echte gezinswoning. Ietsje groter dan het type Haal. Ook deze woning heeft standaard maar liefst drie volwaardige slaapkamers en een badkamer. Maar laten we met de tour beneden starten. Je komt de woning aan de zijkant binnen in een heerlijke ruime hal. In de hal zit het gastentoilet en de trap naar de verdieping. Onder de trap kun je de garderobe kwijt.
In de living heb je vanuit het woongedeelte zicht op het gezellige nieuwe straatje. Het keuken gedeelte is tuingericht
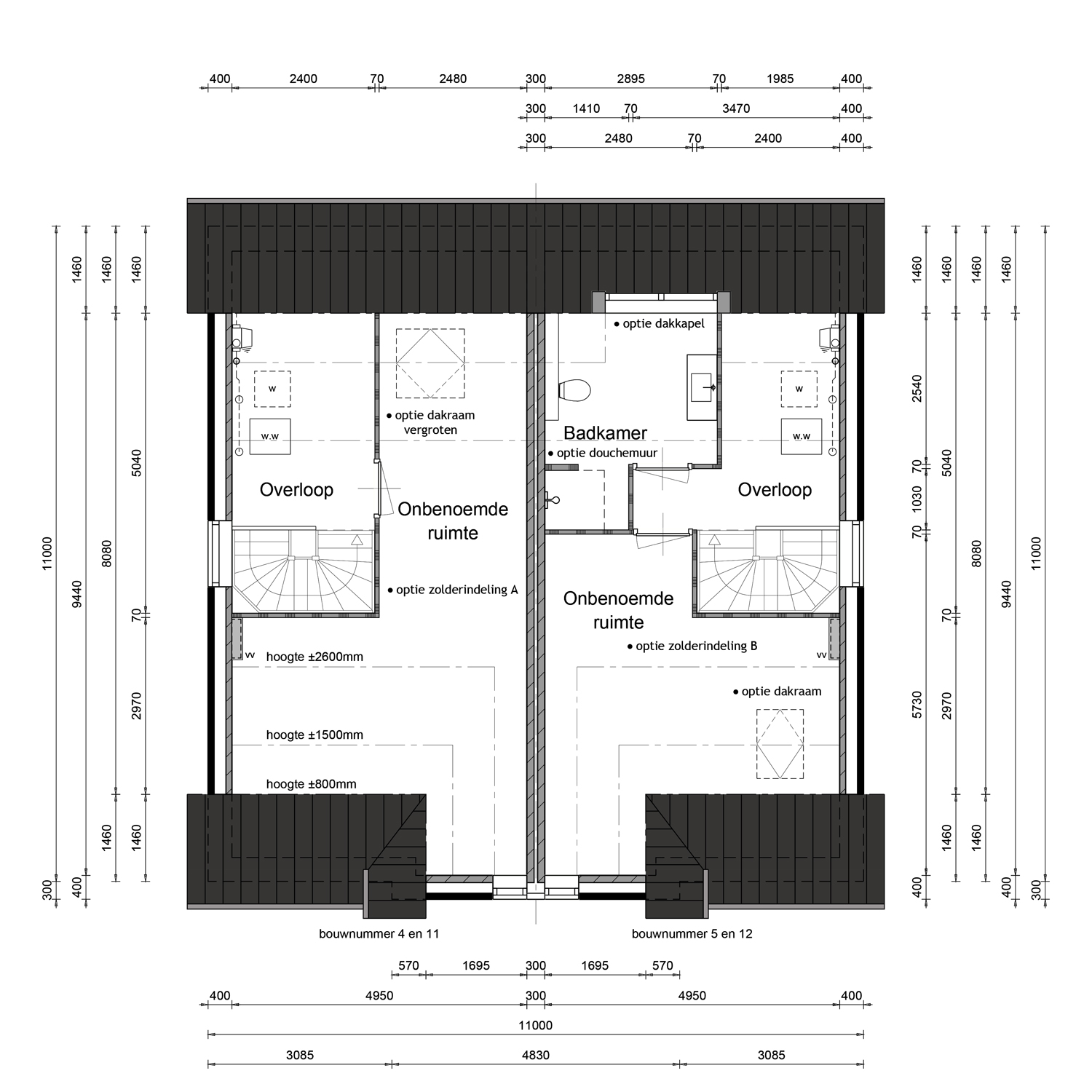
De garage is lekker ruim en geschikt om je auto te parkeren. Terug naar de woning en naar boven … De verdieping heeft een ruime badkamer, 3 slaapkamers en een vaste trap brengt je naar de tweede verdieping. Hier vind je de warmtepomp en de aansluitmogelijkheden voor wasmachine en wasdroger. Deze ruimte vraagt naar jouw visie! Klik naar de optie pagina van Heul, maar ook bij Haal voor inspiratie
Standaard heeft deze woning het A+++ label. Een Warmtepomp zorgt voor warm tapwater, verwarming en zelfs koeling in de zomer. Het hemelwater dat op je dak valt wordt niet alleen opgevangen maar duurzaam verwerkt. Parkeren doe je op je eigen erf.
Dit woningtype vind je op de kavels 4, 5 , 11 en 12.
Duurzaamheid
De woningen in Jollenmakershof zijn met het op één na hoogste A+++ label ontzettend duurzaam! Maar wist je dat naast het beperken van uitstoot, duurzaamheid ook voor extra comfort en kwaliteit zorgt?
Daar komt nog bij dat dit energielabel voor korting op de hypotheekrente zorgt!
Interesse? Schrijf je in op de projectwebsite van Jollenmakershof.nl
Tevens vind je daar alle belangrijke verkoopdocumentatie terug.
| Overdracht | |
|---|---|
| Prijs | € 900.000 v.o.n. |
| Status | Verkocht |
| Bouw | |
|---|---|
| Type object | Woonhuis |
| Soort | Eengezinswoning |
| Type | Geschakelde twee onder één kapwoning |
| Bouwjaar | 2025 |
| Dak type | Zadeldak |
| Isolatievormen | Volledig geïsoleerd |
| Oppervlaktes en inhoud | |
|---|---|
| Perceeloppervlakte | 225 m2 |
| Woonoppervlakte | 137 m2 |
| Inhoud | 525 m3 |
| Indeling | |
|---|---|
| Verdiepingen | 3 |
| Aantal kamers | 5 |
| Aantal slaapkamers | 3 |
| Locatie | |
|---|---|
| Ligging | Aan rustige weg, In woonwijk |
| Tuin | |
|---|---|
| Tuintypen | Achtertuin, Voortuin, Zijtuin |
| Totale oppervlakte | 0 m2 |
| Hoofdtuin | Achtertuin |
| Breedte | 650 m |
| Lengte | 1.100 m |
| Oppervlakte | 72 m2 |
| Ligging hoofdtuin | Zuidwest |
| Achterom | Nee |
| Energieverbruik | |
|---|---|
| Energielabel | A+++ |
| Uitrusting | |
|---|---|
| Soorten warm water | Elektrische boiler eigendom |
| Parkeergelegenheid | |
|---|---|
| Parkeerfaciliteiten | Op eigen terrein |
| Garage | Geen garage |