Ga naar content

Vissershavenstraat 62

  • 240 m2 bedrijfshal
  • Hoofdfunctie Bedrijfsruimte

Te huur
Bedrijfsruimte met kantoor-/opslag-/magazijnruimte op de 1e verdieping op goed bereikbare plek in het havengebied van IJmuiden.

Locatie en bereikbaarheid
Gelegen op goed bereikbaar bedrijventerrein in het Havengebied van IJmuiden, nabij onder andere de visafslag en de DFDS-ferry. Aansluitingen op de A9 en A22 op korte afstand.

Oppervlakte
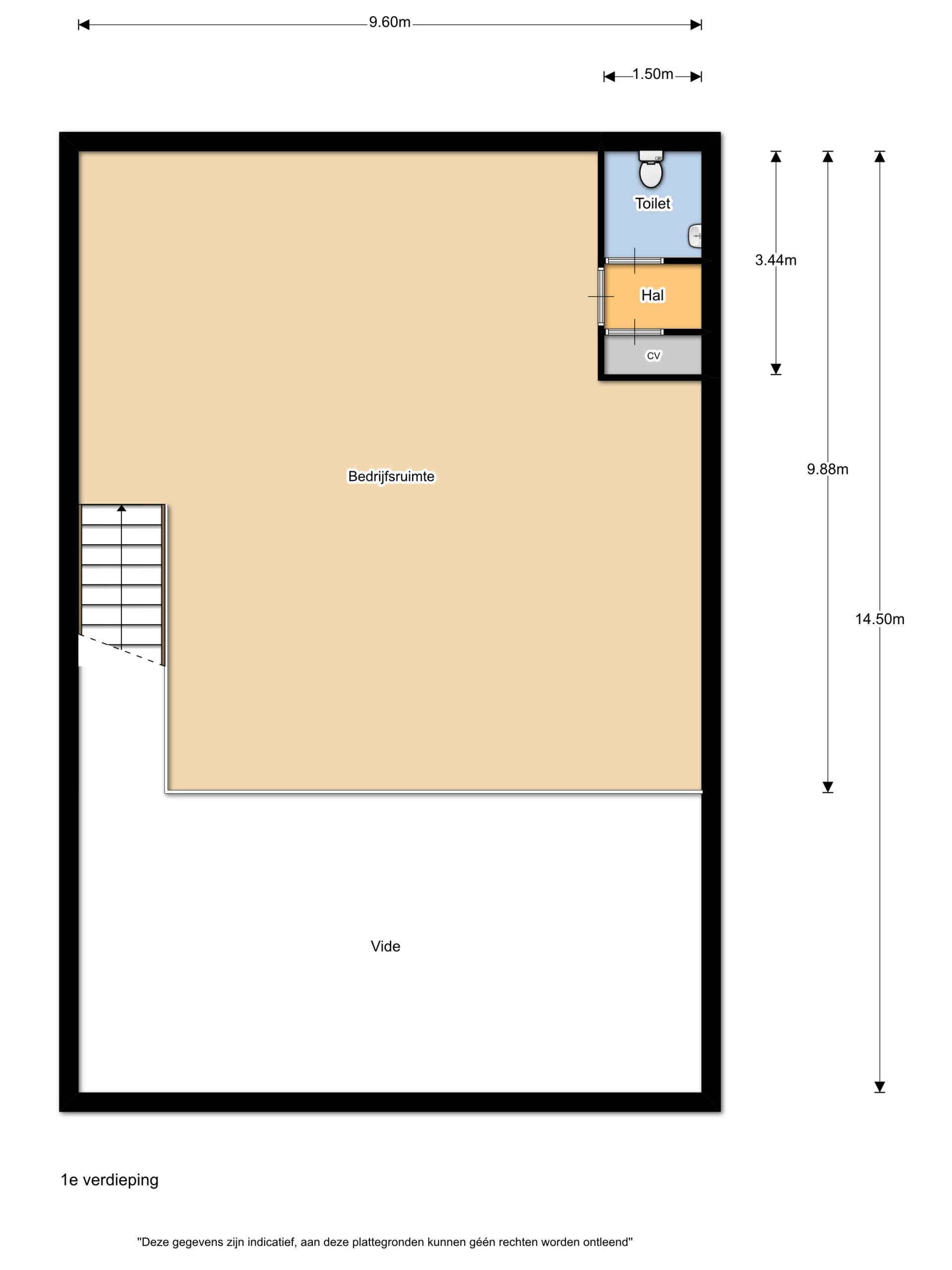
– circa 140 m² op de begane grond.
– circa 100 m² op de 1e verdieping.

Indeling
begane grond: entree, loopdeuren en overheaddeur, bedrijfsruimte.
1e verdieping: kantoor-/opslag-/magazijnruimte met toilet.

Voorzieningen
– toilet
– heater
– eigen meters
– overheaddeur
– maximale vloerbelasting: bgg 1000 kg/m² – verdieping 500 kg/m².

Parkeren
Voldoende parkeerplaatsen in de directe omgeving.

Bestemming
Bestemmingsplan Havengebied IJmuiden, bestemming Gemengd-1. Bij twijfel over het toestaan van uw bedrijfsvoering adviseren wij u zelf contact op te nemen met de Gemeente Velsen.

Oplevering
In huidige staat. Verhuur geschiedt op casco basis.

Huurprijs
€ 1.950,– per maand excl. BTW.

Servicekosten
n.v.t.

BTW
De huur is te vermeerderen met BTW. Indien huurder geen BTW-belaste prestaties verricht, kan verhuurder een hogere huurprijs in rekening brengen.

Nutsbedrijven
Huurder wordt eigen contractant bij de nutsbedrijven.

Huurbetaling
Per maand bij vooruitbetaling.

Huurtermijn
In overleg.

Huurovereenkomst
Conform het standaardmodel van de Raad van Onroerende Zaken (ROZ) met algemene bepalingen en bijzondere bepalingen vanuit verhuurder.

Huurprijsaanpassing
Jaarlijks op basis van het indexcijfer volgens consumentenprijsindex (CPI) reeks Alle Huishoudens (2006 = 100), gepubliceerd door het Centraal Bureau voor Statistiek (CBS).

Zekerheidsstelling
Een waarborgsom of bankgarantie ter grootte van drie maanden huur en servicekosten te vermeerderen met BTW.

Aanvaarding
In overleg.

Voorbehoud
Goedkeuring eigenaar.

Courtage
Brantjes Bedrijfsmakelaars treedt op voor de verhurende partij. Als huurder bent u Brantjes Bedrijfsmakelaars geen courtage of kosten verschuldigd.

Voorwaarden
Alle door Brantjes Bedrijfsmakelaars en de verhuurder verstrekte informatie moet uitsluitend gezien worden als een uitnodiging tot nader overleg c.q. tot het uitbrengen van een bod. Hoewel gestreefd is naar een zo zorgvuldig mogelijke weergave van de beschikbare gegevens, moet er van worden uitgegaan dat bovenstaande slechts indicatief is. De gegevens (bedragen, jaartallen, omschrijvingen, etc.) kunnen zijn verkregen door mondelinge overdracht. Een kandidaat huurder heeft zijn eigen onderzoeksplicht naar alle zaken die voor hem van belang zijn. Onze opdrachtgever stelt uitdrukkelijk dat een overeenkomst niet eerder tot stand komt dan nadat niet alleen over de hoofdzaken maar ook over de details (zoals oplevering etc.) overeenstemming is bereikt.

Kenmerken
Overdracht
Prijs€ 1.950 p/m
Aangeboden sinds18 februari 2026
AanvaardingIn overleg
Bouw
HoofdfunctieBedrijfsruimte
Soort bouwBestaande bouw
Oppervlakten
Bedrijfsruimte bedrijfshal240 m2

Plattegronden

Verken de locatie Vissershavenstraat 62
Ik ben Jan-Peter Brantjes, NVM Register Makelaar/Directeur bij Brantjes Heemskerk.