Ga naar content

Gedempte Oude Gracht 74

  • Hoofdfunctie Winkelruimte

Te koop
Gedempte Oude Gracht 74, 74 A t/m 74C
In de historische binnenstad van Haarlem gelegen karakteristiek winkelpand, bestaande uit een begane grond, kelder, 2 verdiepingen en een zolder. Het betreft een Rijksmonument (nr. 19140) en onderdeel van een beschermd stadsgezicht. Door de hoge raampartijen is het een heel licht en sfeervol pand met diverse stijlelementen.

Er is een verleende omgevingsvergunning beschikbaar voor 3 appartementen op de verdiepingen (betreft de opvolger van de daarvoor verleende omgevingsvergunning voor 4 appartementen). Voor meer informatie meldt u zich aan via Vendr.nl en verkrijg toegang tot de dataroom.

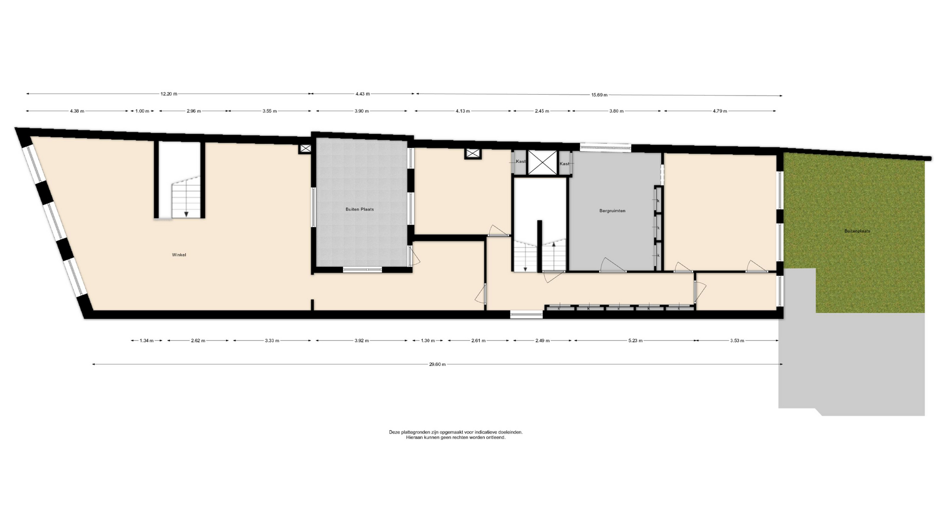
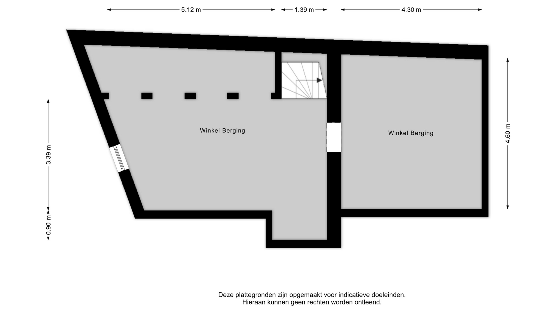
Oppervlakte
– ca. 67 m2 BVO kelder;
– ca. 277 m2 BVO b.g.;
– ca. 10 m2 BVO tussenverdieping;
– ca. 245 m2 BVO 1e verdieping;
– ca. 193 m2 BVO 2e verdieping;
– ca. 32 m2 BVO zolder;
– ca. 824 m2 BVO totaal.

Realisatie 3 appartementen:
Gebruiksoppervlakte wonen (GBO) ca. 329 m2.
– appartement 1 ca. 149.8 m2;
– appartement 2 ca. 78.8 m2;
– appartement 3 ca. 99.6 m2.

– o.b.v. NEN 2580 meting. Rapport is beschikbaar.

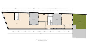
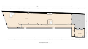
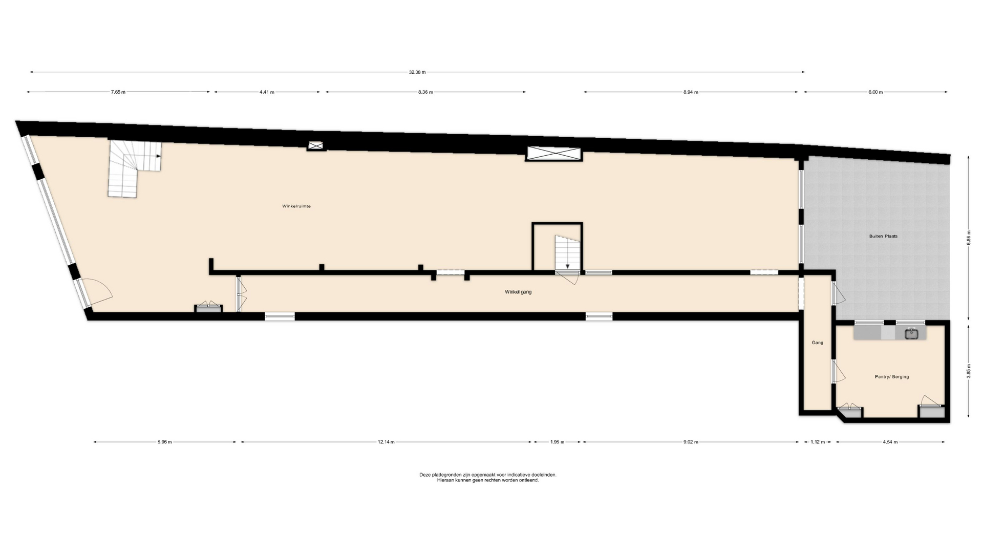
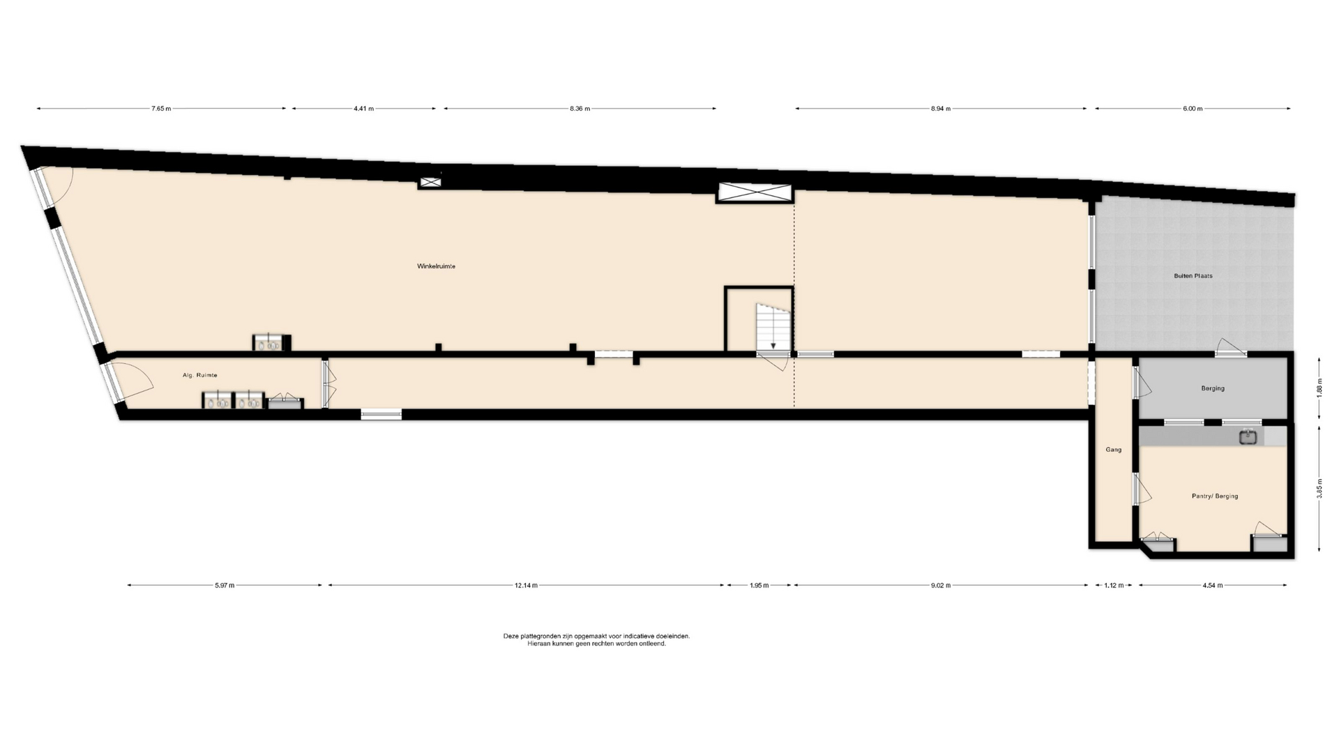
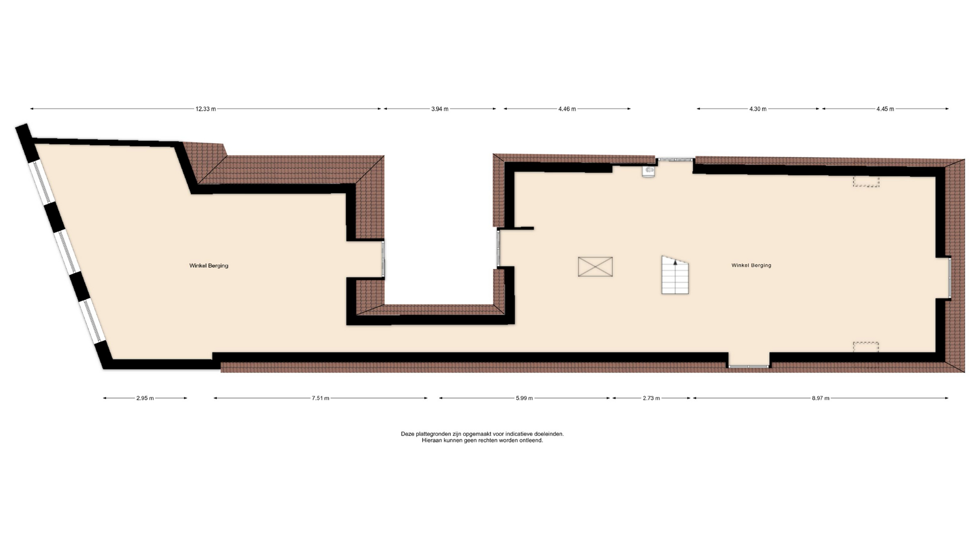
Indeling
Conform de opgestelde plattegronden.

Locatie en bereikbaarheid
Het object is gelegen op een optimale locatie in het bruisende centrum van Haarlem. De straat staat bekend om zijn diverse winkels, gezellige cafés en restaurants, derhalve een aantrekkelijke plek voor iedereen. Uitstekend bereikbaar per auto, fiets en openbaar vervoer. Verschillende buslijnen, waaronder de Zuid-Tangent hebben een halte op de Gedempte Oude Gracht.

Opleveringsniveau
Verkoop geschiedt in de huidige staat.

Parkeren
Betaald parkeren. Parkeergarages Raaks en de Kamp zijn op loopafstand gelegen.

Bestemming
Van toepassing zijn de tijdelijke delen omgevingsplan ‘Oude Stad’ en ‘Parapluplan behoud omgevingskwaliteiten Haarlem’.

‘Oude Stad’; de bestemming ‘Centrum – 2’ (artikel 5) en de dubbelbestemmingen ‘Waarde – Archeologie 1b’ (artikel 21) en ‘Waarde – Beschermd stadsgezicht’ (artikel 22) met de bouwaanduiding ‘specifieke bouwaanduiding – orde 1’ en maatvoering ‘Goothoogte (m): 12’.

‘Parapluplan behoud omgevingskwaliteiten Haarlem’; de dubbelbestemming ‘Waarde – Archeologie 1b’ (artikel 29) en de gebiedsaanduidingen ‘overige zone – herziening planregels 6’ (artikel 37.8) en ‘overige zone – herziening planregels 13’ (37.15).

Bij twijfel over het toestaan van uw bedrijfsvoering adviseren wij u zelf contact op te nemen met de gemeente Haarlem en/of het omgevingsloket (omgevingswet.overheid.nl) te raadplegen.

Vraagprijs
€ 2.100.000,– k.k.

Nutsbedrijven
Koper dient zelf rechtstreeks met desbetreffende (energie) leveranciers overeenkomsten af te sluiten.

Erfdienstbaarheden en bijzondere bepalingen
Zoals vermeld in de akte van levering en in de op te stellen koopakte.

Verkoop
Deze verkoop vindt plaats op basis van ‘as is, where is’ als basis waarop koper koopt en het feit dat verkoper ten aanzien van het perceel geen enkele garantie kan geven. De koper zal de feitelijke, juridische, milieukundige, technische en fiscale situatie accepteren op het moment van leveren en daarmee alle bekende en onbekende, zichtbare en onzichtbare, lasten, beperkingen en verplichtingen.

Bodeminformatie
Verkoper kan niet instaan voor de kwaliteit van de bodem en/of grondwater en koper vrijwaart verkoper voor alle aansprakelijkheid die uit eventuele verontreiniging van bodem, grondwater e.d. kan voortvloeien.

Asbest
Koper vrijwaart verkoper voor elke aansprakelijkheid inzake de (eventuele) aanwezigheid van asbest en/of asbesthoudende stoffen in de onroerende zaak nu in en de toekomst. Asbestinventarisatierapport is aanwezig.

Ouderdomsclausule
In de koopakte zal een ouderdomsclausule worden opgenomen, inhoudende dat koper verklaart ermee bekend te zijn, dat de onroerende zaak niet nieuw is en dat de koper alle risico’s aanvaardt ten aanzien van de gehele bouwkundige staat en dat de koopsom daarop is afgestemd. Verkoper staat niet in voor de vloeren, muren, dak, leidingen, installaties en de afwezigheid van doorslaand of optrekkend vocht en ongedierte.

Koopovereenkomst
Conform het model van de NVM Business.

Zekerheidsstelling
10% van de koopsom te stellen binnen 3 weken na ondertekening koopakte.

Energielabel
Van het aangeboden object is nog geen energielabel beschikbaar.

Aanvaarding
Datum eigendomsoverdracht in overleg.

Courtage
Brantjes Bedrijfsmakelaars treedt op voor de verkopende partij. Als koper bent u Brantjes Bedrijfsmakelaars geen courtage of kosten verschuldigd.

Voorbehoud
Verkoper behoudt zich uitdrukkelijk het recht voor het object te gunnen aan de gegadigde van zijn keuze.

Voorwaarden
Alle door Brantjes Bedrijfsmakelaars en de verkoper verstrekte informatie moet uitsluitend gezien worden als een uitnodiging tot nader overleg c.q. tot het uitbrengen van een voorstel. Hoewel gestreefd is naar een zo zorgvuldig mogelijke weergave van de beschikbare gegevens, moet er van worden uitgegaan dat bovenstaande slechts indicatief is. De gegevens (bedragen, jaartallen, omschrijvingen, etc.) kunnen zijn verkregen door mondelinge overdracht waardoor wij niet instaan voor de volledigheid hiervan. Een kandidaat-koper heeft zijn eigen onderzoeksplicht naar alle zaken die voor hem van belang zijn. Onze opdrachtgever stelt uitdrukkelijk dat een overeenkomst niet eerder tot stand komt dan nadat niet alleen over de hoofdzaken maar ook over de details (zoals oplevering etc.) overeenstemming is bereikt. Door Brantjes Bedrijfsmakelaars wordt geen aansprakelijkheid aanvaard, behoudens voor zover de door ons verplicht afgesloten beroepsaansprakelijkheidsverzekering in voorkomend geval aanspraak op een uitkering geeft.

Kenmerken
Overdracht
Prijs€ 2.100.000 k.k.
Aangeboden sinds29 april 2025
AanvaardingIn overleg
Bouw
HoofdfunctieWinkelruimte
Soort bouwBestaande bouw
Bouw periodeTot 1906
Oppervlakten
Winkelruimte824 m2
Verken de locatie Gedempte Oude Gracht 74
Ik ben Jan-Peter Brantjes, NVM Register Makelaar/Directeur bij Brantjes Heemskerk.