Ga naar content

Breestraat 15

  • Hoofdfunctie Winkelruimte

Te huur
Winkelruimte.

Locatie en bereikbaarheid
Gelegen aan de hoofdwinkelstraat van Beverwijk. Uitstekend bereikbaar met auto, fiets en op steenworp afstand van het NS-station, bushaltes en nabij de afrit A-9/A-22.

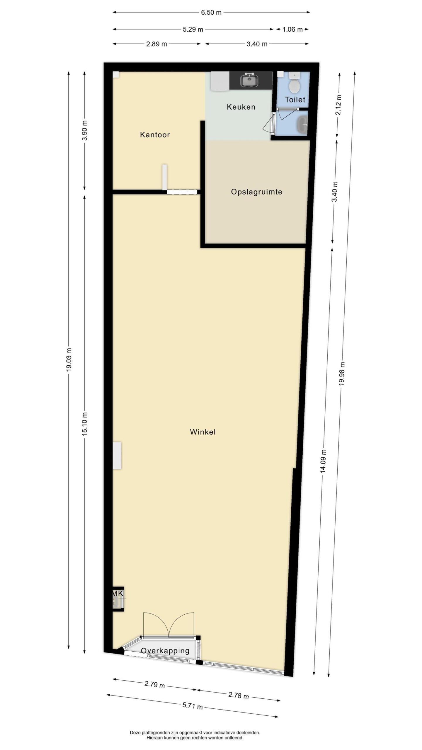
Oppervlakte
Ca. 125 m² b.v.o.

Indeling
Zie plattegrond.

Parkeren
Ruim voldoende parkeergelegenheid in de directe omgeving aan het Slangenwegje, Meerplein en Beverplein.

Bestemming
Bestemmingsplan Breestraat e.o., bestemming Centrumdoeleinden-1. Bij twijfel over het toestaan van uw bedrijfsvoering adviseren wij u zelf contact op te nemen met de gemeente Beverwijk.

Voorzieningen
In huidige staat. Verhuur geschiedt op casco basis.

Huurprijs
€ 2.085,— per maand excl. btw

Omzetbelasting
De huur is te vermeerderen met BTW. Indien huurder geen BTW-belaste prestaties verricht, kan verhuurder een hogere huurprijs in rekening brengen.

Servicekosten
p.m.

Nutsbedrijven
Huurder dient zelf rechtstreeks met desbetreffende (energie) leveranciers overeenkomsten af te sluiten.

Huurbetaling
Per maand bij vooruitbetaling.

Huurtermijn
5 jaar.

Huurovereenkomst
Conform het standaardmodel van de Raad van Onroerende Zaken (ROZ) met algemene bepalingen en bijzondere bepalingen vanuit verhuurder.

Indexering
Jaarlijks op basis van het indexcijfer volgens consumentenprijsindex (CPI) reeks Alle Huishoudens (2006 = 100), gepubliceerd door het Centraal Bureau voor Statistiek (CBS).

Zekerheidsstelling
Een waarborgsom of bankgarantie ter grootte van drie maanden huurverplichting te vermeerderen met BTW.

Energielabel
Van het aangeboden object is energielabel G beschikbaar.

Aanvaarding
In overleg.

Courtage
Brantjes Bedrijfsmakelaars treedt op voor de verhurende partij. Als huurder bent u Brantjes Bedrijfsmakelaars geen courtage of kosten verschuldigd.

Voorbehoud
Goedkeuring eigenaar.

Voorwaarden
Alle door Brantjes Bedrijfsmakelaars en de verhuurder verstrekte informatie moet uitsluitend gezien worden als een uitnodiging tot nader overleg c.q. tot het uitbrengen van een bod. Hoewel gestreefd is naar een zo zorgvuldig mogelijke weergave van de beschikbare gegevens, moet er van worden uitgegaan dat bovenstaande slechts indicatief is. De gegevens (bedragen, jaartallen, omschrijvingen, etc.) kunnen zijn verkregen door mondelinge overdracht. Een kandidaat-huurder heeft zijn eigen onderzoeksplicht naar alle zaken die voor hem van belang zijn. Onze opdrachtgever stelt uitdrukkelijk dat een overeenkomst niet eerder tot stand komt dan nadat niet alleen over de hoofdzaken maar ook over de details (zoals oplevering etc.) overeenstemming is bereikt.

Kenmerken
Overdracht
Prijs€ 2.085 p/m
Aangeboden sinds30 oktober 2025
AanvaardingIn overleg
Bouw
HoofdfunctieWinkelruimte
Soort bouwBestaande bouw
Oppervlakten
Winkelruimte125 m2

Plattegronden

Verken de locatie Breestraat 15
Ik ben Jan-Peter Brantjes, NVM Register Makelaar/Directeur bij Brantjes Heemskerk.