Ga naar content

Zwarte Ring 164

  • 136 m2 woonoppervlakte
  • 5 slaapkamers
  • Bouwjaar 2008
  • 131 m2 perceel

Zeer luxe en uitgebouwde gezinswoning met maar liefst vijf slaapkamers, en meer dan dat! Stijlvol vormgegeven en tot in de puntjes verzorgd. Voor wie op zoek is naar een instapklare woning, is Zwarte Ring 164 precies de juiste bestemming!

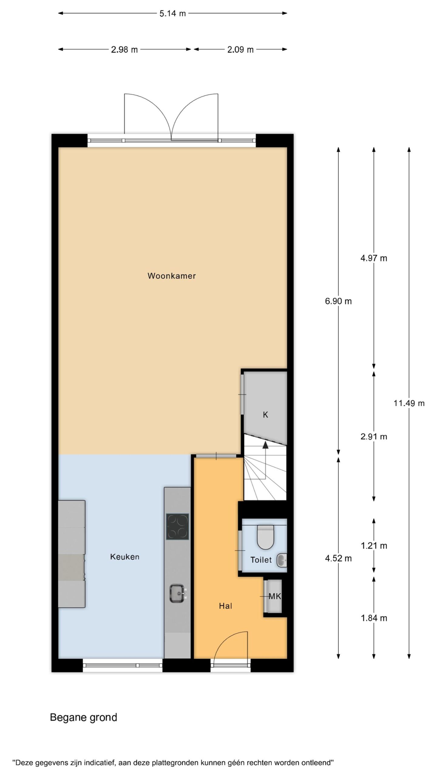
Binnen valt direct op dat in deze woning oog is besteed aan zorg en aandacht voor detail. De woonkamer is voorzien van een pvc-vloer in visgraatmotief met vloerverwarming, en de gestuukte wanden dragen bij aan het stijlvolle karakter. De in 2022 vernieuwde keuken, gelegen aan de voorzijde, biedt een moderne en strakke uitstraling. Hier vind je royaal kastruimte, voldoende aanrechtblad en een inductieplaat inclusief ingebouwde afzuiging, waardoor de keuken volledig is uitgerust.

Al vanaf de start is de woonkamer met aanbouw gerealiseerd, zodat je geniet van een ruime eetgedeelte én een comfortabele zithoek richting de tuin. De buitenruimte, die perfect in het zuiden ligt voor maximale zonuren, is via openslaande buitendeuren te bereiken. Mocht je even wat schaduw zoeken, dan regelt de elektrische zonnewering dit moeiteloos. Bovendien biedt de achtertuin volop ruimte voor groen en terrasmogelijkheden, en beschikt deze over een eigen achterom en een vrijstaande houten berging.

Op de eerste verdieping gaat de verwoording van uniformiteit door: hier zijn eveneens stijlvol gekozen materialen en afwerkingen terug te vinden. Deze etage herbergt drie slaapkamers en een splinternieuwe badkamer, geplaatst begin 2025. De badkamer is uitgerust met een inloopregendouche, inbouwkranen, toilet en wastafel met meubel.

De laatste twee slaapkamers bevinden zich op de tweede verdieping. Deze etage, verrijkt met een dakkapel uit 2016 voor extra ruimte, beschikt tevens over een aparte berging die geschikt is voor opslag en het huiselijk installeren van wasmachine en droger.

Kortom, deze woning definieert instapklaar wonen. Aan elk detail is gedacht en wij laten dit graag aan je zien. Beleef het zelf en bel Brantjes voor een bezichtiging!

– Bouwjaar: 2008
– Woonoppervlakte: 136 m²
– Perceeloppervlakte: 131 m² eigen grond
– Energielabel: A

De woning ligt op 5 minuten loopafstand van winkelcentrum ‘De Saen’, een groot winkelcentrum met een Albert Heijn, Vomar, Hema, apotheek en diverse specialiteiten en delicatessen winkels. Op loopafstand is het NS-station Krommenie-Assendelft gelegen waardoor Amsterdam Centraal met ca. 20 treinminuten te bereiken is. Tevens is de ontsluiting met eigen vervoer via A8/A9/A10 richting Amsterdam, Haarlem en Alkmaar prima te noemen.

Bijzonderheden:
– In het totaal zijn er vijf slaapkamers aanwezig;
– Mechanische ventilatie is vervangen in 2024;
– CV-ketel is vernieuwd in 2022;
– Alle wanden in de woning zijn gestuukt;
– Gehele benedenverdieping is voorzien van vloerverwarming (behalve toilet);
– Keuken is in 2022 vernieuwd;
– Badkamer is in 2025 vernieuwd;
– Gunstige ligging (op loopafstand van het winkelcentrum van Assendelft en op 2 minuten fietsafstand van NS-station Krommenie-Assendelft);
– Oplevering in overleg.

Interesse in dit huis? Schakel direct uw eigen NVM-aankoopmakelaar in. Uw NVM-aankoopmakelaar komt op voor úw belang en bespaart u tijd, geld en zorgen. Adressen van collega NVM-aankoopmakelaars vindt u op Funda.

Alles over deze woning
Overdracht
Prijs€ 559.000 k.k.
StatusVerkocht onder voorbehoud
AanvaardingIn overleg
Aangeboden sinds15 oktober 2025
Bouw
Type objectWoonhuis
SoortEengezinswoning
TypeTussenwoning
Bouwjaar2008
Dak typeSamengesteld dak
IsolatievormenDakisolatie, Muurisolatie, Vloerisolatie, Dubbelglas, Volledig geïsoleerd
Oppervlaktes en inhoud
Perceel131 m2
Woonoppervlakte136 m2
Inhoud488 m3
Buitenruimtes gebouwgebonden of vrijstaand0 m2
Indeling
Aantal kamers6
Aantal slaapkamers5
Locatie
LiggingAan rustige weg, In woonwijk
Tuin
TypeAchtertuin
StaatFraai aangelegd
LiggingZuid
AchteromJa
Uitrusting
Soorten warm waterCV ketel
Parkeer faciliteitenOpenbaar parkeren
Virtuele tour
Ik ben Corno Pronk, NVM Register Makelaar-Taxateur / Vestigingsmanager bij Brantjes Assendelft. Het plannen van een bezichtiging is de eerste stap in de zoektocht naar jouw droomhuis. Ik kijk ernaar uit je binnenkort te ontmoeten en je te helpen bij het vinden van jouw nieuwe thuis!

Plattegronden

Verken de locatie Zwarte Ring 164
Ik ben Corno Pronk, NVM Register Makelaar-Taxateur / Vestigingsmanager bij Brantjes Assendelft. Het plannen van een bezichtiging is de eerste stap in de zoektocht naar jouw droomhuis. Ik kijk ernaar uit je binnenkort te ontmoeten en je te helpen bij het vinden van jouw nieuwe thuis!