Ga naar content

Zocalo 13

  • 121 m2 woonoppervlakte
  • 3 slaapkamers
  • Bouwjaar 2000
  • 312 m2 perceel

Ben je op zoek naar een woning die net even anders is? Zoek je de ruimte van een eengezinswoning, maar dan in een bijzonder jasje? Welkom aan de Zocalo 13: een uitstekend onderhouden, geschakelde patiowoning op een royaal perceel van 312 m² eigen grond. Een absolute buitenkans voor wie houdt van comfort en privacy!

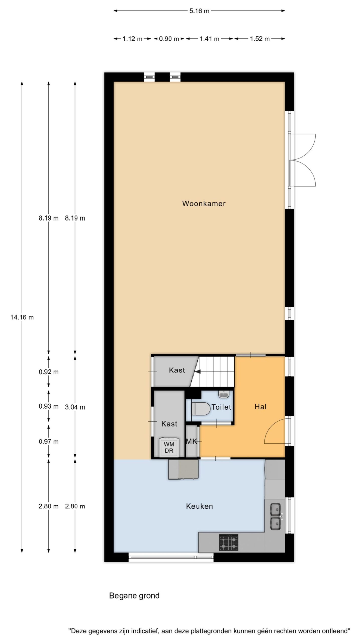
Bij binnenkomst valt direct op hoe licht de woning is. De vele raampartijen in de woonkamer, het kloppende hart van het huis, zorgen voor een heerlijke lichtinval en een ruimtelijk gevoel. De living biedt alle plek voor een gezellige zithoek en een royale eettafel. Via de openslaande deuren loop je zo de tuin in, waardoor binnen en buiten naadloos in elkaar overgaan.

De keuken is functioneel ingericht en van alle gemakken voorzien. Je vindt hier diverse inbouwapparatuur, waaronder een kookplaat, afzuigkap, oven, magnetron, vaatwasser en een koel-vriescombinatie.

Dankzij de slimme patio-opzet geniet je hier van ongekende rust. De zonnige zijtuin van circa 75 m² is een beschutte buitenplaats waar je in alle privacy van de zon kunt genieten. Op het eigen terrein staat bovendien een vrijstaande houten berging, ideaal voor het stallen van de fietsen en tuingereedschap. Parkeren kan direct voor de deur op de openbare parkeerplaats.

Op de eerste verdieping bevinden zich drie volwaardige slaapkamers. Of je nu ruimte zoekt voor een gezin, een rustige thuiswerkplek of een comfortabele logeerkamer: hier kan het allemaal. Daarnaast is de master zelfs voorzien van een airconditioning! De complete badkamer is netjes uitgevoerd en voorzien van een ligbad, een aparte douche, een wastafelmeubel en een tweede toilet.

De woning is gebouwd met oog voor de toekomst. Dankzij de volledige isolatie (dak, muur en vloer), HR++ beglazing en stadsverwarming woon je hier niet alleen heel comfortabel, maar profiteer je ook van een gunstig energieverbruik.

Is dit jouw nieuwe thuis? Stop met zoeken naar die standaard eengezinswoning en kies voor iets unieks. Ervaar de rust en de ruimte van Zocalo 13 zelf. Bel Brantjes Makelaars direct voor een bezichtiging!

– Bouwjaar: 2000
– Woonoppervlakte: 121 m²
– Perceeloppervlakte: 156 m² eigen grond
– Energielabel: A

De woning staat in de jonge woonwijk Saendelft-Oost. Een kindvriendelijke wijk met op loopafstand basisscholen
en op korte afstand van winkelcentrum, NS-station en sportfaciliteiten. Vanuit de wijk is er een uitstekende
aansluiting op de A8, vanwaar het 15 minuten reizen is naar Amsterdam en Purmerend.

Bijzonderheden:
– Zonnige patiowoning met veel privacy;
– Vrijstaande houten berging op eigen terrein;
– De woning is aangesloten op stadsverwarming;
– Airconditioning in de master bedroom;
– Buitenschilderwerk is in 2023 uitgevoerd;
– Rustige ligging;
– Openbare parkeergelegenheid aan voorzijde;
– Gunstig gelegen t.a.v. uitvalswegen naar A8 en A9.

Interesse in dit huis? Schakel direct uw eigen NVM-aankoopmakelaar in. Uw NVM-aankoopmakelaar komt op voor úw belang en bespaart u tijd, geld en zorgen. Adressen van collega NVM-aankoopmakelaars vindt u op Funda.

Alles over deze woning
Overdracht
Prijs€ 495.000 k.k.
StatusBeschikbaar
AanvaardingIn overleg
Aangeboden sinds12 januari 2026
Bouw
Type objectWoonhuis
SoortEengezinswoning
TypeGeschakelde woning
Bouwjaar2000
Dak typePlat dak
IsolatievormenDakisolatie, Muurisolatie, Vloerisolatie, Dubbelglas, Volledig geïsoleerd
Oppervlaktes en inhoud
Perceel312 m2
Woonoppervlakte121 m2
Inhoud421 m3
Buitenruimtes gebouwgebonden of vrijstaand0 m2
Tuinoppervlakte75 m2
Indeling
Aantal kamers4
Aantal slaapkamers3
Locatie
LiggingIn woonwijk
Tuin
TypeZijtuin
StaatFraai aangelegd
LiggingNoordoost
AchteromNee
Uitrusting
Soorten warm waterStadsverwarming
Parkeer faciliteitenOpenbaar parkeren
Virtuele tour
Ik ben Corno Pronk, NVM Register Makelaar-Taxateur / Vestigingsmanager bij Brantjes Assendelft. Het plannen van een bezichtiging is de eerste stap in de zoektocht naar jouw droomhuis. Ik kijk ernaar uit je binnenkort te ontmoeten en je te helpen bij het vinden van jouw nieuwe thuis!

Plattegronden

Verken de locatie Zocalo 13
Ik ben Corno Pronk, NVM Register Makelaar-Taxateur / Vestigingsmanager bij Brantjes Assendelft. Het plannen van een bezichtiging is de eerste stap in de zoektocht naar jouw droomhuis. Ik kijk ernaar uit je binnenkort te ontmoeten en je te helpen bij het vinden van jouw nieuwe thuis!