Ga naar content

Zandweg 96

  • 74 m2 woonoppervlakte
  • 2 slaapkamers
  • Bouwjaar 1910
  • 174 m2 perceel

Unieke kans aan de Zandweg in Wormer, volop mogelijkheden!

Aan de Zandweg in Wormer staat deze charmante twee-onder-een-kapwoning uit 1910. Een huis met karakter, een fijne ligging en vooral ruimte voor eigen ideeën. De woning is eenvoudig van uitvoering en vraagt om modernisering, maar vormt een uitstekende basis voor wie graag een woning helemaal naar eigen smaak wil verbouwen. Met het herstel van de fundering in het vooruitzicht is dit hét moment om de woning toekomstbestendig, energiezuinig en eigentijds te maken.

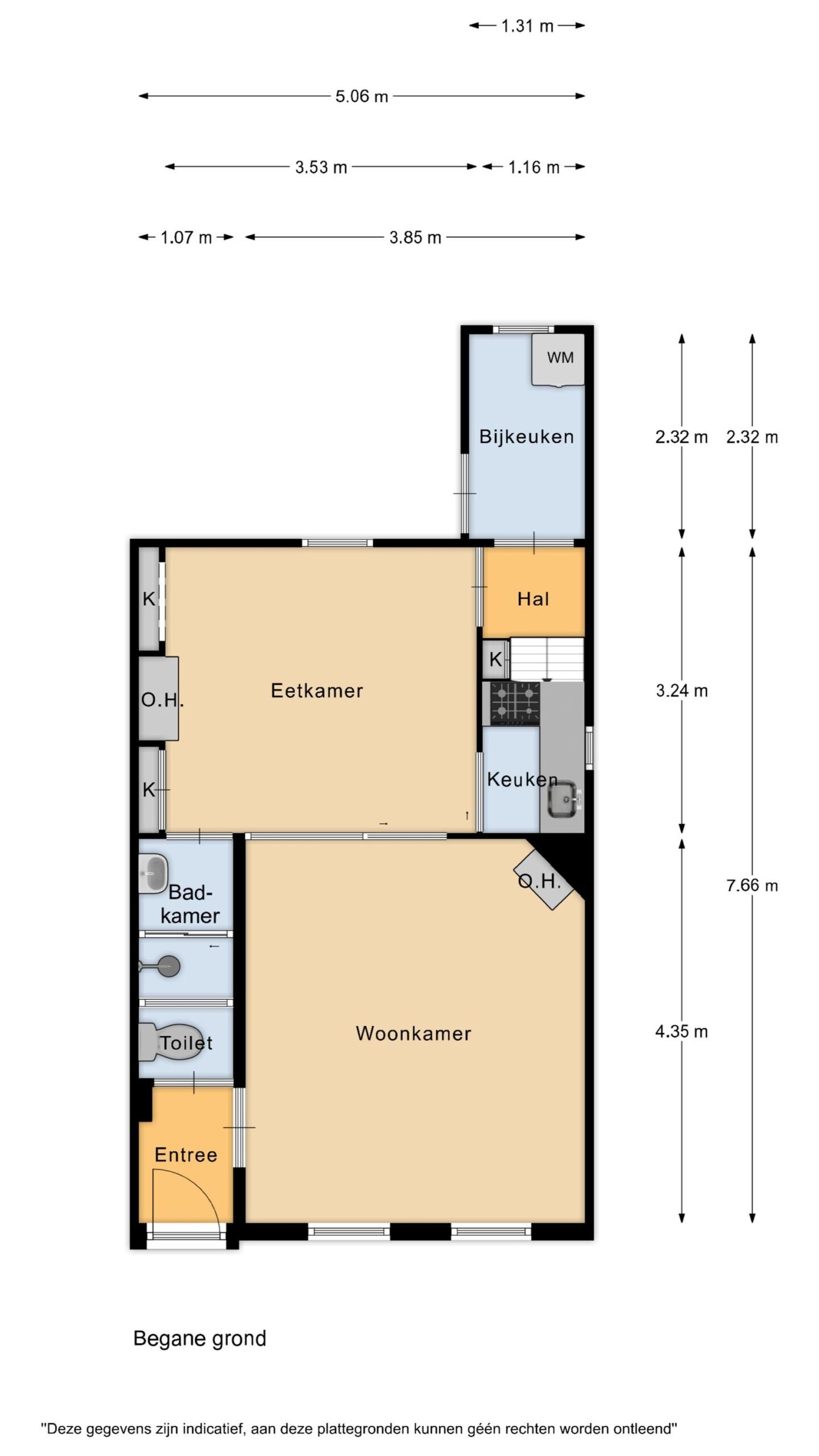
Begane grond
De entree geeft toegang tot de woonkamer aan de voorzijde. De grote ramen zorgen voor prettig daglicht en een open sfeer. Aansluitend ligt de eetkamer, een fijne ruimte die zich uitstekend leent om om te vormen tot een lichte woonkeuken met zicht op de tuin. De keuken ligt centraal in het huis, naast de eetkamer, en kan bij een verbouwing mooi bij de leefruimte worden betrokken.

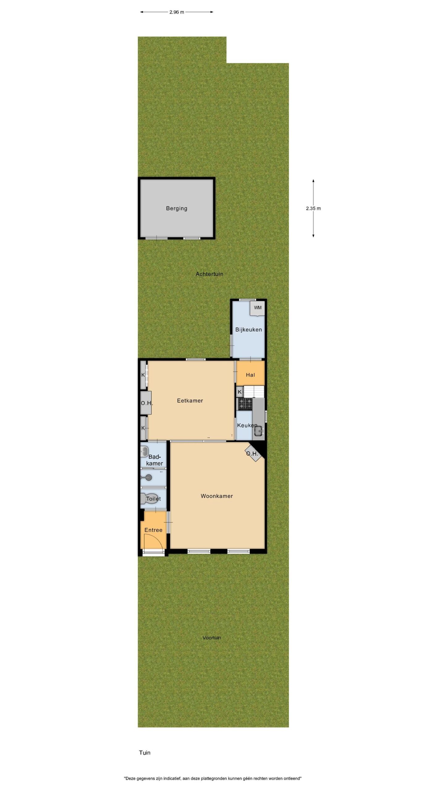
In de aanbouw aan de achterzijde bevindt zich de bijkeuken met de aansluiting voor de wasmachine, vanuit hier stap je direct de achtertuin in, een zonnige plek op het westen met volop mogelijkheden voor een terras of een groene hoek. Achterin de tuin staat een houten berging voor fietsen en tuingereedschap. Daarnaast is de badkamer ook op de begane grond te vinden.

Eerste verdieping
Op de verdieping zijn twee slaapkamers aanwezig en een overloop met opbergruimte. Hier kun je met een slimme indeling eenvoudig meer comfort of extra kamers creëren.

De woning vraagt om modernisering en verduurzaming, maar biedt daarmee juist de mogelijkheid om alles in één keer goed aan te pakken, precies zoals jij het wilt.

Bouwjaar: 1910
Perceeloppervlakte: 174 m²
Woonoppervlakte: 74 m²
Inhoud: 245 m³
Energielabel: G

Ligging:
Wormer, een van de oudste plaatsen in de Zaanstreek, een bruisend dorp met een kind- en diervriendelijke karakter. De Zandweg 96 ligt op een top locatie waar het dorpsleven en de natuur samenkomen. Het centrum, met het winkelcentrum en de gezellige vrijdagmarkt vol verse producten, is gemakkelijk te voet of per fiets bereikbaar.

Bijzonderheden:
– Veel mogelijkheden voor modernisering naar eigen smaak;
– De woning vertoont scheefstand;
– Achtertuin op het westen met houten berging;
– Vanuit de bijkeuken directe toegang tot de tuin;
– Centrale ligging nabij voorzieningen, natuur en uitvalswegen;
– Oplevering kan snel.

Interesse in dit huis? Schakel direct jouw eigen NVM-aankoopmakelaar in. Jouw NVM-aankoopmakelaar komt op voor jouw belang en bespaart je tijd, geld en zorgen. Adressen van collega NVM-aankoopmakelaars vind je op Funda.

Alles over deze woning
Overdracht
Prijs€ 250.000 k.k.
StatusBeschikbaar
AanvaardingIn overleg
Aangeboden sinds13 november 2025
Bouw
Type objectWoonhuis
SoortEengezinswoning
TypeTwee onder één kapwoning
Bouwjaar1910
Dak typeMansardedak
IsolatievormenGedeeltelijk dubbelglas
Oppervlaktes en inhoud
Perceel174 m2
Woonoppervlakte74 m2
Inhoud245 m3
Buitenruimtes gebouwgebonden of vrijstaand0 m2
Tuinoppervlakte135 m2
Indeling
Aantal kamers4
Aantal slaapkamers2
Locatie
LiggingAan drukke weg, In centrum, In woonwijk
Tuin
TypeAchtertuin
StaatNormaal
LiggingNoordwest
AchteromJa
Uitrusting
Soorten warm waterGeiser eigendom
Parkeer faciliteitenOpenbaar parkeren
Virtuele tour
Ik ben Erik Hempenius, NVM Register Makelaar-Taxateur / Regiomanager bij Brantjes Wormerland. Het plannen van een bezichtiging is de eerste stap in de zoektocht naar jouw droomhuis. Ik kijk ernaar uit je binnenkort te ontmoeten en je te helpen bij het vinden van jouw nieuwe thuis!

Plattegronden

Verken de locatie Zandweg 96
Ik ben Erik Hempenius, NVM Register Makelaar-Taxateur / Regiomanager bij Brantjes Wormerland. Het plannen van een bezichtiging is de eerste stap in de zoektocht naar jouw droomhuis. Ik kijk ernaar uit je binnenkort te ontmoeten en je te helpen bij het vinden van jouw nieuwe thuis!