Ga naar content

Wijkerstraatweg 243

  • 140 m2 woonoppervlakte
  • 4 slaapkamers
  • Bouwjaar 1936
  • 714 m2 perceel

Unieke kans in Velsen-Noord!

Vrijstaand wonen op een perceel van maar liefst 712m2 mét stenen garage én een grote aansluitende schuur welke perfect gebruikt kan worden voor een eigen bedrijf, prakrijkruimte of wellicht omgebouwd kan worden tot woonruimte voor thuiswonende kinderen of een mantelzorgwoning. De huidige eigenaren hebben hier ruim 30 jaar met enorm veel plezier gewoond maar zijn toe aan de volgende stap.
De woning, met een woonoppervlakte van maar liefst 140 m2, is altijd keurig net onderhouden en het afwerkingsniveau is hoog; kan ook niet anders met een eigen aannemersbedrijf! En dan de tuin… wauw! De foto’s spreken voor zich maar wat een kleurrijk plaatje is dit.

Op zoek naar rust en ruimte? Beginnen de groene vingers al te kriebelen? Bel dan gauw ons kantoor voor het maken van een afspraak.

De locatie is perfect. Het treinstation van Beverwijk richting de grote steden is op nog geen kilometer afstand. De uitvalswegen richting Amsterdam (20min), Haarlem (10min) en Alkmaar (15min) zijn ook snel te bereiken.

Bouwjaar: 1936
Woonoppervlakte: ca. 140 m²
Overige inpandige ruimte: 109 m²
Perceel: 712 m2
Inhoud: ca. 1038 m³

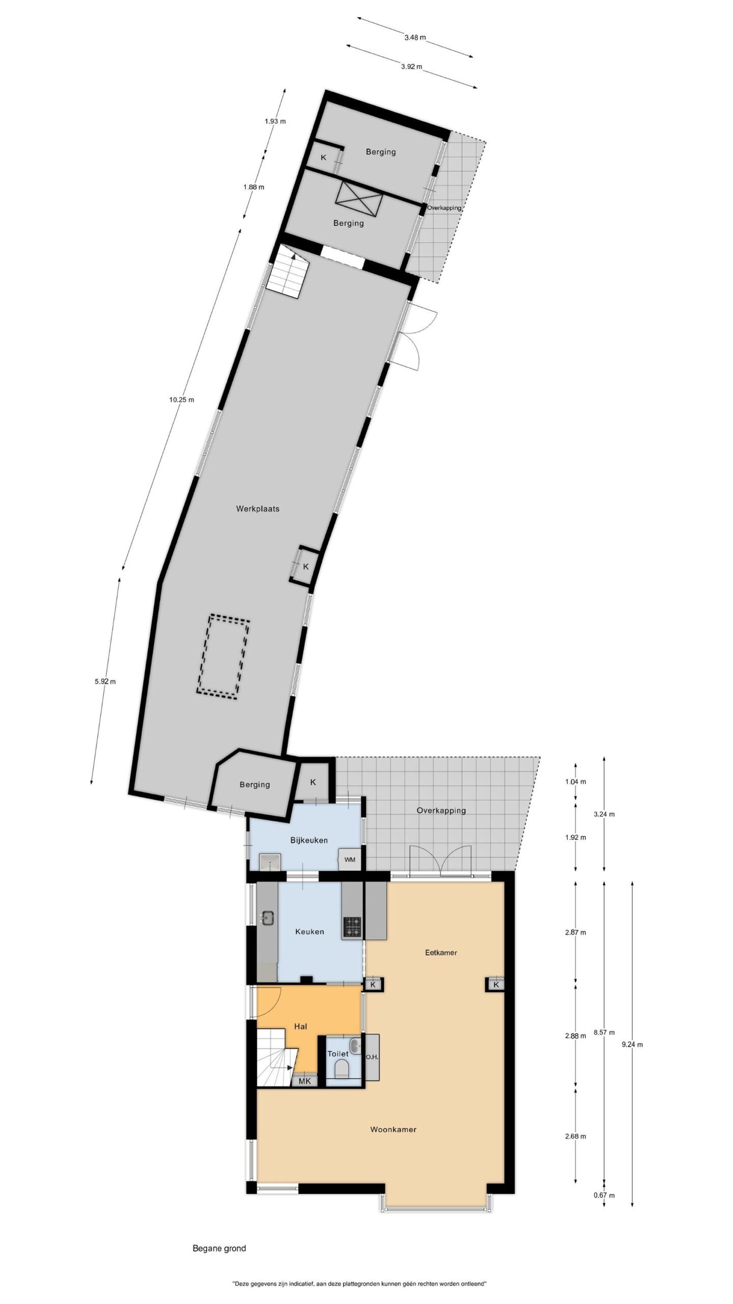
Indeling:

Wanneer je Velsen-Noord binnen komt rijden, verwacht je niet dat deze parel aan de rechterzijde van de Wijkerstraatweg verborgen zit. Parkeer de auto op eigen terrein en stap binnen in de hoge ruime hal met glas in lood ramen en toegang tot het seperate toilet onder de prestigieuze trap.
Via de hal stap je direct in de open keuken (2018) met prachtig gasfornuis van Arleston, afzuigkap, vaatwasser en voldoende opbergruimte. Ook heb je toegang tot de bijkeuken met wasmachine aansluiting. Via de open keuken stap je 2 kleine treden omhoog naar het verhoogde eetgedeelte. Altijd fijn om tijdens het koken in contact te staan met de gasten aan de eettafel. Liever ontspannen met de warmte van de houtkachel? Een niveau lager heb je een heerlijke ruime living met veel lichtinval door de grote raampartijen.

Via de openslaande deuren sta je direct onder de zelf gemaakte houten overkapping mét vaste pizza oven/BBQ. Huidig eigenaar heeft de houten overkapping zelf nagemaakt naar hun geliefde skihut waar zij graag kwamen. Leuk voor een feestje of om heerlijk in de schaduw te ontspannen en te genieten van de rustige privacy volle tuin. Want wat een prachtuitzicht heb je vanaf dit punt. De keurig verzorgde achtertuin van maar liefst 17 meter diep is een plaatje om te zien. Wat heeft deze tuin niet? Beschutting door middel van de groene wand aan bomen en struiken, een stuk gras om de kinderen te laten spelen of een potje te voetballen en een heerlijk terras voor de ouders om te genieten van een een heerlijke pizza uit de pizza oven.

Naast de fantastische tuin zijn er nog meer bijzonderheden welke optimaal benut kunnen worden. Vanuit de tuin heb je toegang tot een praktische houten schuur voor het opbergen van tuinspullen. Maar het grootste pluspunt is de grote stenen schuur met verdieping welke diverse mogelijkheden heeft tot het ombouwen van een hobby- of praktijkruimte of wellicht wel een ruimte voor thuiswonende kinderen of een mantelzorgwoning.

Via de prachtige trap lopen we naar de eerste verdieping met toegang tot een keurig kantoor en de hoofdslaapkamer. Deze kamer bestond oorspronkelijk uit 2 slaapkamers; deze zijn samengevoegd tot 1 grote ruimte. De slaapkamer is voorzien van airco en geeft door middel van de openslaande deur toegang tot het balkon. Ook heeft deze slaapkamer een badkamer ensuite (2022) voorzien van een toilet, wastafelmeubel en grote inloopdouche met sunshower. Op de tweede verdieping tref je op de overloop een wastafel en nog 2 slaapkamers met een praktische CV ruimte waar ook voldoende bergruimte aanwezig is.

Bijzonderheden:
– vrijstaand wonen;
– zelfgemaakte houten overkapping in skihutstijl;
– keurig verzorgde tuin op een perceel van maar liefst 712 m2;
– eigen oprit voor meerdere auto’s;
– grote stenen garage met schuur (diverse mogelijkheden);
– aansluitende houten tuinschuur;
– badkamer ensuite (2022);
– 12 zonnepanelen (mei 2023);
– airco aanwezig op
– houten kozijnen van Amerikaans grenen, schilderwerk 2023/2024;
– dichtbij voorzieningen zoals winkels en station.

Interesse in dit huis? Schakel direct jouw eigen NVM-aankoopmakelaar in. Een NVM-aankoopmakelaar komt op voor jouw belang en bespaart tijd, geld en zorgen. Adressen van collega NVM-aankoopmakelaars zijn te vinden op Funda.

Alles over deze woning
Overdracht
Prijs€ 725.000 k.k.
StatusVerkocht
AanvaardingIn overleg
Aangeboden sinds27 september 2025
Bouw
Type objectWoonhuis
SoortVilla
TypeVrijstaande woning
Bouwjaar1936
Dak typeTentdak
IsolatievormenMuurisolatie, Vloerisolatie, Dubbelglas, HR glas
Oppervlaktes en inhoud
Perceel714 m2
Woonoppervlakte140 m2
Inhoud1.038 m3
Buitenruimtes gebouwgebonden of vrijstaand27 m2
Indeling
Aantal kamers5
Aantal slaapkamers4
Locatie
LiggingAan drukke weg, In centrum, In woonwijk
Tuin
TypeAchtertuin
StaatVerzorgd
LiggingNoordwest
AchteromJa
Uitrusting
Soorten warm waterCV ketel
Parkeer faciliteitenOp eigen terrein
Virtuele tour
Ik ben Denise Numan, NVM Makelaar bij Brantjes Heemskerk. Het plannen van een bezichtiging is de eerste stap in de zoektocht naar jouw droomhuis. Ik kijk ernaar uit je binnenkort te ontmoeten en je te helpen bij het vinden van jouw nieuwe thuis!

Plattegronden

Verken de locatie Wijkerstraatweg 243
Ik ben Denise Numan, NVM Makelaar bij Brantjes Heemskerk. Het plannen van een bezichtiging is de eerste stap in de zoektocht naar jouw droomhuis. Ik kijk ernaar uit je binnenkort te ontmoeten en je te helpen bij het vinden van jouw nieuwe thuis!