Ga naar content

Vennelaan 52

  • 71 m2 woonoppervlakte
  • 2 slaapkamers
  • Bouwjaar 2022

TE HUUR: Licht 3-kamer appartement op de tweede verdieping in Beverwijk!

Dit zo-goed-als-nieuwe appartement is nog maar 3 jaar oud en schreeuwt woongenot! Op de tweede verdieping is het appartement middels lift of trap te bereiken.

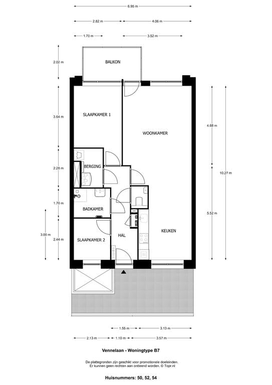
Binnenkomst in de ruime hal van waaruit alle vertrekken toegankelijk zijn. De woonkamer is licht en ruim. Via de openslaande deur is het ruime balkon beschikbaar waar van de zon genoten kan worden. De open keuken is voorzien van een koelkast met vriesvak, inductiekookplaat, afzuigkap, vaatwasser en combi oven-magnetron. Via de hal zijn de twee slaapkamers toegankelijk welke ruim zijn opgezet. In het midden van de hal zijn de wasruimte de separate toilet te vinden en daar tegenover de badkamer. De badkamer is voorzien van een handdoek designradiator, wastafel en inloopdouche.

Er bevindt zich een gemeenschappelijke fietsenberging en parkeergarage op de begane grond, waarbij dit appartement over 3 genummerde fietsplekken en 1 parkeerplek beschikt!

Enthousiast geworden?
Reageer nu om een bezichtiging in te plannen! Deze woning wordt kaal opgeleverd.

Huurcondities:
– huurprijs exclusief servicekosten (+/- €67,50 per maand);
– huurprijs exclusief energiecontract Duurzaam opgewekt, elektra, water, internet en televisie;
– waarborgsom: 2 maanden huur;
– huurtermijn minimaal 12 maanden;
– inkomenseis: bruto inkomen gelijk aan 3 x maandhuur;
– onder voorbehoud van gunning verhuurder;
– onder voorbehoud van positieve uitkomst screening inkomensgegevens en legitimatie huurder;
– roken in de woning niet toegestaan;
– huisdieren zijn niet toegestaan.

Alles over deze woning
Overdracht
Prijs€ 1.423 p/m
StatusOnder optie
AanvaardingPer datum
Aangeboden sinds30 oktober 2025
Bouw
Type objectAppartement
Bouwjaar2022
SoortPortiekflat
Woonlaag2
Dak typePlat dak
IsolatievormenVolledig geïsoleerd, HR glas
Oppervlaktes en inhoud
Woonoppervlakte71 m2
Inhoud185 m3
Buitenruimtes gebouwgebonden of vrijstaand6 m2
Indeling
Aantal kamers3
Aantal slaapkamers2
Locatie
LiggingAan park, Aan rustige weg, In woonwijk
Tuin
AchteromNee
Uitrusting
Soorten warm waterCentrale voorziening
Parkeer faciliteitenParkeergarage
Ik ben Danilla Prigge, Verhuurmakelaar bij Brantjes Beverwijk. Het plannen van een bezichtiging is de eerste stap in de zoektocht naar jouw droomhuis. Ik kijk ernaar uit je binnenkort te ontmoeten en je te helpen bij het vinden van jouw nieuwe thuis!
Verken de locatie Vennelaan 52
Ik ben Danilla Prigge, Verhuurmakelaar bij Brantjes Beverwijk. Het plannen van een bezichtiging is de eerste stap in de zoektocht naar jouw droomhuis. Ik kijk ernaar uit je binnenkort te ontmoeten en je te helpen bij het vinden van jouw nieuwe thuis!