Ga naar content

Texel 7

  • 156 m2 woonoppervlakte
  • 4 slaapkamers
  • Bouwjaar 2004
  • 179 m2 perceel

In de rustige en kindvriendelijke wijk Broekpolder staat deze tussenwoning uit 2004. Een ruime gezinswoning met een prettige indeling, vier slaapkamers en een zonnige tuin op het zuidwesten. De woning is energiezuinig dankzij zonnepanelen, een warmtepomp, thuisbatterij en goede isolatie. Kortom: een comfortabel huis met alles wat een gezin nodig heeft om fijn te wonen.

Begane grond
Je komt binnen via de hal met garderoberuimte, meterkast, moderne toiletruimte en trapopgang. De woonkamer is ruim en licht, met een grote schuifpui naar de tuin en voldoende plek voor een gezellige zithoek en een royale eettafel. De houten vloer en de wandafwerking zorgen voor een rustige basis waarin je makkelijk je eigen stijl kunt aanbrengen.

Aan de voorzijde ligt de open keuken met een praktische opstelling, voorzien van diverse inbouwapparatuur zoals een kookplaat, oven, afzuigkap, vaatwasser en koel-/vriescombinatie. Er is bovendien ruimte voor een kleine eettafel of ontbijtbar.

De achtertuin is onderhoudsvriendelijk aangelegd, met een groot terras, een stukje groen en een berging. Achter de tuin loopt een waterpartij met groenstrook, wat zorgt voor een prettige, open sfeer zonder directe achterburen.

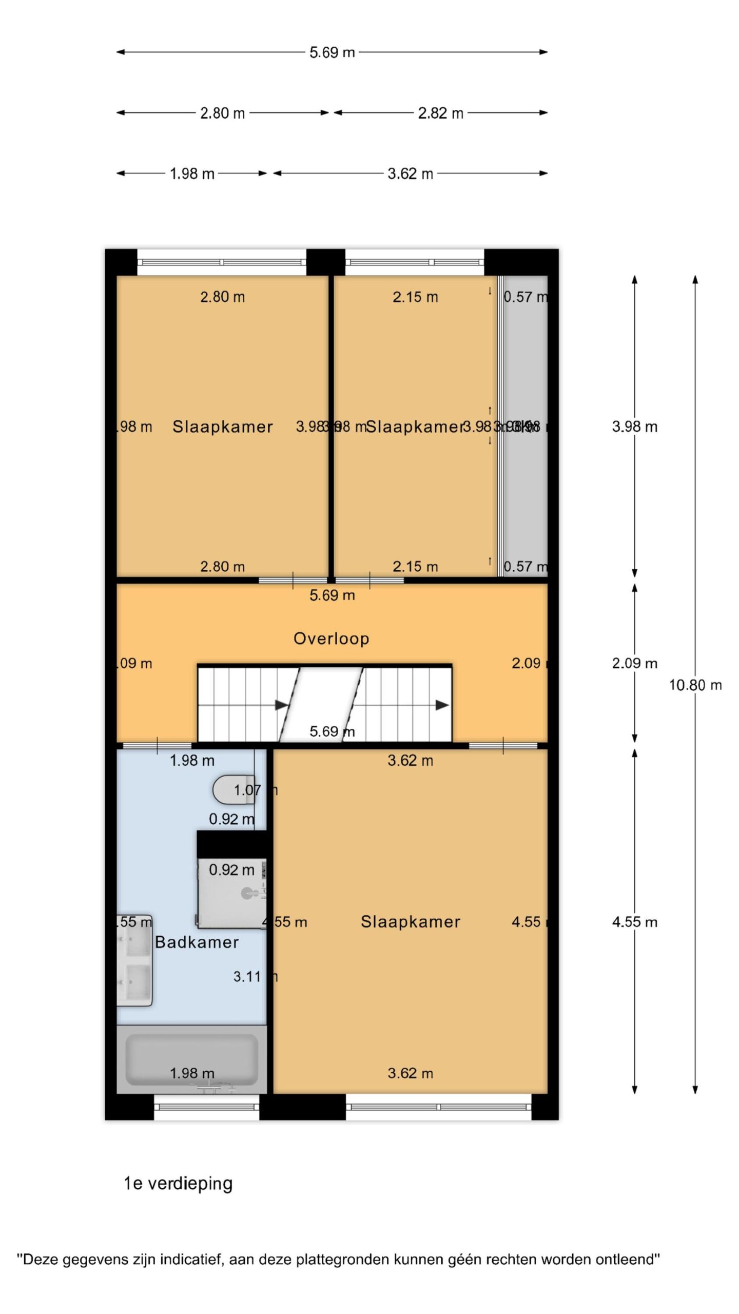
Eerste verdieping
De eerste verdieping biedt drie volwaardige slaapkamers, allen van een goed formaat. De badkamer is volledig betegeld en uitgerust met een inloopdouche, ligbad, dubbele wastafel en tweede toilet.

Tweede verdieping
De zolderverdieping is verrassend ruim en licht. Hier bevindt zich de vierde slaapkamer, ideaal als werkkamer of hobbyruimte. Daarnaast is er bergruimte en een aparte hoek voor de wasmachine en droger. Hier bevindt zich ook de Cv ketel en de hybride-warmtepomp (2022).

De ligging
De woning ligt in de jonge woonwijk Broekpolder: rustig, groen en met veel speelruimte voor kinderen. In de directe omgeving vind je scholen, sportverenigingen, winkels en openbaar vervoer. Ook de uitvalswegen richting Alkmaar, Haarlem en Amsterdam zijn snel bereikbaar.
De wijk heeft een prettige, gemoedelijke sfeer en biedt volop mogelijkheden om te wandelen of te fietsen in de omgeving.

Bouwjaar: 2004
Perceeloppervlakte: 179 m²
Woonoppervlakte: 156 m²
Inhoud: 542 m³
Energielabel: B

Bijzonderheden:
– ruime eengezinswoning;
– vier slaapkamers;
– volledig geïsoleerd (energielabel A+++);
– verwarming via cv-ketel en hybride-warmtepomp;
– zonnepanelen aanwezig;
– thuisbatterij aanwezig;
– zonnige achtertuin op het zuidwesten met berging;
– rustige ligging aan het water, zonder directe achterburen;
– kindvriendelijke buurt met voorzieningen dichtbij;
– oplevering in overleg.

Interesse in dit huis? Schakel direct jouw eigen NVM-aankoopmakelaar in. Jouw NVM-aankoopmakelaar komt op voor jouw belang en bespaart je tijd, geld en zorgen. Adressen van collega NVM-aankoopmakelaars vind je op Funda.

Alles over deze woning
Overdracht
Prijs€ 545.000 k.k.
StatusOnder bod
AanvaardingIn overleg
Aangeboden sinds28 oktober 2025
Bouw
Type objectWoonhuis
SoortEengezinswoning
TypeTussenwoning
Bouwjaar2004
Dak typeSamengesteld dak
IsolatievormenVolledig geïsoleerd
Oppervlaktes en inhoud
Perceel179 m2
Woonoppervlakte156 m2
Inhoud542 m3
Buitenruimtes gebouwgebonden of vrijstaand0 m2
Indeling
Aantal kamers5
Aantal slaapkamers4
Locatie
LiggingAan water, In woonwijk
Tuin
TypeAchtertuin
StaatNormaal
LiggingZuidwest
AchteromNee
Uitrusting
Soorten warm waterCV ketel
Parkeer faciliteitenOpenbaar parkeren, Op eigen terrein
Virtuele tour
Ik ben Tristan Jacobs, NVM Makelaar-Taxateur/ Vestigingsmanager bij Brantjes Heemskerk. Het plannen van een bezichtiging is de eerste stap in de zoektocht naar jouw droomhuis. Ik kijk ernaar uit je binnenkort te ontmoeten en je te helpen bij het vinden van jouw nieuwe thuis!

Plattegronden

Verken de locatie Texel 7
Ik ben Tristan Jacobs, NVM Makelaar-Taxateur/ Vestigingsmanager bij Brantjes Heemskerk. Het plannen van een bezichtiging is de eerste stap in de zoektocht naar jouw droomhuis. Ik kijk ernaar uit je binnenkort te ontmoeten en je te helpen bij het vinden van jouw nieuwe thuis!