Ga naar content

Schiermonnikoog 19

  • 143 m2 woonoppervlakte
  • 4 slaapkamers
  • Bouwjaar 2006
  • 248 m2 perceel

Aan de Schiermonnikoog 19 in Heemskerk mogen wij deze moderne en uitstekend onderhouden twee-onder-een-kapwoning te koop aanbieden. Dit is een woning waar comfort, stijl en ruimte samenkomen. Met een zonnige serre aan de achterzijde, een luxe keuken, energiezuinige voorzieningen en een fraai aangelegde tuin aan het water, is dit een woning die je direct in het hart sluit. Hier geniet je van eigentijds wooncomfort in een rustige, groene wijk met alle voorzieningen dichtbij.

Begane grond
De royale woonkamer met visgraat vloer en grote raampartijen straalt warmte en licht uit. De strakke afwerking, rustige kleuren en moderne verlichting zorgen voor een uitnodigende sfeer. Aan de tuinzijde bevindt zich een prachtige, volledig afsluitbare serre met een zonnescherm. Dit is een heerlijke plek waar binnen en buiten moeiteloos in elkaar overlopen. Hier kun je het hele jaar door ontspannen, dineren of genieten van het uitzicht op de groene tuin en het water.
De luxe keuken (2020) vormt een echte eyecatcher. De stijlvolle donkere kasten, het houten werkblad en de moderne wandtegels geven de ruimte karakter. Uiteraard is de keuken voorzien van moderne inbouwapparatuur, waaronder een inductiekookplaat, combi-oven en vaatwasser. Vanuit de keuken is er direct zicht op de serre en de tuin, waardoor koken en samenzijn hier perfect samengaan.

Eerste verdieping
De overloop leidt naar drie ruime slaapkamers, stuk voor stuk met een eigen sfeer. De ouderslaapkamer ligt aan de voorzijde en biedt een vrij uitzicht over de wijk. De badkamer is ruim en uitgevoerd met ligbad, douche, wastafelmeubel en tweede toilet.

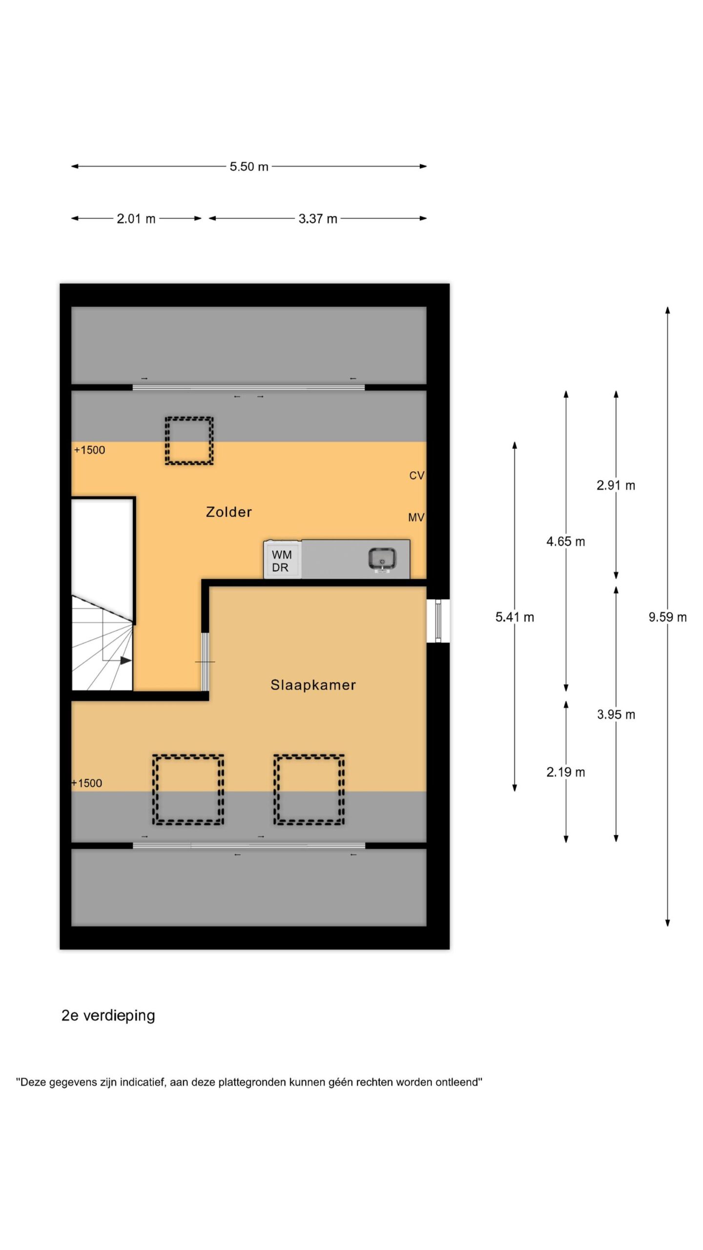
Zolderverdieping
Op de tweede verdieping is nog een ruime slaapkamer en veel bergruimte, ideaal als werk-, logeer- of tienerkamer. Hier bevindt zich ook de wasruimte met aansluiting voor wasmachine en droger.

Tuin
De achtertuin is werkelijk een plaatje. Direct achter de woning ligt de royale serre, daarachter een zonnig gazon en aan het einde een houten vlonder aan het water. De tuin is verzorgd aangelegd met veel privacy en een gunstige zonligging. Aan de voorzijde beschik je over een eigen oprit en een stenen garage.

De woning ligt in de geliefde wijk Broekpolder: een rustige, kindvriendelijke buurt met volop groen, speelvoorzieningen en wandelmogelijkheden langs het water. In de directe omgeving vind je scholen, sportverenigingen, winkels en het gezellige centrum van Heemskerk. De uitvalswegen naar Haarlem, Alkmaar en Amsterdam zijn snel bereikbaar, net als de duinen en het strand voor een dag ontspanning aan zee.

Kenmerken:
• Bouwjaar: 2006
• Perceeloppervlakte: 248 m²
• Woonoppervlakte: ca. 143m² (exclusief serre)
• Inhoud: ca. 668 m³
• Energielabel: A

BIJZONDERHEDEN
• Volledig geïsoleerde, energiezuinige woning (energielabel A)
• 4 ruime slaapkamers
• CV-ketel (Atag, 2023) en nieuwe mechanische ventilatie (2025)
• 14 zonnepanelen
• Luxe keuken (2020) met complete inbouwapparatuur
• Serre (2023) met glazen schuifwanden en zonnescherm
• Moderne afwerking met visgraatmotief vloer
• Garage en oprit op eigen terrein
• Tuin aan het water met vlonder en veel privacy
• Rolluiken, buitenzonwering en camerabeveiliging
• Glasvezelaansluiting aanwezig
• Aanvaarding in overleg.

Interesse in dit huis? Schakel direct jouw eigen NVM-aankoopmakelaar in. Jouw NVM-aankoopmakelaar komt op voor jouw belang en bespaart je tijd, geld en zorgen. Adressen van collega NVM-aankoopmakelaars vind je op Funda.

Alles over deze woning
Overdracht
Prijs€ 745.000 k.k.
StatusOnder bod
AanvaardingIn overleg
Aangeboden sinds22 oktober 2025
Bouw
Type objectWoonhuis
SoortEengezinswoning
TypeGeschakelde twee onder één kapwoning
Bouwjaar2006
Dak typeZadeldak
IsolatievormenVolledig geïsoleerd
Oppervlaktes en inhoud
Perceel248 m2
Woonoppervlakte143 m2
Inhoud668 m3
Buitenruimtes gebouwgebonden of vrijstaand27 m2
Indeling
Aantal kamers5
Aantal slaapkamers4
Locatie
LiggingAan water, In woonwijk
Tuin
TypeAchtertuin
StaatNormaal
LiggingZuidwest
AchteromNee
Uitrusting
Soorten warm waterCV ketel
Parkeer faciliteitenOpenbaar parkeren, Op eigen terrein
Virtuele tour
Ik ben Tristan Jacobs, NVM Makelaar-Taxateur/ Vestigingsmanager bij Brantjes Heemskerk. Het plannen van een bezichtiging is de eerste stap in de zoektocht naar jouw droomhuis. Ik kijk ernaar uit je binnenkort te ontmoeten en je te helpen bij het vinden van jouw nieuwe thuis!

Plattegronden

Verken de locatie Schiermonnikoog 19
Ik ben Tristan Jacobs, NVM Makelaar-Taxateur/ Vestigingsmanager bij Brantjes Heemskerk. Het plannen van een bezichtiging is de eerste stap in de zoektocht naar jouw droomhuis. Ik kijk ernaar uit je binnenkort te ontmoeten en je te helpen bij het vinden van jouw nieuwe thuis!