Ga naar content

Scherm 14

  • 92 m2 woonoppervlakte
  • 2 slaapkamers
  • Bouwjaar 1996

Licht en ruim appartement met uitzicht over rivier De Zaan!

Welkom aan de Scherm 14 in Wormer, een ruim en licht appartement waar comfort en uitzicht samenkomen. Vanuit de woonkamer en het royale balkon kijk je vrij uit over de Zaan, een plek waar de seizoenen zich prachtig laten zien en waar je iedere dag opnieuw geniet van het uitzicht. Daarnaast is de woning energiezuinig met een energielabel A!

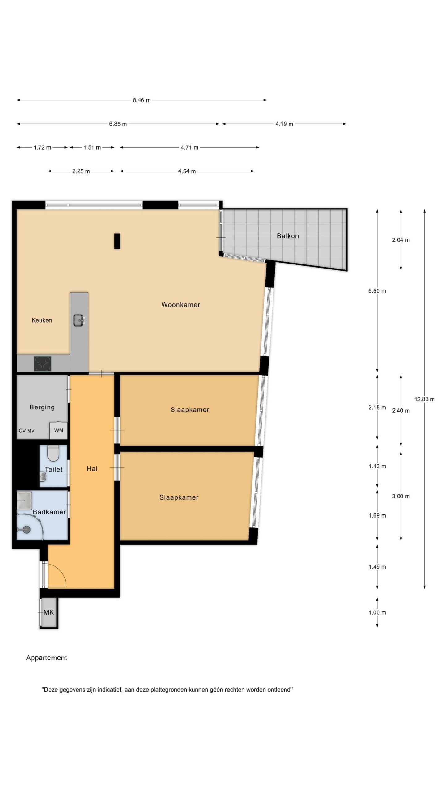
Bij binnenkomst stap je de hal binnen die toegang geeft tot alle vertrekken. De woonkamer is heerlijk licht en ruim, met grote ramen die het uitzicht op de Zaan optimaal benutten. Aansluitend vind je het ruime balkon, waar je met gemak een zitje plaatst en in alle rust van de buitenlucht en het waterzicht geniet. De nette keuken grenst aan de woonkamer en is uitgevoerd in een functionele opstelling met inbouwapparatuur. Het appartement beschikt over twee slaapkamers, een royale hoofdslaapkamer en een tweede kamer die uitstekend geschikt is als logeer- of werkkamer. De badkamer is voorzien van een douche en een modern wastafelmeubel. Daarnaast is er een separaat toilet aanwezig. Een praktische inpandige bergruimte maakt het geheel compleet, ideaal voor voorraad, huishoudelijke spullen en de wasmachine.

Het complex beschikt bovendien over een lift, wat het appartement zeer geschikt maakt voor jong en oud.

– Bouwjaar: 1996
– Energielabel: A
– Woonoppervlakte: 92 m²
– Balkon: 7 m²
– Inhoud: 281 m³

De locatie aan De Scherm is werkelijk ideaal. Gelegen in Wormer, aan de oostzijde van de Zaan en recht tegenover Wormerveer, bevindt deze woning zich in het hart van de gemeente Wormerland – samen met Jisp, Neck, Oostknollendam, Spijkerboor en Wijdewormer. Dit betekent dat de voordelen van zowel een landelijke omgeving als de nabijheid van levendige dorpskernen binnen handbereik liggen.

Het appartement is strategisch gesitueerd; het centrum van Wormer is op fietsafstand, terwijl de bruisende Zaanbocht in Wormerveer slechts een korte fietstocht verwijderd is. In Wormer en Wormerveer vindt u een gevarieerd aanbod aan gezellig gelegen terrasjes, unieke boetiekjes, diverse horecagelegenheden en een breed scala aan winkels op het marktplein, zoals supermarkten, een bakker, slager, drogisterij en meer.

Daarnaast zijn de verbindingen met de grotere steden uitstekend: de rijkswegen A7, A8 en A9 zijn snel en gemakkelijk te bereiken, zodat u binnen enkele minuten op belangrijke knooppunten bent. Het dichtstbijzijnde NS-station, station Wormerveer, is eveneens snel bereikbaar te voet of per fiets; vanaf hier staat u binnen 20 minuten op Amsterdam Centraal. Voor dagelijkse voorzieningen zijn zowel het centrum van Wormer als het marktplein in Wormerveer voor u bereikbaar.

Kortom, deze locatie combineert het beste van twee werelden: de rust en ruimte van een landelijke omgeving met de levendigheid en het gemak van stedelijke voorzieningen.

Het NS-station bereik je binnen ongeveer 4 fietsminuten, en binnen circa 20 minuten ben je op Amsterdam Centraal. De bereikbaarheid van de snelweg is ook uitstekend dankzij de snelle verbinding via de Provincialeweg naar de A8/A9. Hierdoor liggen Amsterdam, Alkmaar en Haarlem op korte afstand.

Bijzonderheden:
* Ruim balkon met uitzicht over de Zaan;
* Lift aanwezig;
* Badkamer met separaat toilet;
* Zonwering aanwezig;
* Glasvezel internet aanwezig;
* Aanvaarding in overleg.

Interesse in dit huis? Schakel direct jouw eigen NVM-aankoopmakelaar in. Jouw NVM-aankoopmakelaar komt op voor jouw belang en bespaart je tijd, geld en zorgen. Adressen van collega NVM-aankoopmakelaars vind je op Funda.

Alles over deze woning
Overdracht
Prijs€ 500.000 k.k.
StatusVerkocht onder voorbehoud
AanvaardingIn overleg
Aangeboden sinds8 oktober 2025
Bouw
Type objectAppartement
Bouwjaar1996
SoortPortiekwoning
Woonlaag4
Dak typePlat dak
IsolatievormenVolledig geïsoleerd, HR glas
Oppervlaktes en inhoud
Woonoppervlakte92 m2
Inhoud281 m3
Buitenruimtes gebouwgebonden of vrijstaand7 m2
Indeling
Aantal kamers4
Aantal slaapkamers2
Locatie
LiggingAan water, Aan rustige weg, In woonwijk, Vrij uitzicht, Aan vaarwater
Tuin
AchteromNee
Uitrusting
Soorten warm waterCV ketel
Parkeer faciliteitenOpenbaar parkeren, Op eigen terrein
Virtuele tour
Ik ben Erik Hempenius, NVM Register Makelaar-Taxateur / Regiomanager bij Brantjes Wormerland. Het plannen van een bezichtiging is de eerste stap in de zoektocht naar jouw droomhuis. Ik kijk ernaar uit je binnenkort te ontmoeten en je te helpen bij het vinden van jouw nieuwe thuis!

Plattegronden

Verken de locatie Scherm 14
Ik ben Erik Hempenius, NVM Register Makelaar-Taxateur / Regiomanager bij Brantjes Wormerland. Het plannen van een bezichtiging is de eerste stap in de zoektocht naar jouw droomhuis. Ik kijk ernaar uit je binnenkort te ontmoeten en je te helpen bij het vinden van jouw nieuwe thuis!