Ga naar content

Reigerstraat 11

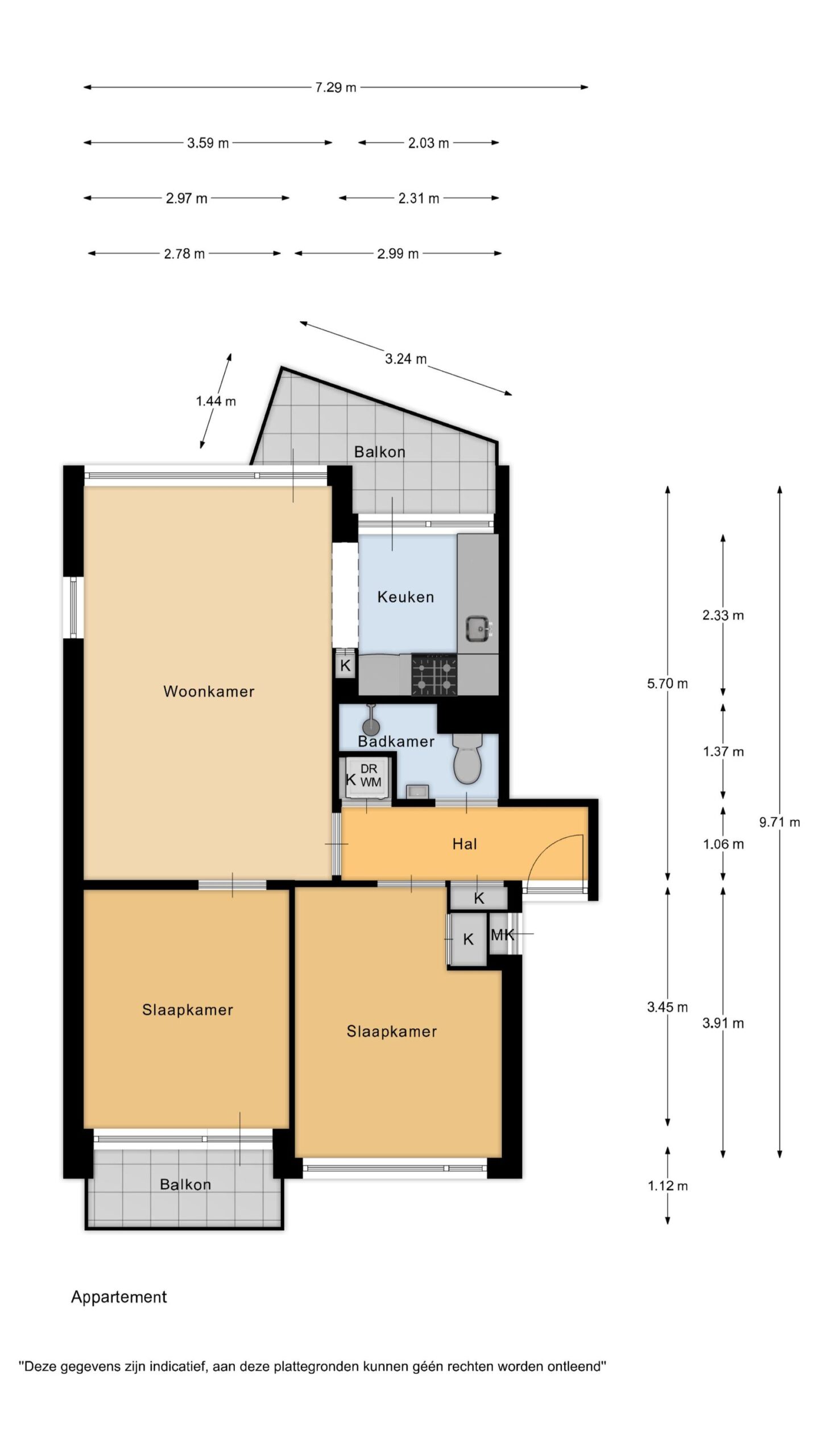
  • 57 m2 woonoppervlakte
  • 2 slaapkamers
  • Bouwjaar 1965

Instapklaar 3-kamerappartement met 2 balkons!

Dit is er zo één waar je zó in kunt: een keurig en licht appartement met twee slaapkamers en niet één, maar twee balkons. Hier woon je overzichtelijk en fijn, met alles binnen handbereik en een rustige ligging in Wormerveer. Of je nu starter bent, samen gaat wonen of gewoon op zoek bent naar een fris en verzorgd appartement: dit is precies wat je zoekt.

Op de derde verdieping stap je binnen in een lichte hal die je direct overzicht geeft. De woonkamer voelt ruim en uitnodigend, met brede raampartijen en vrij uitzicht. Alles is strak gestuukt en recent opnieuw geschilderd, wat de woning een frisse en moderne uitstraling geeft. De nieuwe vloer maakt het geheel helemaal af, waardoor je er echt zo in kunt.

Grenzend aan de woonkamer vind je de keuken. Deze is keurig afgewerkt en praktisch ingedeeld met voldoende werk- en kastruimte. Ideaal om dagelijks comfortabel te koken en toch gezellig in verbinding te blijven met de woonkamer en het balkon, waar je ’s middags en aan het einde van de dag geniet van de zon.

Het appartement beschikt over twee slaapkamers. De hoofdslaapkamer is royaal en biedt volop ruimte voor een groot bed en een kledingkast. De tweede kamer is ideaal als logeer-, werk- of kinderkamer. Vanuit deze kant van het appartement heb je toegang tot het tweede balkon, waar de ochtendzon je dag fris en licht laat beginnen. De badkamer is netjes en compleet met douche, toilet en wastafel – compact, fris en efficiënt ingericht.

Beneden in het gebouw vind je de verzorgde entree met bellentableau en heb je de beschikking over een eigen berging. Handig voor fietsen, sportspullen of seizoensgebonden zaken.

Zie jij jezelf hier al wonen? We laten de woning graag aan je zien tijdens een persoonlijke bezichtiging!
                              
– Bouwjaar: 1965
– Woonoppervlakte: 57 m²
– Inhoud: 192 m³
– Balkons: 7 m²
– Energielabel: D

De woonwijk / ligging                                                
De Reigerstraat ligt in een rustige woonwijk van Wormerveer, met alle voorzieningen op korte afstand. Op woensdag wandel je zo naar het gezellige Marktplein, waar de wekelijkse markt plaatsvindt. Voor een ontspannen wandeling langs het water en een goed kopje koffie zit je in een paar minuten bij de Zaanbocht – dé plek om te genieten van het uitzicht op de Zaan.

Ook qua bereikbaarheid zit je hier uitstekend: het NS-station Wormerveer ligt op fietsafstand en brengt je binnen 20 minuten naar Amsterdam Centraal. Daarnaast zijn de rijkswegen A7, A8 en A9 snel te bereiken, waardoor zowel Amsterdam, Haarlem als Alkmaar gemakkelijk bereikbaar zijn. Zo woon je rustig, maar ben je binnen no time in de stad.
 
Bijzonderheden
– Geheel voorzien van kunststof kozijnen met dubbel glas;
– Vernieuwde badkamer (2017);
– Twee balkons: ochtendzon aan de slaapkamerzijde, middag- en avondzon bij de woonkamer/keuken;
– Eigen berging in de onderbouw; 
– Servicekosten € 230,- per maand (incl. voorschot stookkosten van € 80,-);
– Centrale ligging nabij winkels, marktplein, openbaar vervoer en overige voorzieningen;
– Aanvaarding in overleg. 

Interesse in dit huis? Schakel direct jouw eigen NVM-aankoopmakelaar in. Jouw NVM-aankoopmakelaar komt op voor jouw belang en bespaart je tijd, geld en zorgen. Adressen van collega NVM-aankoopmakelaars vind je op Funda.

Alles over deze woning
Overdracht
Prijs€ 289.000 k.k.
StatusVerkocht
AanvaardingIn overleg
Aangeboden sinds12 oktober 2025
Bouw
Type objectAppartement
Bouwjaar1965
SoortPortiekflat
Woonlaag3
Dak typePlat dak
IsolatievormenDubbelglas
Oppervlaktes en inhoud
Woonoppervlakte57 m2
Inhoud192 m3
Buitenruimtes gebouwgebonden of vrijstaand7 m2
Indeling
Aantal kamers3
Aantal slaapkamers2
Locatie
LiggingAan rustige weg, In woonwijk, Vrij uitzicht
Tuin
AchteromNee
Uitrusting
Soorten warm waterElektrische boiler eigendom
Parkeer faciliteitenOpenbaar parkeren
Virtuele tour
Ik ben Roan Mulderij, NVM Makelaar bij Brantjes Wormerland. Het plannen van een bezichtiging is de eerste stap in de zoektocht naar jouw droomhuis. Ik kijk ernaar uit je binnenkort te ontmoeten en je te helpen bij het vinden van jouw nieuwe thuis!

Plattegronden

Verken de locatie Reigerstraat 11
Ik ben Roan Mulderij, NVM Makelaar bij Brantjes Wormerland. Het plannen van een bezichtiging is de eerste stap in de zoektocht naar jouw droomhuis. Ik kijk ernaar uit je binnenkort te ontmoeten en je te helpen bij het vinden van jouw nieuwe thuis!