Ga naar content

Passage 26

  • 62 m2 woonoppervlakte
  • 1 slaapkamers
  • Bouwjaar 1980

Starters opgelet!

Pak je telefoon en app of bel snel naar ons kantoor. Hier wil je bezichtigen! Een fijn appartement met , een goed verzorgde keuken, veel opbergruimte én bovenal, een balkon aan de Breestraat met uitzicht over Beverwijk. Wat wil je nog meer? Letterlijk een kwestie van spullen pakken en verhuizen maar! Dit keurig nette tweekamerappartement aan De Passage is gelegen op de vijfde (en bovenste) verdieping van dit centraal gelegen appartementencomplex in het centrum van Beverwijk.

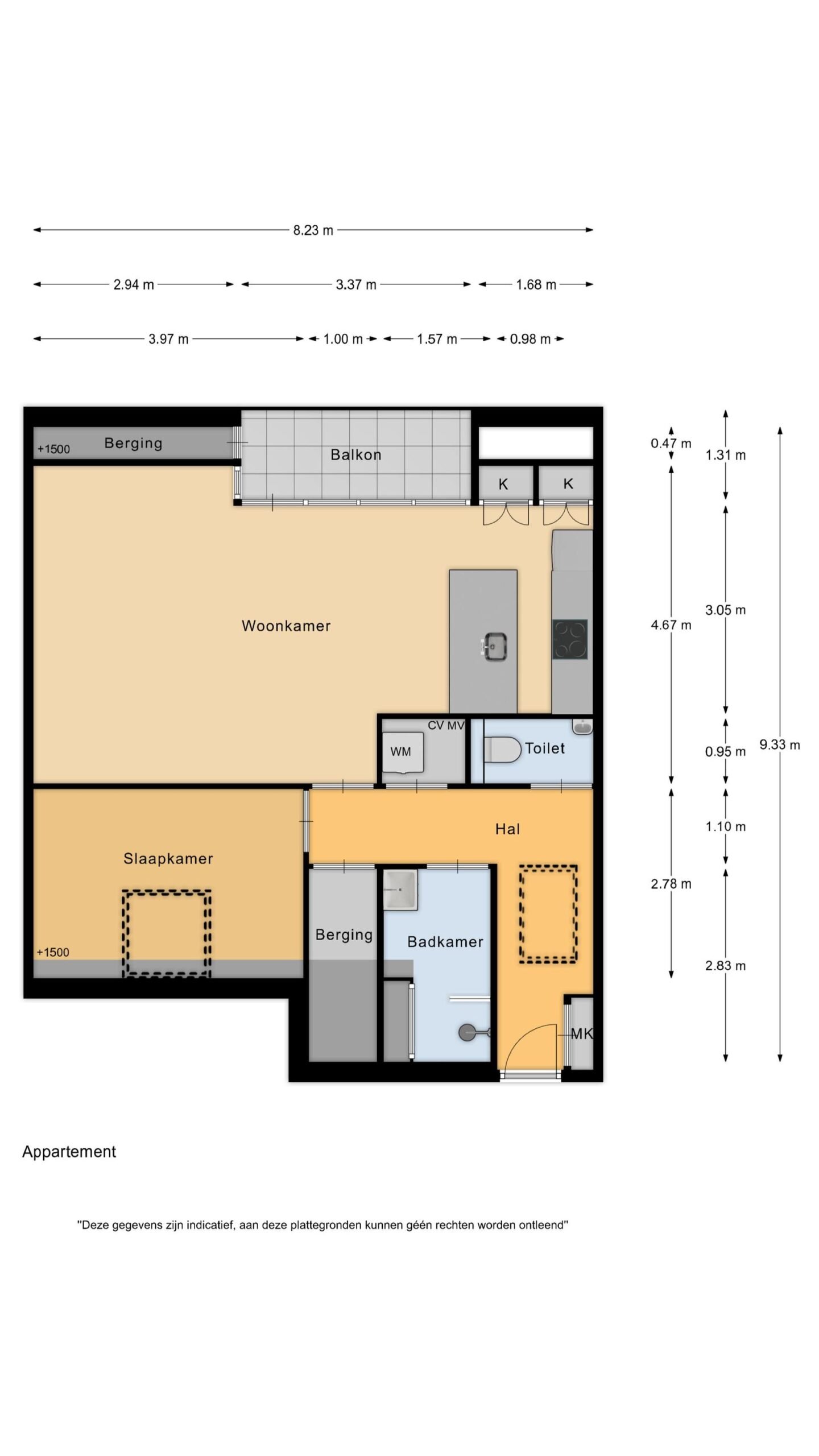
Een snel rondje door het huis vanaf de voordeur. Door de ruime hal met spiegelwand loop je naar de woonkamer met open woonkeuken. De woonkeuken, die in 2020 is geplaatst, heeft een spoeleiland en is voorzien van alle benodigde apparatuur en kastruimte. Vanuit de huiskamer stap je zo op het balkon. Geniet elke dag van een kop koffie aan de bar in de keuken of van een zomers drankje op het balkon met uitzicht over Beverwijk! Omdat het balkon op het westen uitkijkt, zijn er regelmatig prachtige zonsondergangen te zien.

Via de hal heb je ook toegang tot de andere ruimtes. De ruime slaapkamer is voorzien van een dakraam en geeft plek aan een tweepersoonsbed en kast. Er is een inpandige berging en een CV kast met wasmachineaansluiting. Tot slot het separate toilet en de badkamer. De badkamer is vlak voor aankoop van huidige eigenaar gerenoveerd en heeft een grijze vloertegel met witte wandtegels. Met een douche, wastafelmeubel en raam is de badkamer van alle gemakken voorzien.

Op de begane grond van het complex is nog een separate fietsenberging aanwezig.

Het appartementencomplex is voorzien van een lift en intercominstallatie. Gelegen op een ideale locatie midden in het centrum van Beverwijk. Alle voorzieningen zijn binnen handbereik. Het winkelcentrum “De Beverhof” ligt op loopafstand van het complex en biedt supermarkten, een bakkerij en diverse winkels. Het openbaar vervoer is slechts op 2 minuten loopafstand.

Bewonerservaringen:
“Het huis geeft veel vrijheid. En heeft misschien wel het mooiste uitzicht over de Breestraat en Beverwijk. Ik heb hier als starter met veel plezier mogen wonen in een levendige omgeving. Er waren heel wat zomeravonden dat ik op het balkon met vrienden heb genoten van een drankje of de avondzon. Maar ik kon ook makkelijk in de omgeving dingen beleven omdat alles zo dichtbij is. Vanaf de voordeur kan je binnen 6 kilometer de zee aantikken in Wijk aan Zee. En met 20 minuten ben je in een grote stad om te stappen. Op 5 hoog heb je maar 1 buurman waardoor je het bijna een penthouse kan noemen (zo voelde het wel in ieder geval). Het appartement voelt ruim aan en er is voldoende bergruimte. Dus, ben jij op zoek naar een goed verzorgde instapklare woning, dan is dit de ideale kans.”

Nieuwsgierig geworden? Bel gauw voor een bezichtiging en tot snel!

Bouwjaar: 1980
Woonoppervlakte: ca. 62 m²
Buitenruimte (balkon): ca. 4 m²
Inhoud: ca. 199 m³
Aantal slaapkamers: 1

Bijzonderheden:
– midden in het centrum van Beverwijk
– energielabel C;
– gelegen op de 5e verdieping;
– fraai afgewerkt en instapklaar;
– balkon met uitzicht;
– Aparte opbergruimte met wasmachineaansluiting;
– Eigen berging op de begane grond;
– Servicekosten € 217,- p/m, inclusief voorschot water, opstalverzekering en reservering groot onderhoud;
– Nabijheid van winkels, station en uitvalswegen.

Heeft dit appartement je interesse gewekt? Neem dan direct contact op met ons kantoor voor het inplannen van een bezichtiging.

Interesse in dit huis? Schakel direct jouw eigen NVM-aankoopmakelaar in. Een NVM-aankoopmakelaar komt op voor jouw belang en bespaart tijd, geld en zorgen. Adressen van collega NVM-aankoopmakelaars zijn te vinden op Funda.

Alles over deze woning
Overdracht
Prijs€ 285.000 k.k.
StatusBeschikbaar
AanvaardingIn overleg
Aangeboden sinds30 oktober 2025
Bouw
Type objectAppartement
Bouwjaar1980
SoortPortiekflat
Woonlaag5
Dak typeSamengesteld dak
IsolatievormenHR glas
Oppervlaktes en inhoud
Woonoppervlakte62 m2
Inhoud199 m3
Buitenruimtes gebouwgebonden of vrijstaand4 m2
Indeling
Aantal kamers2
Aantal slaapkamers1
Locatie
LiggingIn centrum
Tuin
AchteromNee
Uitrusting
Soorten warm waterCV ketel
Parkeer faciliteitenBetaald parkeren, Parkeervergunningen
Virtuele tour
Ik ben Denise Numan, NVM Makelaar bij Brantjes Beverwijk. Het plannen van een bezichtiging is de eerste stap in de zoektocht naar jouw droomhuis. Ik kijk ernaar uit je binnenkort te ontmoeten en je te helpen bij het vinden van jouw nieuwe thuis!

Plattegronden

Verken de locatie Passage 26
Ik ben Denise Numan, NVM Makelaar bij Brantjes Beverwijk. Het plannen van een bezichtiging is de eerste stap in de zoektocht naar jouw droomhuis. Ik kijk ernaar uit je binnenkort te ontmoeten en je te helpen bij het vinden van jouw nieuwe thuis!