Ga naar content

Overboslaan 18

  • 62 m2 woonoppervlakte
  • 1 slaapkamers
  • Bouwjaar 1978

Dit moderne appartement heeft het allemaal! nabij het park Overbos!

Stap binnen in dit tot in de puntjes verzorgde appartement waar sfeer, comfort én duurzaamheid samenkomen. De strak gestuukte wanden en de fraaie visgraatvloer met vloerverwarming geven het geheel een warme, eigentijdse uitstraling hier voel je je meteen thuis.

Ook op het gebied van duurzaamheid zit je goed. Dankzij de aanwezige warmtepomp woon je energiezuinig én comfortabel. Perfect voor wie klaar wil zijn voor de toekomst én wil besparen op de energierekening.

De locatie is minstens zo fijn: direct naast park Overbos ideaal voor een dagelijkse wandeling of een moment rust in het groen. Ook het Marlo-terrein ligt om de hoek, met supermarkten, winkels en horeca binnen handbereik.

Bouwjaar: ca 1978 (Volledig gerenoveerd 2024)
Woonoppervlakte: ca. 62 m²
Externe bergruimte: ca. 5 m²
Inhoud: 207 m³
Energielabel: A ++

Indeling:
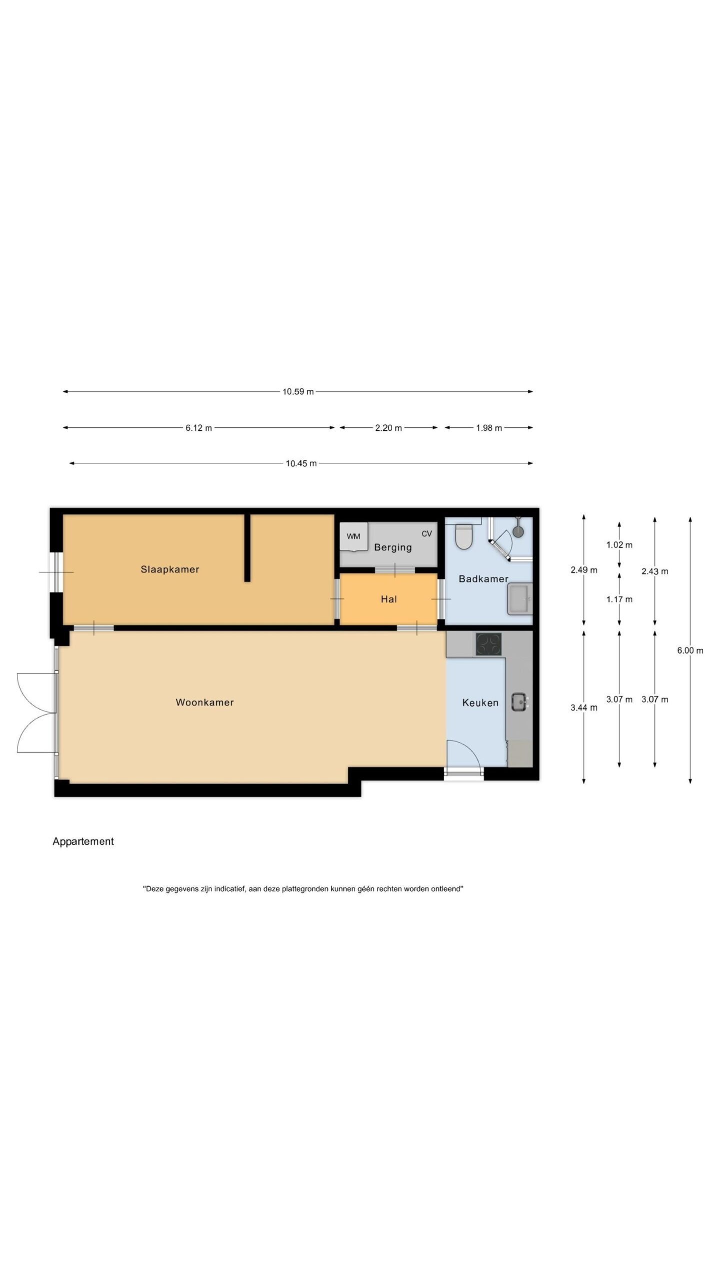
Je komt binnen in de entree met directe toegang tot de open keuken en de ruime, lichte woonkamer met openslaande deuren. Vanuit de woonkamer bereik je een hal die toegang geeft tot de overige ruimtes.

Aan de hal ligt de moderne badkamer, voorzien van een inloopdouche, wastafelmeubel en toilet. Daarnaast vind je hier een praktische berging met wasruimte en de warmtepompinstallatie. Aan het eind van de hal bevindt zich de ruime slaapkamer met de mogelijkheid voor een inloopkast – ideaal voor extra opbergruimte of een werkhoek.

Bijzonderheden:
– project notaris Batenburg Beverwijk;
– visgraatvloer;
– vloerverwarming;
– inbouwspots en led strips;
– kunststofkozijnen;
– Balkon op het zuidwesten;
– kindvriendelijke buurt met speelveldje achter de woning;
– diverse sportvelden in de omgeving;

Interesse in dit huis? Schakel direct je eigen NVM-aankoopmakelaar in.
Jouw NVM-aankoopmakelaar komt op voor jouw belang en bespaart je tijd, geld en zorgen.
Adressen van collega NVM-aankoopmakelaars vind je op Funda.

Alles over deze woning
Overdracht
Prijs€ 299.500 k.k.
StatusVerkocht
AanvaardingIn overleg
Aangeboden sinds23 november 2025
Bouw
Type objectAppartement
Bouwjaar1978
SoortBenedenwoning
Woonlaag1
Dak typePlat dak
IsolatievormenVolledig geïsoleerd
Oppervlaktes en inhoud
Woonoppervlakte62 m2
Inhoud205 m3
Buitenruimtes gebouwgebonden of vrijstaand0 m2
Tuinoppervlakte5 m2
Indeling
Aantal kamers2
Aantal slaapkamers1
Locatie
LiggingAan water, Aan rustige weg
Tuin
TypeAchtertuin
StaatNormaal
LiggingZuidoost
AchteromNee
Uitrusting
Soorten warm waterElektrische boiler eigendom
Parkeer faciliteitenOpenbaar parkeren
Virtuele tour
Ik ben Lars Verhoef, NVM Register Makelaar-Taxateur/ Regiomanager bij Brantjes Beverwijk. Het plannen van een bezichtiging is de eerste stap in de zoektocht naar jouw droomhuis. Ik kijk ernaar uit je binnenkort te ontmoeten en je te helpen bij het vinden van jouw nieuwe thuis!

Plattegronden

Verken de locatie Overboslaan 18
Ik ben Lars Verhoef, NVM Register Makelaar-Taxateur/ Regiomanager bij Brantjes Beverwijk. Het plannen van een bezichtiging is de eerste stap in de zoektocht naar jouw droomhuis. Ik kijk ernaar uit je binnenkort te ontmoeten en je te helpen bij het vinden van jouw nieuwe thuis!