Ga naar content

Oostertuinen 87

  • 121 m2 woonoppervlakte
  • 4 slaapkamers
  • Bouwjaar 1955
  • 284 m2 perceel

Hoekwoning met fantastische tuin in kindvriendelijke buurt

Stel je voor: wonen in een fijne hoekwoning, met een grote achtertuin waar je het hele jaar door een prettige plek vindt om buiten te zijn, in een rustige straat en met alle voorzieningen van Beverwijk binnen handbereik. Oostertuinen 87 is zo’n huis. Een vertrouwd jaren ’50 familiehuis, met maar liefst vier slaapkamers, een ruime kavel van 284 m² en energielabel C. Hier kun je direct prettig wonen én stap voor stap moderniseren naar je eigen smaak.

Bouwjaar: 1955
Woonoppervlakte: 121 m²
Perceeloppervlakte: 284 m²
Inhoud: 435 m³
Energielabel: C

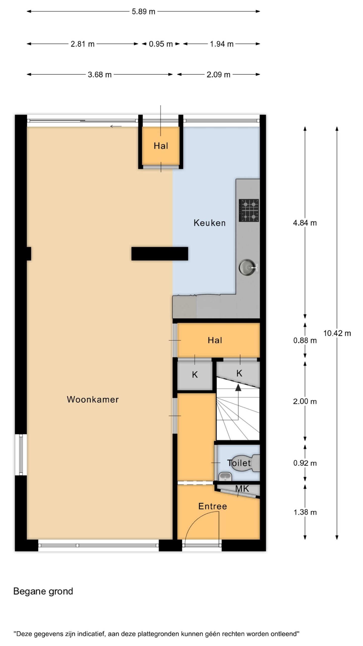
Begane grond
Je komt binnen via de voortuin in de hal met ruimte voor jassen en schoenen. Hier vind je de meterkast, het toilet en de trap naar boven.
De woonkamer is dankzij de hoekligging heerlijk licht, met grote ramen en zicht op zowel de straat als de tuin. Er is genoeg plek voor een fijne zithoek én mede dankzij de uitbouw heb je hier de mogelijkheid tot het creeëren van een fantastische woonkeuken waar je met gemak met het hele gezin of vrienden tafelt en de sterren van de hemel kookt. Vanuit de keuken loop je via een tussenhal zo de riante achtertuin in.

Tuin
Eén van de grote pluspunten van deze woning is de buitenruimte.
De voortuin geeft de woning een vriendelijke aanblik en zorgt voor extra afstand tot de straat. Wel zo rustig!
De achtertuin is royaal te noemen en ligt om de hoekwoning heen, waardoor je veel gevoel van ruimte en privacy ervaart. Er is volop plaats voor meerdere terrassen, een grote eettafel buiten, een trampoline of juist een weelderige siertuin. Door de grootte van de tuin is er altijd wel een plekje in de zon én in de schaduw te vinden. Aan opbergruimte geen gebrek, in de tuin staat een zeer ruime schuur waar menig klusliefhebber, hobbyist of ouders met kinderen blij van worden.

Eerste verdieping
Een frisse badkamer, circa 5 jaar oud, met douche, wastafelmeubel, toilet en handdoekradiator. Dankzij de neutrale basis past deze badkamer bij ieder in de smaak. Dankzij de hoekligging en de ramen voelt de verdieping licht en luchtig aan. De eerste verdieping is voorzien van 2 ruime slaapkamers met inbouwkasten. De derde slaapkamer biedt mogelijkheid voor een kantoor, studeer- of babykamer.

Zolderverdieping
Via een vaste trap kom je op de tweede verdieping. Hier is de vierde slaapkamer gerealiseerd, waarbij de dakkapel zorgt voor extra licht en ruimte. Deze kamer is bijvoorbeeld ideaal als ouderslaapkamer, tienerkamer of werkkamer.
Op de zolder is daarnaast praktische bergruimte aanwezig voor koffers, seizoensspullen en meer. Ook heb je de optie om hier een ruimte te realiseren voor de wasmachine en droger.

DE WOONWIJK / LIGGING
Oostertuinen is een rustige, groene woonstraat in een geliefde woonwijk van Beverwijk. Hier rijd vooral bestemmingsverkeer; kinderen kunnen er relatief rustig spelen en je woont hier prettig als gezin.
Binnen enkele minuten fietsen bereik je winkels voor de dagelijkse boodschappen, scholen en diverse sportvoorzieningen. Ook het centrum van Beverwijk met horeca en overige winkels ligt op korte afstand. Het NS-station van Beverwijk en de uitvalswegen richting A9 (Haarlem, Amsterdam, Alkmaar) zijn goed bereikbaar, waardoor je zowel met de auto als met het openbaar vervoer fijn onderweg bent.
En wil je uitwaaien? De duinen en het strand zijn vanuit Beverwijk uitstekend bereikbaar, waardoor een strandwandeling of zomerse stranddag zomaar een vaste weekendtraditie kan worden.

BIJZONDERHEDEN
– reeds uitgebouwde hoekwoning;
– 4 slaapkamers;
– perceel van 284 m2;
– energielabel C;
– kindvriendelijke buurt
– aanvaarding kan snel.

Interesse in dit huis? Schakel direct jouw eigen NVM-aankoopmakelaar in. Jouw NVM-aankoopmakelaar komt op voor jouw belang en bespaart je tijd, geld en zorgen. Adressen van collega NVM-aankoopmakelaars vind je op Funda.

Alles over deze woning
Overdracht
Prijs€ 445.000 k.k.
StatusVerkocht
AanvaardingIn overleg
Aangeboden sinds18 november 2025
Bouw
Type objectWoonhuis
SoortEengezinswoning
TypeHoekwoning
Bouwjaar1955
Dak typeZadeldak
IsolatievormenDakisolatie, Muurisolatie, Vloerisolatie, Dubbelglas
Oppervlaktes en inhoud
Perceel284 m2
Woonoppervlakte121 m2
Inhoud435 m3
Buitenruimtes gebouwgebonden of vrijstaand0 m2
Indeling
Aantal kamers5
Aantal slaapkamers4
Locatie
LiggingAan rustige weg, In woonwijk
Tuin
TypeAchtertuin
StaatNormaal
LiggingNoordoost
AchteromJa
Uitrusting
Soorten warm waterCV ketel
Parkeer faciliteitenOpenbaar parkeren
Virtuele tour
Ik ben Denise Numan, NVM Makelaar bij Brantjes Heemskerk. Het plannen van een bezichtiging is de eerste stap in de zoektocht naar jouw droomhuis. Ik kijk ernaar uit je binnenkort te ontmoeten en je te helpen bij het vinden van jouw nieuwe thuis!

Plattegronden

Verken de locatie Oostertuinen 87
Ik ben Denise Numan, NVM Makelaar bij Brantjes Heemskerk. Het plannen van een bezichtiging is de eerste stap in de zoektocht naar jouw droomhuis. Ik kijk ernaar uit je binnenkort te ontmoeten en je te helpen bij het vinden van jouw nieuwe thuis!