Ga naar content

Nieuwstraat 2C 7

  • 61 m2 woonoppervlakte
  • 1 slaapkamers
  • Bouwjaar 2017

Fraai appartement in het centrum van Beverwijk!

Een unieke kans om in een modern en luxe afgewerkt appartement te kunnen wonen. Dit appartementencomplex luistert naar de naam “’t Pakhuys” en kenmerkt zich door de fraaie architectuur en de ultieme ligging. Of je nu wilt winkelen, een terrasje wilt pakken of naar de bioscoop wilt gaan: werkelijk alles is op loopafstand. Ook voor de forens is dit appartement een ideale uitvalsbasis: het NS-station van Beverwijk bevindt zich op 5 minuten loopafstand en ook de uitvalswegen naar Haarlem, Alkmaar of Amsterdam zijn nabij.

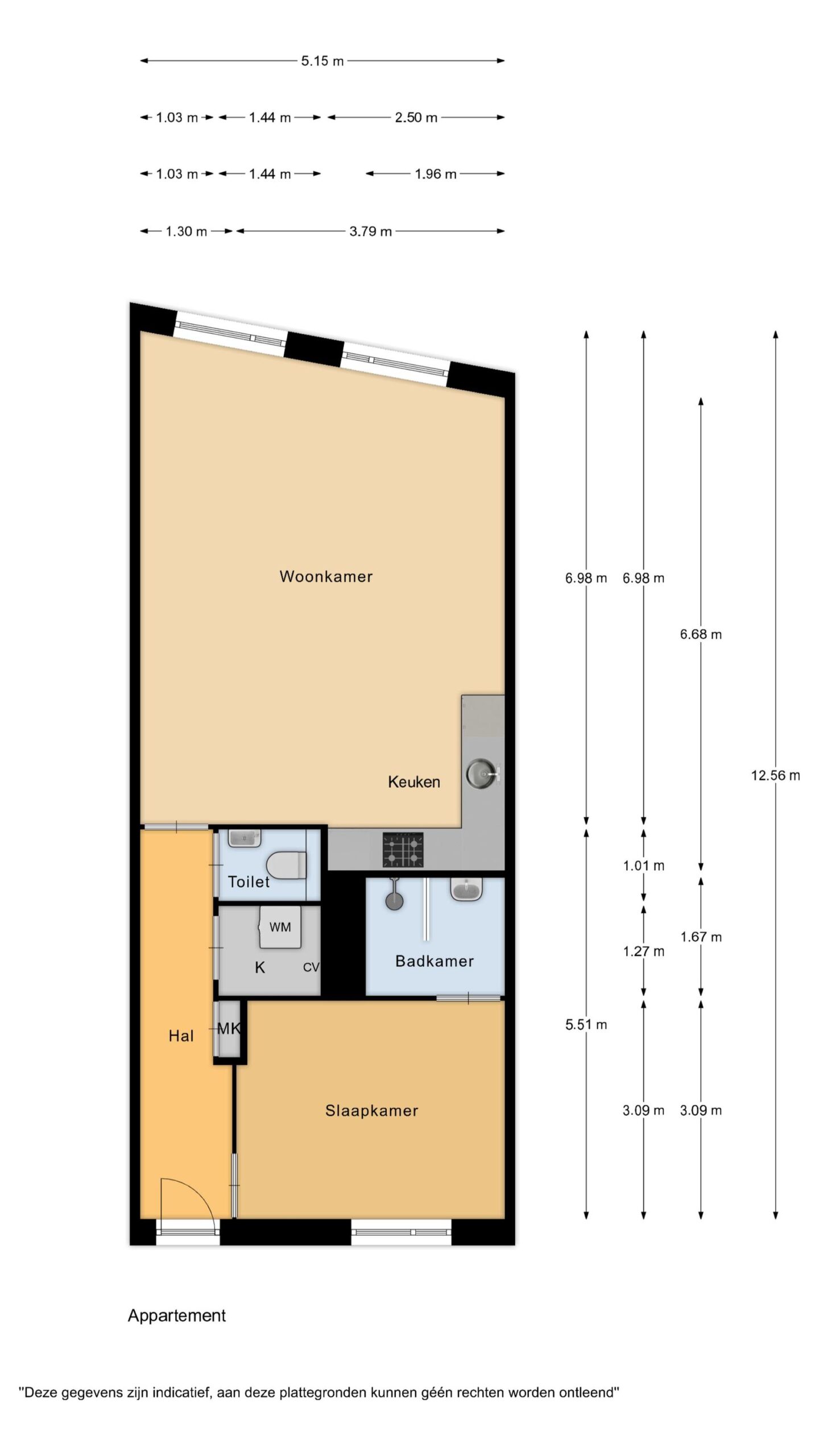
Gelegen op de derde, en tevens bovenste verdieping van het complex, tref je dit leuke appartement. Via de lange hal kom je in de ruim opgezette woonkamer met grote raampartijen en uitzicht over de haven van Beverwijk. De woonkamer is voorzien van een Frans balkon en een nette open keuken. Verder heb je in het appartement de beschikking over een separaat toilet en een praktische ruimte voor de wasmachine en opstelplaats van de cv-ketel. De slaapkamer gelegen aan de voorzijde en biedt tevens toegang tot de verzorgde badkamer met inloopdouche en wastafelmeubel.

Aan de voorzijde van het appartement is een zitje waar je kunt genieten van de middag- en avondzon. Tevens is er een aparte fietsenberging op de eerste verdieping en een gemeenschappelijke fietsenstalling op de begane grond.

Wil jij wonen in dit fraaie appartement met een energielabel A! Bel met ons kantoor voor het inplannen van een bezichtiging.

Bouwjaar: 2017
Gebruiksoppervlakte woning: ca. 61 m2
Inhoud: ca. 205 m3

Bijzonderheden:
– zo te betrekken;
– voorzien van lift;
– laminaatvloer in gehele appartement;
– moderne open keuken met inbouw oven, vaatwasser, afzuigkap en gaskookplaat;
– badkamer voorzien van inloopdouche en wastafelmeubel
– cv ketel Intergas 2017;
– energiezuinig gebouwd;
– nabij NS station;
– uitvalswegen en winkels binnen handbereik;
– VvE bijdrage € 166,- per maand;
– parkeren middels vergunning € 27,- per jaar.

Interesse in dit huis? Schakel direct uw eigen NVM-aankoopmakelaar in. Uw NVM-aankoopmakelaar komt op voor úw belang en bespaart u tijd, geld en zorgen. Adressen van collega NVM-aankoopmakelaars vindt u op Funda.

Alles over deze woning
Overdracht
Prijs€ 300.000 k.k.
StatusBeschikbaar
AanvaardingIn overleg
Aangeboden sinds24 december 2025
Bouw
Type objectAppartement
Bouwjaar2017
SoortGalerijflat
Woonlaag3
Dak typePlat dak
IsolatievormenVolledig geïsoleerd
Oppervlaktes en inhoud
Woonoppervlakte61 m2
Inhoud205 m3
Buitenruimtes gebouwgebonden of vrijstaand0 m2
Indeling
Aantal kamers2
Aantal slaapkamers1
Locatie
LiggingIn centrum, Vrij uitzicht
Tuin
AchteromNee
Uitrusting
Soorten warm waterCV ketel
Parkeer faciliteitenOpenbaar parkeren, Parkeervergunningen
Virtuele tour
Ik ben Marnix Bartelink, NVM Register Makelaar-Taxateur/ Vestigingsmanager bij Brantjes Velsen. Het plannen van een bezichtiging is de eerste stap in de zoektocht naar jouw droomhuis. Ik kijk ernaar uit je binnenkort te ontmoeten en je te helpen bij het vinden van jouw nieuwe thuis!

Plattegronden

Verken de locatie Nieuwstraat 2C 7
Ik ben Marnix Bartelink, NVM Register Makelaar-Taxateur/ Vestigingsmanager bij Brantjes Velsen. Het plannen van een bezichtiging is de eerste stap in de zoektocht naar jouw droomhuis. Ik kijk ernaar uit je binnenkort te ontmoeten en je te helpen bij het vinden van jouw nieuwe thuis!