Ga naar content

Munnikenweg 86

  • 87 m2 woonoppervlakte
  • 2 slaapkamers
  • Bouwjaar 1933
  • 100 m2 perceel

Leuke jaren ’30-woning met volop mogelijkheden!

Ben je op zoek naar een huis met karakter én potentie?
Dicht bij het centrum staat deze tussenwoning te wachten op iemand met twee rechterhanden.

De woning heeft liefde en aandacht nodig, maar de basis is er zeker. Met originele details zoals een erker en glas-in-loodramen kun je hier iets prachtigs van maken. Geef het jouw eigen stijl en tover dit huis om tot een sfeervol thuis.

Een ideale kans voor wie niet bang is om de handen uit de mouwen te steken en zijn eigen droomplek wil creëren.

Bouwjaar: 1933
Woonoppervlakte: ca. 87 m2
Externe bergruimte: ca. 6 m2
Inhoud: 334 m3

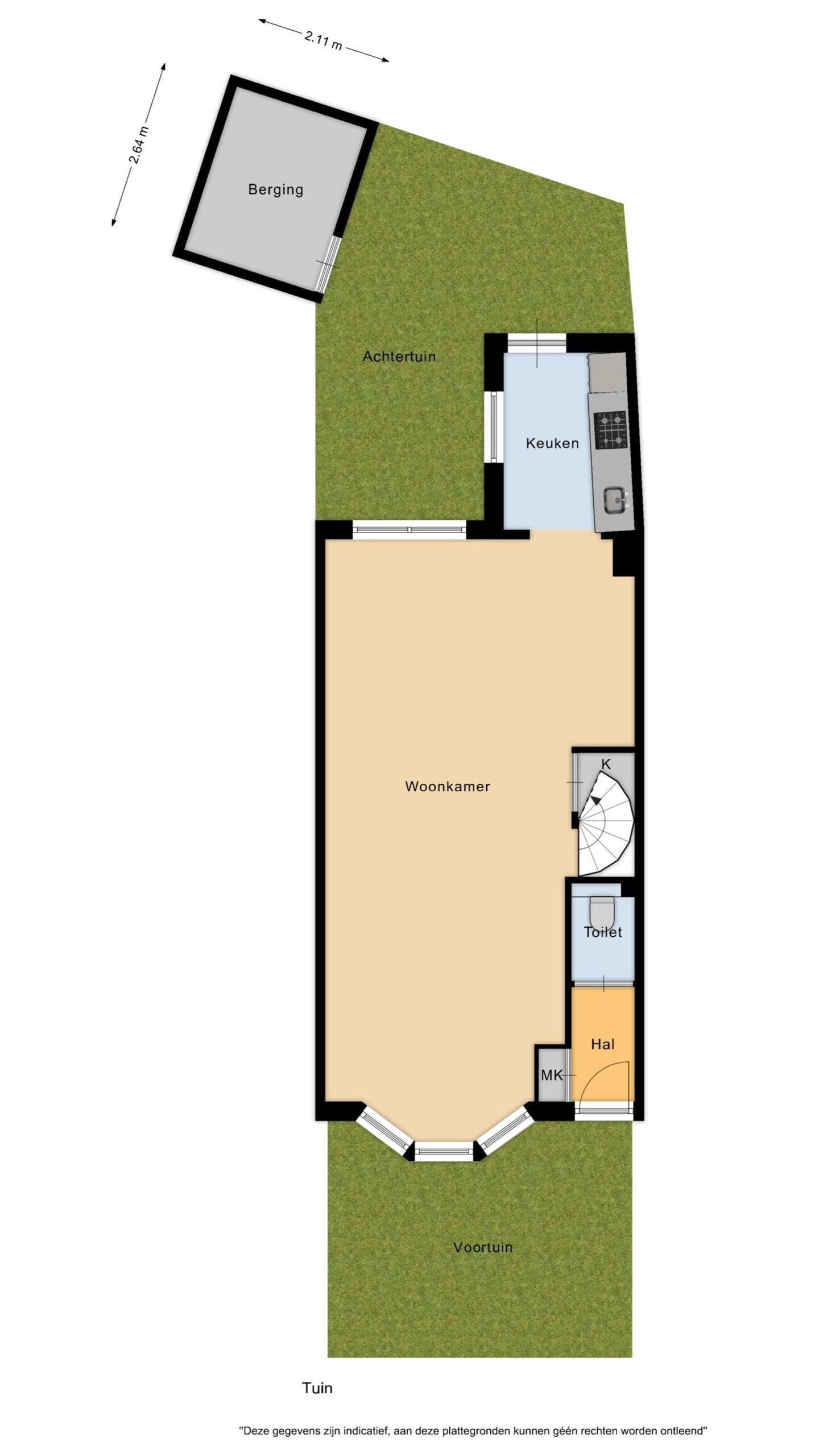
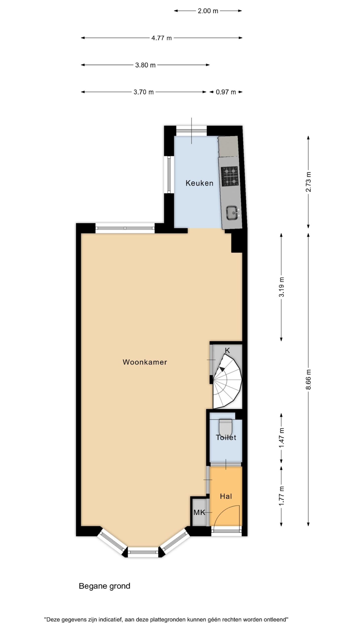
Begane grond:
Entree via de voordeur naar de hal met meterkast en toegang tot de ruime doorzonwoonkamer. Aan de voorzijde bevindt zich een erker met glas-in-loodramen, wat zorgt voor veel lichtinval en een karakteristieke uitstraling. In het midden van de woonkamer bevindt zich de trapopgang naar de eerste verdieping. Aan de achterzijde ligt de keuken, met een deur naar de achtertuin waar zich tevens een berging en een achterom bevinden.

Eerste verdieping:
Overloop met toegang tot twee ruime slaapkamers en de badkamer. De badkamer is voorzien van een inloopdouche, wastafel, toilet en radiator.

Vliering:
Via een vlizotrap is de vliering bereikbaar, met extra bergruimte en de opstelplaats voor de cv-installatie.

Bijzonderheden:
– transport via Amson & Kolhoff Notarissen (projectnotaris)
– 8 zonnepanelen;
– dakkapel aan de voorzijde;
– 2 slaapkamers;
– energielabel D;
– loopafstand van het centrum Beverwijk.

Interesse in dit huis? Schakel direct je eigen NVM-aankoopmakelaar in.
Jouw NVM-aankoopmakelaar komt op voor jouw belang en bespaart je tijd, geld en zorgen.
Adressen van collega NVM-aankoopmakelaars vind je op Funda.

Alles over deze woning
Overdracht
Prijs€ 300.000 k.k.
StatusVerkocht
AanvaardingIn overleg
Aangeboden sinds14 oktober 2025
Bouw
Type objectWoonhuis
SoortEengezinswoning
TypeTussenwoning
Bouwjaar1933
Dak typeZadeldak
IsolatievormenGedeeltelijk dubbelglas
Oppervlaktes en inhoud
Perceel100 m2
Woonoppervlakte87 m2
Inhoud334 m3
Buitenruimtes gebouwgebonden of vrijstaand0 m2
Tuinoppervlakte44 m2
Indeling
Aantal kamers3
Aantal slaapkamers2
Locatie
LiggingAan rustige weg, In woonwijk
Tuin
TypeAchtertuin
StaatNormaal
LiggingNoordwest
AchteromJa
Uitrusting
Soorten warm waterCV ketel
Parkeer faciliteitenOpenbaar parkeren
Virtuele tour
Ik ben Lars Verhoef, NVM Register Makelaar-Taxateur/ Regiomanager bij Brantjes Beverwijk. Het plannen van een bezichtiging is de eerste stap in de zoektocht naar jouw droomhuis. Ik kijk ernaar uit je binnenkort te ontmoeten en je te helpen bij het vinden van jouw nieuwe thuis!

Plattegronden

Verken de locatie Munnikenweg 86
Ik ben Lars Verhoef, NVM Register Makelaar-Taxateur/ Regiomanager bij Brantjes Beverwijk. Het plannen van een bezichtiging is de eerste stap in de zoektocht naar jouw droomhuis. Ik kijk ernaar uit je binnenkort te ontmoeten en je te helpen bij het vinden van jouw nieuwe thuis!