Ga naar content

Midgard 55

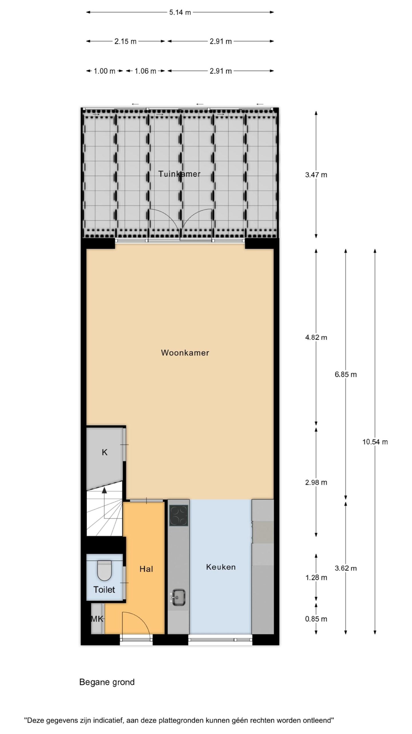
  • 133 m2 woonoppervlakte
  • 4 slaapkamers
  • Bouwjaar 2006
  • 155 m2 perceel

Ontdek deze schitterende tussenwoning in de geliefde Broekpolder in Beverwijk – een uniek aanbod dat u niet mag missen! Gelegen aan Midgard 55 is deze gebouwde woning uit 2006 de afgelopen jaren volledig gerenoveerd en verkeert volledig in topconditie.

De renovatie is tot in de details uitgevoerd:
• Aan de achterzijde is een prachtige glazen tuinkamer gerealiseerd, die zorgt voor een oase van licht en rust.
• De badkamer en keuken zijn volledig vernieuwd en modern ingericht.
• Zowel de begane grond als de trap zijn voorzien van stijlvolle PVC vloeren en de wanden zijn professioneel gestuct, wat de warme uitstraling van de woning versterkt. De 1e verdieping is voorzien van een laminaatvloer en de 2e verdieping heeft vloerbedekking.
• Daarnaast maken maar liefst 8 zonnepanelen de woning extra duurzaam en energiezuinig.

De woning heeft een royale woonoppervlakte van 133 m². U geniet tevens van een fraaie tuinkamer van circa 19 m² en 9 m² externe bergruimte. Het perceel van 155 m² geeft voldoende ruimte voor ontspanning en eventueel buitenactiviteiten.

Praktische details op een rijtje:
• Bouwjaar: 2006
• Vernieuwde keuken en badkamer
• Fraaie zo goed als nieuwe markies zonwering aan de voorzijde keukenraam
• 1e en 2e verdieping voorzien van rolluiken.
• Daken: schuurdak (plafond) vernieuwd in 2011 en overige daken uit 2006
• Buitenkozijnen: van hout, in 2023 professioneel geschilderd
• Isolatie: voorzien van isolerende HR++ beglazing
• CV-installatie: Intergas HRE 36-30 A bouwjaar 2024, recent onderhouden op 21-03-2024
• Verbouwingen: schuur vergroot in 2011 en de glazen tuinkamer gerealiseerd in augustus 2019

Bent u op zoek naar een ruime, instapklare woning met een perfecte mix van comfort, modernisering en karakter? Dan is Midgard 55 in Beverwijk echt iets voor u! Plan snel een bezichtiging en laat u verrassen door deze smaakvol gerenoveerde tussenwoning.

Interesse in dit huis? Schakel direct je eigen NVM-aankoopmakelaar in.
Jouw NVM-aankoopmakelaar komt op voor jouw belang en bespaart je tijd, geld en zorgen.
Adressen van collega NVM-aankoopmakelaars vind je op Funda.

Alles over deze woning
Overdracht
Prijs€ 545.000 k.k.
StatusVerkocht
AanvaardingIn overleg
Aangeboden sinds15 december 2025
Bouw
Type objectWoonhuis
SoortEengezinswoning
TypeTussenwoning
Bouwjaar2006
Dak typeSamengesteld dak
IsolatievormenVolledig geïsoleerd
Oppervlaktes en inhoud
Perceel155 m2
Woonoppervlakte133 m2
Inhoud475 m3
Buitenruimtes gebouwgebonden of vrijstaand19 m2
Indeling
Aantal kamers6
Aantal slaapkamers4
Locatie
LiggingAan rustige weg, In woonwijk
Tuin
TypeAchtertuin
LiggingNoordwest
AchteromJa
Uitrusting
Soorten warm waterCV ketel
Parkeer faciliteitenOpenbaar parkeren
Virtuele tour
Ik ben Marnix Bartelink, NVM Register Makelaar-Taxateur/ Vestigingsmanager bij Brantjes Velsen. Het plannen van een bezichtiging is de eerste stap in de zoektocht naar jouw droomhuis. Ik kijk ernaar uit je binnenkort te ontmoeten en je te helpen bij het vinden van jouw nieuwe thuis!

Plattegronden

Verken de locatie Midgard 55
Ik ben Marnix Bartelink, NVM Register Makelaar-Taxateur/ Vestigingsmanager bij Brantjes Velsen. Het plannen van een bezichtiging is de eerste stap in de zoektocht naar jouw droomhuis. Ik kijk ernaar uit je binnenkort te ontmoeten en je te helpen bij het vinden van jouw nieuwe thuis!