Ga naar content

Maerelaan 9

  • 79 m2 woonoppervlakte
  • 2 slaapkamers
  • Bouwjaar 1998

Ben je op zoek naar een ruimtelijk en licht appartement met de mogelijkheid het geheel nog naar eigen smaak in te richten? Grijp dan nu deze kans

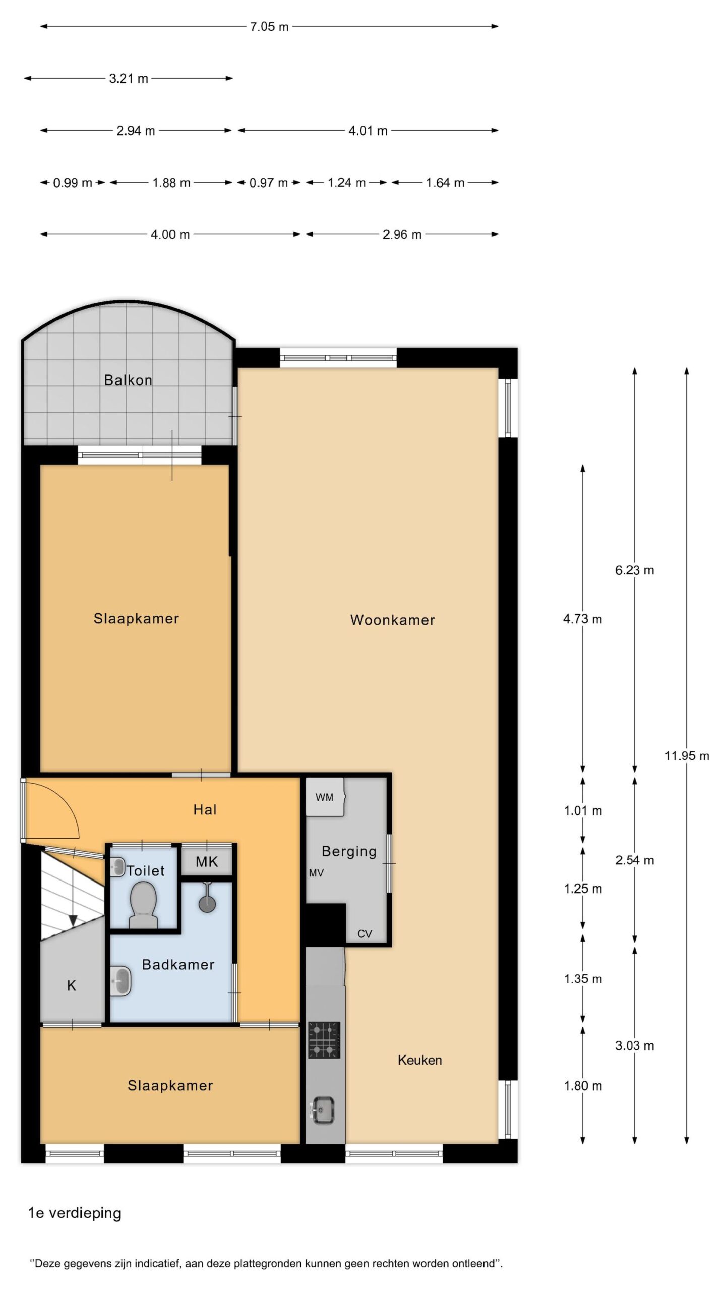
Deze ruime maisonnette met energielabel B staat middenin het gezellige centrum van Heemskerk en biedt volop mogelijkheden. Het appartement bevindt zich in een verzorgd appartementencomplex met liftinstallatie en is goed ingedeeld. Zo krijg je de beschikking over een lichte woonkamer, een open keuken met inbouwapparatuur, een berging met wasruimte, twee goede slaapkamers op de woonetage en nog een grote onbenoemde ruimte op de verdieping (mogelijkheid tot realiseren slaapkamer), een separaat toilet, een nette badkamer en een zonnig balkon op het zuidoosten. Op de begane grond van het appartementencomplex bevindt zich tevens een praktische inpandige berging.

De uitstekende, centrale ligging zorgt ervoor dat alle dagelijkse voorzieningen zoals diverse supermarkten, een bakker en een slager op loopafstand bereikbaar zijn.

Zie jij jezelf hier al wonen? Neem dan snel contact met ons op voor het inplannen van een bezichtiging. 

Bouwjaar: 1998
Gebruiksoppervlak woonfunctie: ca. 79 m2
Overige inpandige ruimte: ca. 31 m2
Gebouwgebonden buitenruimte: ca. 6 m2
Externe bergruimte: 5 m2
Inhoud: ca. 325 m3
Energielabel: B

Bijzonderheden:
– middenin het gezellige centrum van Heemskerk;
– het appartementencomplex is voorzien van een lift;
– gelegen op de eerste en tweede verdieping;
– zonnig balkon van ca. 6 m² op het zuidoosten;
– royale woonkamer met toegang tot het balkon;
– keurige keuken met inbouwapparatuur;
– twee goede slaapkamers op de 1e verdieping en mogelijkheid tot realiseren van derde kamer op 2e verdieping;
– praktische bergruimte met opstelling voor wasmachine/droger;
– neutrale badkamer met inloopdouche en wastafel;
– het gehele appartement is voorzien van een laminaatvloer;
– eigen berging op de begane grond van ca. 5 m2;
– Intergas cv-ketel uit 2018;
– servicekosten bedragen ca. € 398,46,- per maand;
– openbaar parkeren;
– uitvalswegen en openbaar vervoer nabij;
– transport dient plaats te vinden bij een door NL Notariaat toegewezen notaris;

Interesse in dit huis? Schakel direct je eigen NVM-aankoopmakelaar in. Jouw NVM-aankoopmakelaar komt op voor jouw belang en bespaart je tijd, geld en zorgen. Adressen van collega NVM-aankoopmakelaars vind je op Funda.

Alles over deze woning
Overdracht
Prijs€ 475.000 k.k.
StatusBeschikbaar
AanvaardingIn overleg
Aangeboden sinds4 november 2025
Bouw
Type objectAppartement
Bouwjaar1998
SoortMaisonnette
Woonlaag1
Dak typeZadeldak
IsolatievormenDakisolatie, Muurisolatie, Vloerisolatie, Dubbelglas, Volledig geïsoleerd
Oppervlaktes en inhoud
Woonoppervlakte79 m2
Inhoud325 m3
Buitenruimtes gebouwgebonden of vrijstaand5 m2
Indeling
Aantal kamers3
Aantal slaapkamers2
Locatie
LiggingIn centrum
Tuin
AchteromNee
Uitrusting
Soorten warm waterCV ketel
Parkeer faciliteitenOpenbaar parkeren
Virtuele tour
Ik ben Raymond Westra, NVM Register Makelaar bij Brantjes Heemskerk. Het plannen van een bezichtiging is de eerste stap in de zoektocht naar jouw droomhuis. Ik kijk ernaar uit je binnenkort te ontmoeten en je te helpen bij het vinden van jouw nieuwe thuis!

Plattegronden

Verken de locatie Maerelaan 9
Ik ben Raymond Westra, NVM Register Makelaar bij Brantjes Heemskerk. Het plannen van een bezichtiging is de eerste stap in de zoektocht naar jouw droomhuis. Ik kijk ernaar uit je binnenkort te ontmoeten en je te helpen bij het vinden van jouw nieuwe thuis!