Ga naar content

Luxemburglaan 317

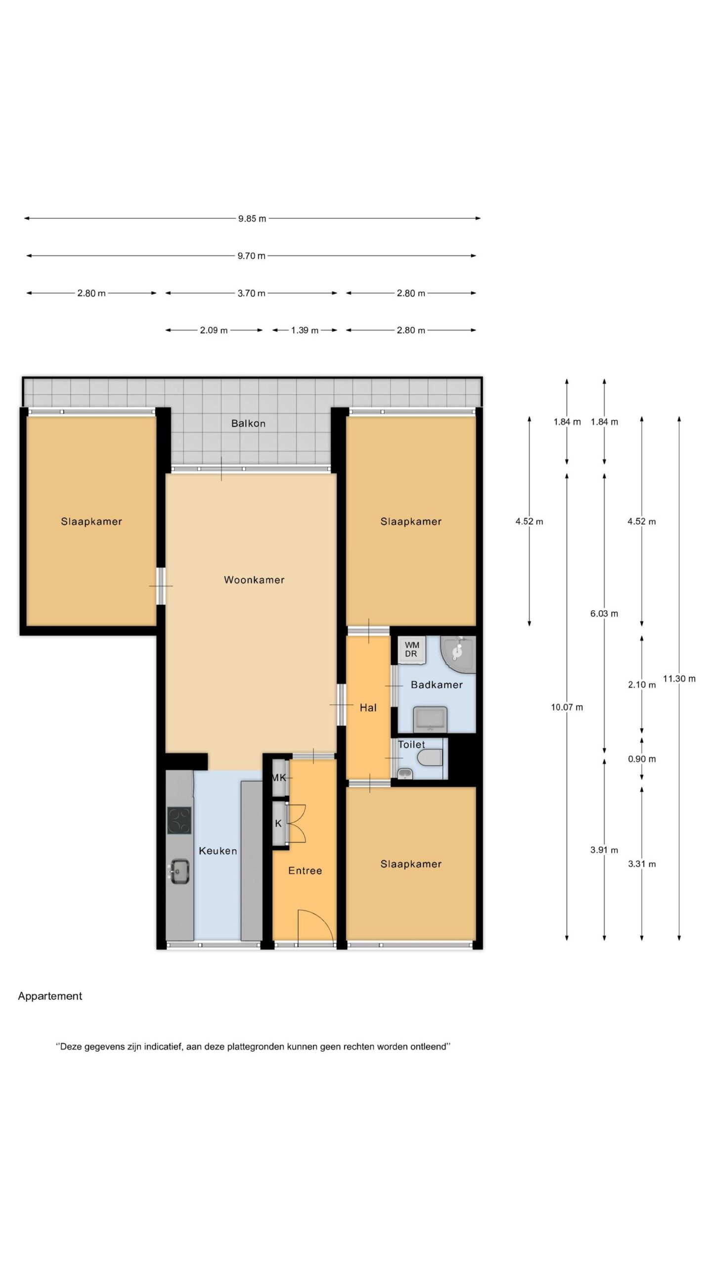
  • 84 m2 woonoppervlakte
  • 3 slaapkamers
  • Bouwjaar 1970

Een prachtig gelegen vierkamerappartement op de eerste woonlaag met balkon op het zuidwesten. Het appartement beschikt over een ruime woonkamer met aangrenzend een luxe, open keuken voorzien van inbouwapparatuur (o.a. vaatwasser, koelkast, vriezer en oven), in totaal drie ruime slaapkamers, een keurige vernieuwde badkamer en een afzonderlijk toilet. Het gehele appartement is netjes afgewerkt met een laminaatvloer en mooie kunststof tegels op het balkon. Het complex is voorzien van een afgesloten entree met intercom, liftinstallatie en een grote berging in de onderbouw. Het winkelcentrum Europaplein en het NS-station van Heemskerk bevinden zich op loopafstand.

Ben je op zoek naar een ruim en keurig afgewerkt appartement waar je zo in kunt? Van harte welkom om dit appartement te komen bezichtigingen, de woning zal je bij binnenkomst verrassen!

Bouwjaar: ca. 1970
Inhoud: ca. 250 m3
Woonoppervlakte: ca. 83 m2

Bijzonderheden:
– keurig afwerkingsniveau en zo te betrekken;
– 3 slaapkamers aanwezig;
– energiezuinig appartement met verrassend lage stookkosten;
– de servicekosten bedragen thans €270,- per maand en €72,- voor voorschot stookkosten (hoge inschatting t.o.v. het verbruik);
– uitzicht over groen;
– zeer zonnig balkon op het zuidwesten;
– de keuken is vernieuwd (2019);
– de badkamer is recent vernieuwd (2022);
– gehele appartement voorzien van dubbele beglazing (HR++ glas en dubbel glas);
– veel parkeergelegenheid voor de deur;
– afgesloten ruime berging in de onderbouw.

Interesse in dit huis? Schakel direct je eigen NVM-aankoopmakelaar in.
Jouw NVM-aankoopmakelaar komt op voor jouw belang en bespaart je tijd, geld en zorgen.
Adressen van collega NVM-aankoopmakelaars vind je op Funda.

Alles over deze woning
Overdracht
Prijs€ 299.000 k.k.
StatusVerkocht
AanvaardingIn overleg
Aangeboden sinds13 januari 2026
Bouw
Type objectAppartement
Bouwjaar1970
SoortGalerijflat
Woonlaag1
Dak typePlat dak
IsolatievormenDubbelglas
Oppervlaktes en inhoud
Woonoppervlakte84 m2
Inhoud271 m3
Buitenruimtes gebouwgebonden of vrijstaand10 m2
Indeling
Aantal kamers4
Aantal slaapkamers3
Locatie
LiggingAan rustige weg, Vrij uitzicht
Tuin
AchteromNee
Uitrusting
Soorten warm waterCentrale voorziening
Parkeer faciliteitenOpenbaar parkeren
Virtuele tour
Ik ben Denise Numan, NVM Makelaar bij Brantjes Heemskerk. Het plannen van een bezichtiging is de eerste stap in de zoektocht naar jouw droomhuis. Ik kijk ernaar uit je binnenkort te ontmoeten en je te helpen bij het vinden van jouw nieuwe thuis!

Plattegronden

Verken de locatie Luxemburglaan 317
Ik ben Denise Numan, NVM Makelaar bij Brantjes Heemskerk. Het plannen van een bezichtiging is de eerste stap in de zoektocht naar jouw droomhuis. Ik kijk ernaar uit je binnenkort te ontmoeten en je te helpen bij het vinden van jouw nieuwe thuis!