Ga naar content

Lijzijde 28

  • 94 m2 woonoppervlakte
  • 2 slaapkamers
  • Bouwjaar 1977
  • 125 m2 perceel

Tot in de puntjes verzorgd, dat is deze volledig gemoderniseerde tussenwoning in Amsterdam-Noord. Een huis waar met zorg en aandacht is gewoond: eigentijds, strak afgewerkt en energiezuinig.

Alle ramen zijn voorzien van kunststof kozijnen met triple glas, er zijn tien zonnepanelen aanwezig, de wanden zijn netjes gestuukt en diverse elementen zoals het plafond, de vloeren en de trap zijn vernieuwd. Kortom: een woning die helemaal klaar is voor de toekomst.

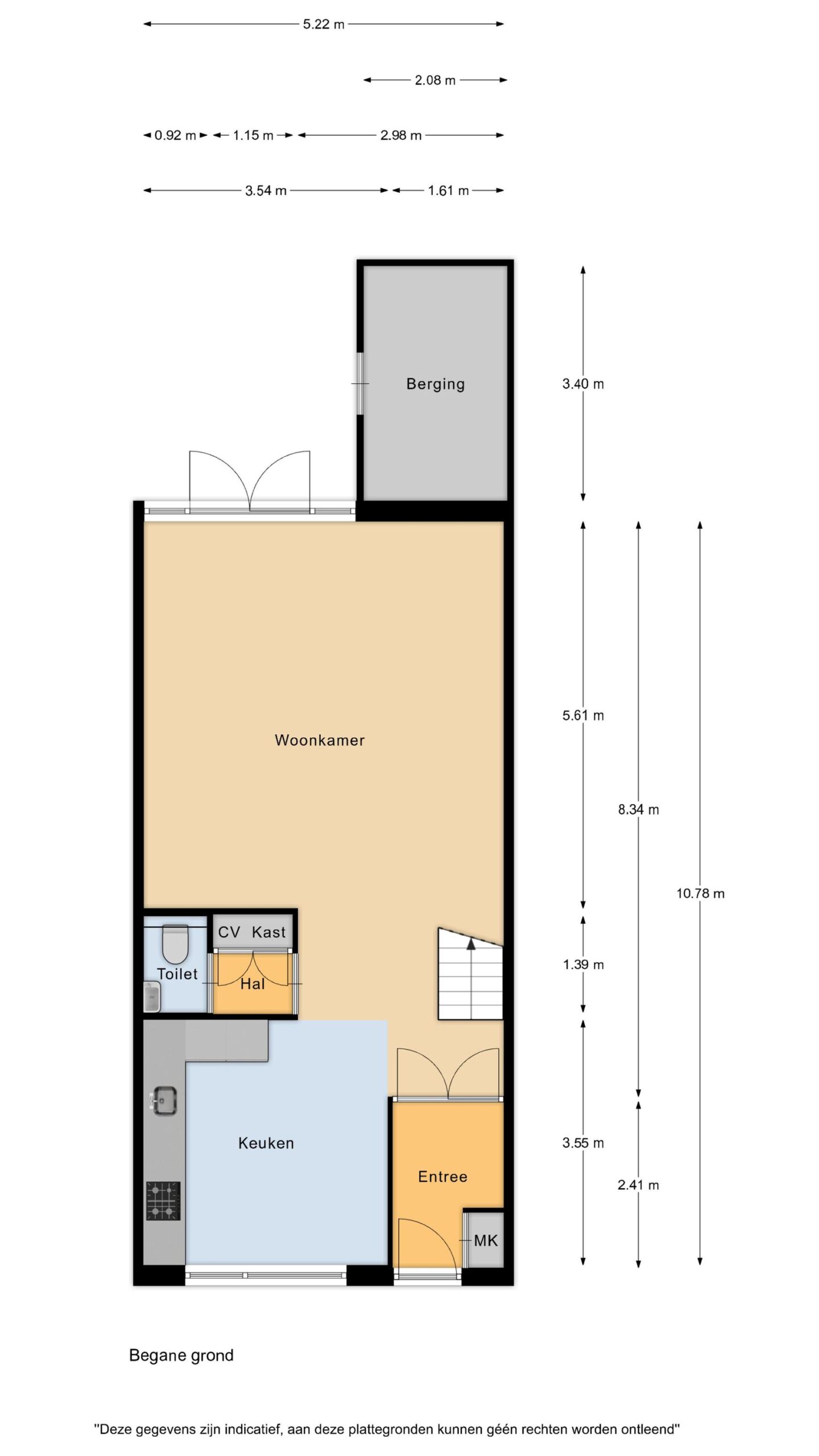
Bij binnenkomst in een stijlvolle hal word je naar de woonkamer geleid, waar de aangename vloerverwarming samen met de indrukwekkende vide, het vrije zicht op de achtertuin en de lichte afwerking direct een ruimtelijk gevoel creëert. Aan de voorzijde bevindt zich de moderne open keuken (2022), uitgevoerd in een luxe, tijdloze stijl en uitgerust met hoogwaardige Siemens StudioLine apparatuur. Denk aan een inductiekookplaat met geïntegreerde afzuiging, een volautomatische koffiemachine, combi-oven, koel-vriescombinatie en een Quooker. Een fijne plek waar koken echt een plezier wordt.

Via de openslaande tuindeur, met dubbele hordeuren, aan de achterzijde stap je zo de tuin in. De achtertuin is netjes aangelegd, biedt veel privacy en beschikt over een afsluitbare achterom. Een heerlijke plek om te genieten van de ochtendzon of van lange, zwoele zomeravonden. Daarnaast is er een praktische inpandige berging en voor het terras is elektrische zonwering aanwezig voor extra verkoeling.

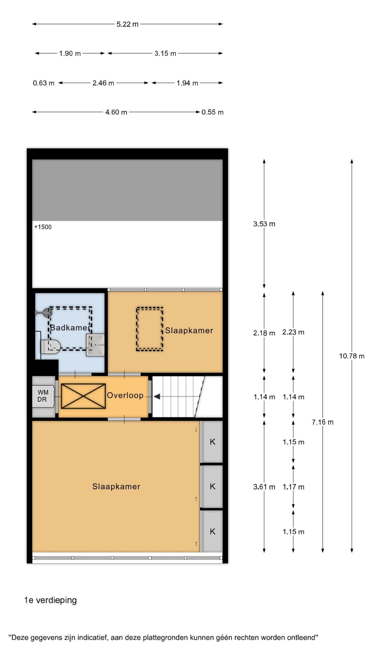
Op de eerste verdieping vind je twee slaapkamers, waarvan de master (voorheen twee slaapkamers) een verrassend royaal formaat heeft. Bovendien is er de mogelijkheid om een derde slaapkamer te creëren door een verdiepingsvloer in de vide te plaatsen. De badkamer (2020) is modern en comfortabel, voorzien van vloerverwarming, een ruime (regen)douche, een strak wastafelmeubel en een toilet. Alles oogt fris en eigentijds. Tot slot is er nog een vliering die extra bergruimte biedt.

Of je nu waarde hecht aan sfeervol wonen, duurzaamheid of zorgeloos genieten in een onderhoudsvriendelijke tuin: Lijzijde 28 biedt het allemaal. Deze woning is volledig toekomstklaar. Ben jij degene die hier zijn nieuwe thuis van maakt? Neem contact op met Brantjes voor een bezichtiging!

– Bouwjaar: 1977
– Woonoppervlakte: 94 m²
– Perceeloppervlakte: 125 m²
– Energielabel: A

Lijzijde 28 ligt in een rustige, kindvriendelijke woonwijk in Amsterdam-Noord, met volop groen, speelplekken en diverse voorzieningen in de buurt. Binnen enkele minuten bereik je winkels, scholen en het openbaar vervoer. Het centrum van Amsterdam ligt op fietsafstand en via de IJtunnel ben je zo op de ring A10.

De buurt staat bekend om haar vriendelijke karakter en goede bereikbaarheid, ideaal voor wie graag rustig woont, maar toch dichtbij de stad wil zijn. Parkeren kan hier met een bewonersvergunning (vanaf november 2025).

Bijzonderheden:
– Volledig geïsoleerde woning (dak-, vloer-, en muurisolatie);
– Driedubbel glas, kunststof kozijnen;
– Luxe keuken (2022) met Siemens StudioLine apparatuur;
– Moderne badkamer (2020) met vloerverwarming;
– Zonnepanelen (10 stuks, 2018);
– CV-installatie Remeha Calenta ACE (2018);
– Vernieuwde meterkast (2018);
– Voorzijde van de woning heeft elektrische screens, dienen als zonwering en hor;
– De dakramen in de badkamer en de vide-kamer zijn uitgerust met een regensensor, elektrische bedienbaar en beschikken over een elektrische zonwering;
– Afsluitbare achterom en ruime berging;
– Rustige, groene en goed bereikbare wijk;
– De erfpacht loopt af per 31-03-2026 en is eeuwigdurend vastgezet. De jaarlijkse canon bedraagt: €707,57, en wordt jaarlijks geïndexeerd conform inflatie.

Heb je interesse in dit huis? Schakel direct jouw eigen NVM-aankoopmakelaar in. Jouw NVM-aankoopmakelaar staat voor je belangen en bespaart je tijd, geld en zorgen. Adressen van collega NVM-aankoopmakelaars vind je op Funda.

Alles over deze woning
Overdracht
Prijs€ 625.000 k.k.
StatusVerkocht onder voorbehoud
AanvaardingIn overleg
Aangeboden sinds20 november 2025
Bouw
Type objectWoonhuis
SoortEengezinswoning
TypeTussenwoning
Bouwjaar1977
Dak typeZadeldak
IsolatievormenDakisolatie, Muurisolatie, Vloerisolatie, Driedubbel glas
Oppervlaktes en inhoud
Perceel125 m2
Woonoppervlakte94 m2
Inhoud400 m3
Buitenruimtes gebouwgebonden of vrijstaand0 m2
Tuinoppervlakte61 m2
Indeling
Aantal kamers3
Aantal slaapkamers2
Locatie
LiggingIn woonwijk
Tuin
TypeAchtertuin
StaatFraai aangelegd
LiggingNoordwest
AchteromJa
Uitrusting
Soorten warm waterCV ketel
Parkeer faciliteitenOpenbaar parkeren
Virtuele tour
Ik ben Kevin Trompert, NVM Makelaar bij Brantjes Assendelft. Het plannen van een bezichtiging is de eerste stap in de zoektocht naar jouw droomhuis. Ik kijk ernaar uit je binnenkort te ontmoeten en je te helpen bij het vinden van jouw nieuwe thuis!

Plattegronden

Verken de locatie Lijzijde 28
Ik ben Kevin Trompert, NVM Makelaar bij Brantjes Assendelft. Het plannen van een bezichtiging is de eerste stap in de zoektocht naar jouw droomhuis. Ik kijk ernaar uit je binnenkort te ontmoeten en je te helpen bij het vinden van jouw nieuwe thuis!