Ga naar content

Korte Lakenstraat 13

Multi functionele ruimte midden in de Vijfhoek van Haarlem.

Aan de Korte Lakenstraat nummer 13 hebben wij een multifunctionele ruimte in de verkoop. Of je nou op zoek bent naar een ruimte voor het stallen van je auto of fiets of het uitoefenen van je bedrijf of de ruimte wilt gebruiken voor opslag. Het kan hier allemaal!

Met zijn centrale ligging en moderne voorzieningen biedt deze garage enorm veel potentieel. Een investering die niet alleen praktisch maar ook waardevol is in het bruisende Haarlem!

Kenmerken:
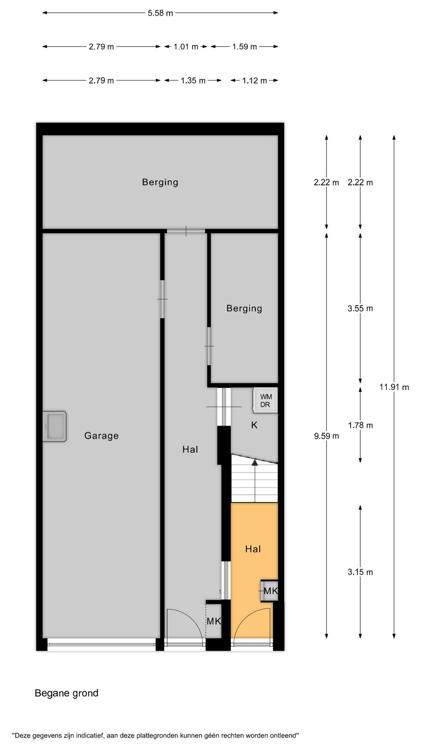
– Ruimte: Een riante ruimte van 61 m². Geschikt voor bijvoorbeeld meerdere voertuigen, grote opslag of een praktische werkruimte.
– Comfort: Voorzien van eigen water en elektra-aansluitingen met een eigen groepenkast.
– Gebruiksgemak: Moderne elektrisch bedienbare overheaddeur, gemakkelijk te bedienen met afstandsbediening.
– Praktische locatie: Gelegen aan de Korte Lakenstraat in het centrum (vijfhoek) van Haarlem, een uitstekende, zeer populaire en centraal gelegen plek.
– Extra’s: Geschikt voor zowel particulieren als kleine ondernemers, dankzij de veelzijdige mogelijkheden.

Bestemming: Gemengd – 2: Wonen, bedrijven of bedrijfsactiviteiten van categorie B.

Het omzetten van de bestemming naar wonen is onmogelijk. De regelgeving van de gemeente Haarlem voor het omzetten van de bestemming maken het onmogelijk.

Naast de mogelijkheden voor eigen gebruik, is de ruimte ook zeer geschikt voor verhuur of deelverhuur. In de afgelopen jaren is de ruimte in delen verhuurd geweest. Door de open constructie is de ruimte naar eigen wens in te delen en beschikbaar te stellen. De maandelijkse huurinkomsten van het afgelopen jaar lagen met 4 verhuur eenheden op € 832,- per maand. Wij denken aan een combinatie van je auto(s) binnen parkeren en de overige ruimtes verhuren?! Uiteraard is dit naar eigen inzicht verder in te vullen. Wij denken graag met je mee.

Financieren? Ook hier zijn meerdere mogelijkheden voor. Neem contact met ons op dan helpen we je graag verder.

Alles over deze woning
Overdracht
Prijs€ 225.000 k.k.
StatusBeschikbaar
AanvaardingIn overleg
Aangeboden sinds7 juli 2025
Bouw
Type objectOverig OG
Oppervlaktes en inhoud
Inhoud0 m3
Tuinoppervlakte0 m2
Ik ben Marnix Bartelink, NVM Register Makelaar-Taxateur/ Vestigingsmanager bij Brantjes Velsen. Het plannen van een bezichtiging is de eerste stap in de zoektocht naar jouw droomhuis. Ik kijk ernaar uit je binnenkort te ontmoeten en je te helpen bij het vinden van jouw nieuwe thuis!

Plattegronden

Verken de locatie Korte Lakenstraat 13
Ik ben Marnix Bartelink, NVM Register Makelaar-Taxateur/ Vestigingsmanager bij Brantjes Velsen. Het plannen van een bezichtiging is de eerste stap in de zoektocht naar jouw droomhuis. Ik kijk ernaar uit je binnenkort te ontmoeten en je te helpen bij het vinden van jouw nieuwe thuis!