Ga naar content

Kolblei 22

  • 131 m2 woonoppervlakte
  • 5 slaapkamers
  • Bouwjaar 2004
  • 130 m2 perceel

Opgebouwde tussenwoning met A++-label – dit alles vind je in Plan Willis!

In het populaire en kindvriendelijke Plan Willis in Krommenie staat deze ruime en moderne tussenwoning met een in 2020 gerealiseerde dakopbouw. De woning combineert comfort, sfeer en energiezuinigheid op een ideale locatie. Met een woonoppervlakte van 131 m², vijf slaapkamers, een serre én een zonnig dakterras is dit een perfect gezinshuis.

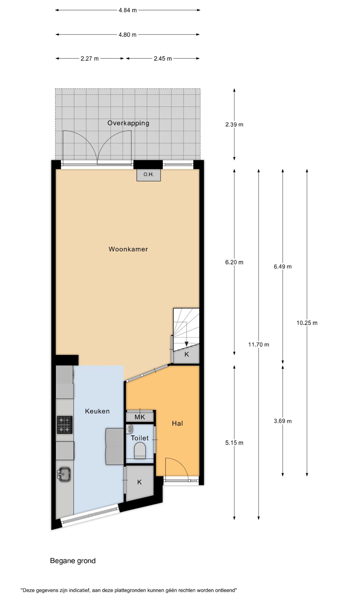
Bij binnenkomst stap je de lichte woonkamer in van ongeveer 30 m², waar de massieve eiken vloer direct warmte en karakter toevoegt. Dankzij de grote raampartijen en de openslaande deuren naar de tuin valt het daglicht rijkelijk binnen, waardoor de ruimte een open en uitnodigende sfeer heeft. Er is genoeg plek voor een royale zithoek én een grote eettafel – perfect om te ontspannen of lange avonden met familie en vrienden door te brengen.

Aan de voorzijde bevindt zich de verzorgde keuken met uitzicht op de rustige straat. De keuken is compleet uitgerust en in de afgelopen jaren grotendeels vernieuwd. Zo zijn de Quooker (2024), inductiekookplaat (2024), oven (2023) en vaatwasser (2025) recent geplaatst – alles om koken en dagelijks gebruik zo comfortabel mogelijk te maken. Het aanrechtblad biedt volop werkruimte.

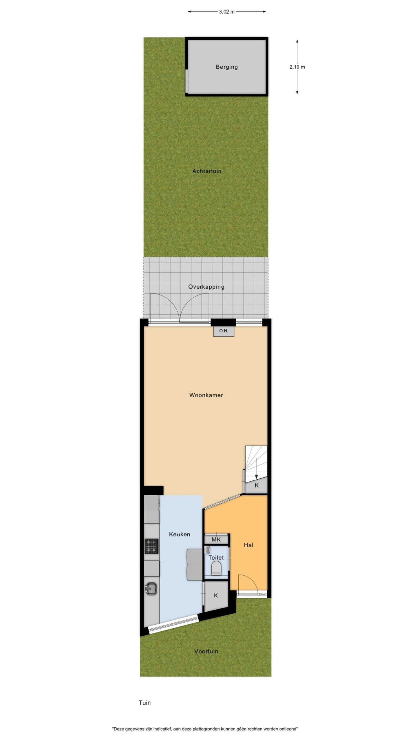
Via de openslaande deuren loop je de tuin in, waar je eerst uitkomt in de sfeervolle serre. Dankzij de verlichting is dit een heerlijke plek om het hele jaar door te zitten – beschut in de winter en open in de zomer,. Daarnaast ligt de tuin op het zuiden. De tuin is verzorgd aangelegd, met achterin een praktische berging voor fietsen, tuinspullen of gereedschap. Bovendien is er een achterom, zodat de tuin ook via de achterzijde te bereiken is.

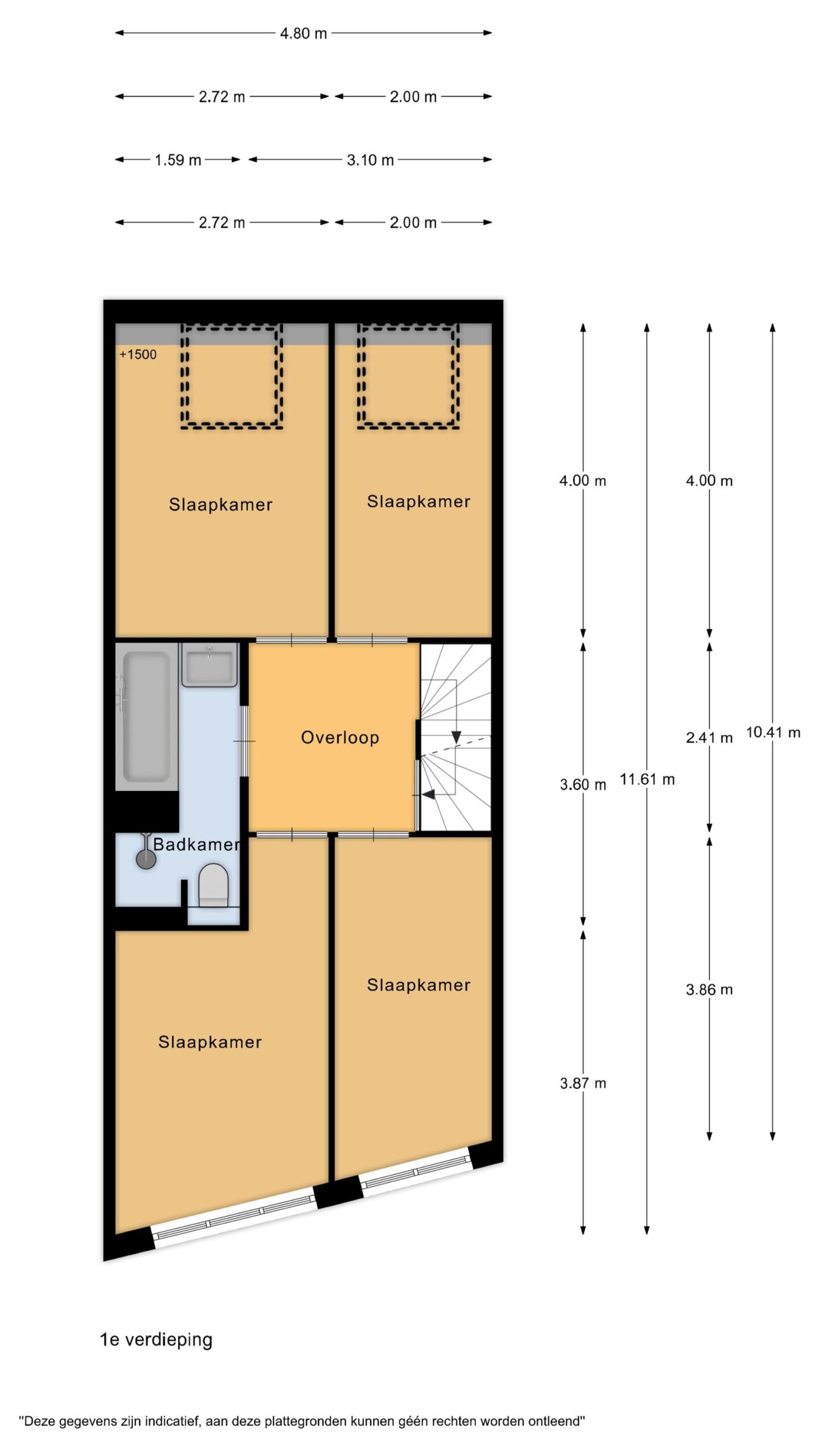
Op de eerste verdieping bevinden zich vier goed bemeten slaapkamers. Oorspronkelijk waren dit er drie, maar dankzij een slimme indeling is er een extra kamer gerealiseerd. Alle slaapkamers zijn licht, netjes afgewerkt en groot genoeg voor een bed, kast en eventueel een werkplek. De badkamer heeft een verzorgde en tijdloze uitstraling en is voorzien van een inloopdouche, ligbad, toilet en wastafel.

De tweede verdieping is in 2020 geplaatst en vormt nu de perfecte master bedroom. De ruimte is royaal, voorzien van airconditioning en heeft toegang tot een dakterras op het noorden – de ideale plek om in alle rust te genieten van de zon. Daarnaast is hier een aparte wasruimte aanwezig, praktisch weggewerkt maar gemakkelijk toegankelijk.

De woning is volledig geïsoleerd en beschikt over een nieuwe cv-ketel en tien zonnepanelen, wat bijdraagt aan een bijzonder gunstig energielabel A++. Dat betekent niet alleen lage energielasten, maar ook een aangenaam woonklimaat in elk seizoen.

– Bouwjaar: 2004
– Woonoppervlakte: 131 m²
– Perceeloppervlakte: 130 m² eigen grond
– Energielabel: A++

De woning is gelegen in de rustige, kindvriendelijke buurt van Plan Willis in Krommenie, waar kinderen veilig kunnen spelen en je kunt genieten van de rust. Alle voorzieningen zoals scholen, winkels en openbaar vervoer zijn binnen handbereik. Bovendien biedt de ligging aan het vaarwater unieke mogelijkheden voor recreatie en ontspanning. Plan Willis is strategisch gelegen met gemakkelijke toegang tot de belangrijkste snelwegen in de regio. Binnen enkele minuten ben je op de A8 en de A9, die directe verbindingen bieden naar grote steden zoals Amsterdam, Haarlem en Alkmaar.

Bijzonderheden:
– Ruime tussenwoning met dakopbouw in Plan Willis;
– De woning beschikt over vijf slaapkamers;
– Serre aan de woning waar je tot in de late uren kunt zitten;
– Keuken met diverse gemoderniseerde apparatuur;
– Dakterras gelegen op het noorden;
– Voorzien van tien zonnepanelen;
– Gelegen in een kindvriendelijke wijk;
– Oplevering in overleg.

Interesse in dit huis? Schakel direct je eigen NVM-aankoopmakelaar in. Jouw NVM-aankoopmakelaar komt op voor jouw belang en bespaart je tijd, geld en zorgen. Adressen van collega-NVM-aankoopmakelaars vind je op Funda.

Alles over deze woning
Overdracht
Prijs€ 500.000 k.k.
StatusBeschikbaar
AanvaardingIn overleg
Aangeboden sinds22 oktober 2025
Bouw
Type objectWoonhuis
SoortEengezinswoning
TypeTussenwoning
Bouwjaar2004
Dak typeSamengesteld dak
IsolatievormenDakisolatie, Muurisolatie, Vloerisolatie, Dubbelglas, Volledig geïsoleerd
Oppervlaktes en inhoud
Perceel130 m2
Woonoppervlakte131 m2
Inhoud462 m3
Buitenruimtes gebouwgebonden of vrijstaand16 m2
Tuinoppervlakte65 m2
Indeling
Aantal kamers6
Aantal slaapkamers5
Locatie
LiggingIn woonwijk
Tuin
TypeAchtertuin
StaatNormaal
LiggingZuid
AchteromJa
Uitrusting
Soorten warm waterCV ketel
Parkeer faciliteitenOpenbaar parkeren
Virtuele tour
Ik ben Corno Pronk, NVM Register Makelaar-Taxateur / Vestigingsmanager bij Brantjes Assendelft. Het plannen van een bezichtiging is de eerste stap in de zoektocht naar jouw droomhuis. Ik kijk ernaar uit je binnenkort te ontmoeten en je te helpen bij het vinden van jouw nieuwe thuis!

Plattegronden

Verken de locatie Kolblei 22
Ik ben Corno Pronk, NVM Register Makelaar-Taxateur / Vestigingsmanager bij Brantjes Assendelft. Het plannen van een bezichtiging is de eerste stap in de zoektocht naar jouw droomhuis. Ik kijk ernaar uit je binnenkort te ontmoeten en je te helpen bij het vinden van jouw nieuwe thuis!