Ga naar content

Kloosterstraat 23bene

  • 76 m2 woonoppervlakte
  • 3 slaapkamers
  • Bouwjaar 1928
  • 106 m2 perceel

Gelijkvloers wonen met een moderne afwerking, en dat midden in het centrum van Beverwijk?

Aan de Kloosterstraat ligt deze netjes afgewerkte en direct bewoonbare benedenwoning. Het huis combineert de karakteristieke uitstraling van het bouwjaar 1928 met het wooncomfort van vandaag. Dankzij de vloerverwarming door de hele woning voelt het overal aangenaam aan en de moderne afwerking zorgt ervoor dat je hier zonder verbouwingsplannen kunt intrekken. Een fijne, zorgeloze plek om meteen thuis te komen.

Bouwjaar: 1928
Woonoppervlakte: ca. 76 m2
Inhoud: 264 m3
Energielabel: A

Indeling:
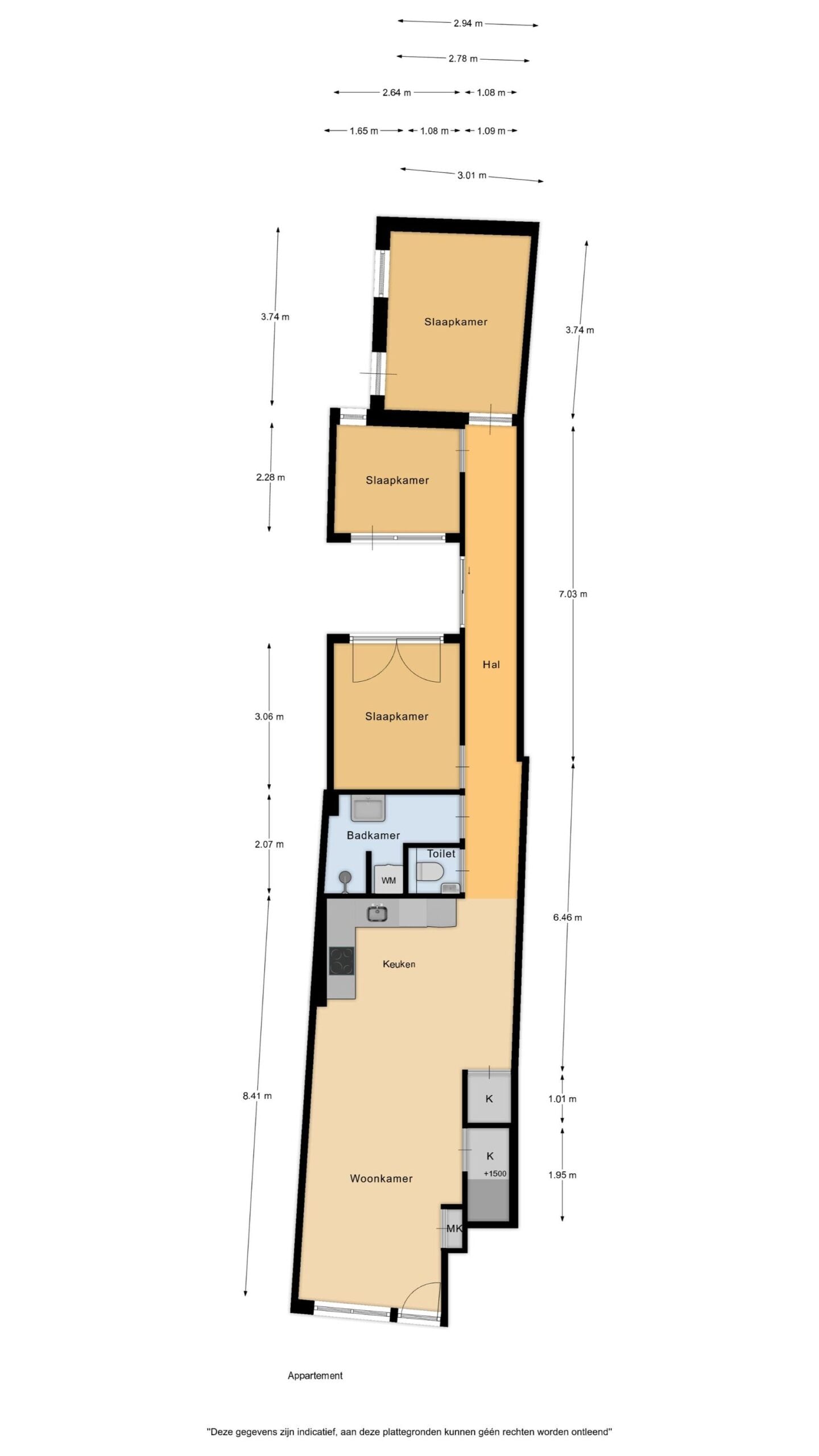
Je komt de woning binnen in de ruime woonkamer. Deze lichte en langgerekte ruimte biedt genoeg plek voor zowel een zitgedeelte als een eethoek. Aansluitend vind je de open keuken, die praktisch is ingericht en voorzien is van de belangrijkste voorzieningen.

Naast de keuken ligt de badkamer met douche, wastafel en de aansluiting voor de wasmachine. Het toilet bevindt zich apart, direct naast de badkamer.

Loop je verder de woning in, dan kom je bij de eerste slaapkamer. Deze kamer grenst aan een kleine tuin, waardoor er prettig licht naar binnen komt. De twee slaapkamers daarachter liggen aan de achterzijde van het huis en bieden allebei uitzicht op het groene stukje tuin. De grootste slaapkamer ligt helemaal achterin en voelt extra rustig en privé.

De woning is praktisch ingedeeld, met de woonruimte aan de voorzijde en de slaapvertrekken aan de rustige achterkant. Hierdoor woon je comfortabel en met voldoende privacy.

Bijzonderheden:
– instapklare benedenwoning;
– gehele woning voorzien van vloerverwarming;
– volledig geïsoleerd en daardoor energiezuinig (label A);
– voorzien van 6 zonnepanelen;
– drie slaapkamers;
– servicekosten € 180,- per maand;
– moderne afwerking en comfortabele leefruimte;
– gelegen in het centrum, voorziening op loofafstand.

Interesse in dit huis? Schakel direct je eigen NVM-aankoopmakelaar in.
Jouw NVM-aankoopmakelaar komt op voor jouw belang en bespaart je tijd, geld en zorgen.
Adressen van collega NVM-aankoopmakelaars vind je op Funda.

Alles over deze woning
Overdracht
Prijs€ 335.000 k.k.
StatusBeschikbaar
AanvaardingIn overleg
Aangeboden sinds10 december 2025
Bouw
Type objectAppartement
Bouwjaar1928
SoortBenedenwoning
Woonlaag0
Dak typePlat dak
IsolatievormenVolledig geïsoleerd
Oppervlaktes en inhoud
Perceel106 m2
Woonoppervlakte76 m2
Inhoud264 m3
Buitenruimtes gebouwgebonden of vrijstaand0 m2
Tuinoppervlakte7 m2
Indeling
Aantal kamers4
Aantal slaapkamers3
Locatie
LiggingAan rustige weg, In centrum, In woonwijk
Tuin
TypePatio atrium
StaatVerzorgd
LiggingNoordoost
AchteromNee
Uitrusting
Soorten warm waterElektrische boiler eigendom
Parkeer faciliteitenOpenbaar parkeren, Parkeervergunningen
Virtuele tour
Ik ben Lars Verhoef, NVM Register Makelaar-Taxateur/ Regiomanager bij Brantjes Beverwijk. Het plannen van een bezichtiging is de eerste stap in de zoektocht naar jouw droomhuis. Ik kijk ernaar uit je binnenkort te ontmoeten en je te helpen bij het vinden van jouw nieuwe thuis!

Plattegronden

Verken de locatie Kloosterstraat 23bene
Ik ben Lars Verhoef, NVM Register Makelaar-Taxateur/ Regiomanager bij Brantjes Beverwijk. Het plannen van een bezichtiging is de eerste stap in de zoektocht naar jouw droomhuis. Ik kijk ernaar uit je binnenkort te ontmoeten en je te helpen bij het vinden van jouw nieuwe thuis!