Ga naar content

Kervelstraat 14

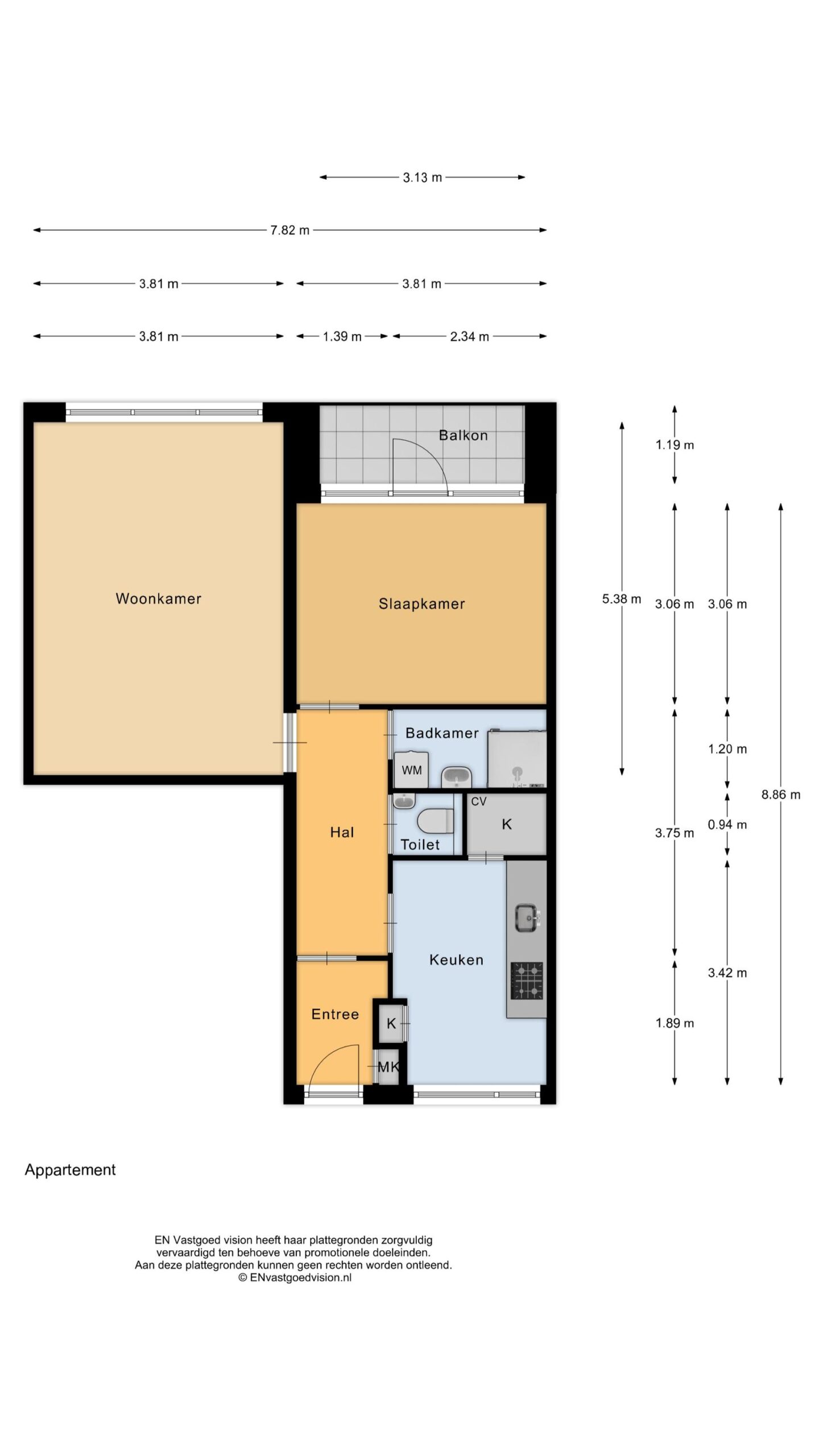
  • 55 m2 woonoppervlakte
  • 1 slaapkamers
  • Bouwjaar 1967

Comfortabel wonen met zonnig balkon aan de Kervelstraat 14 in Krommenie!

Aan de Kervelstraat in het gezellige Krommenie staat dit fijne en goed ingedeelde tweekamerappartement. Een heerlijke plek voor starters, singles of stellen die op zoek zijn naar een appartement met balkon én een praktische indeling.

Wanneer je binnenkomt, lopen we via de hal door naar de woonkamer. Met een oppervlakte van circa 20 m² geniet je hier van een verrassend ruime leefruimte met plek voor zowel een comfortabele zithoek als een eettafel. Dankzij de grote raampartijen valt er lekker veel daglicht naar binnen, wat zorgt voor een fijne, lichte sfeer.

Aan de voorzijde bevindt zich de keuken. Deze is praktisch opgezet, voorzien van veel opbergruimte en ideaal om dagelijks te koken. De nette badkamer beschikt over een douche, die eenvoudig om te bouwen is tot inloopdouche. Het toilet is separaat, wel zo prettig.

De slaapkamer heeft een goede maat en biedt voldoende ruimte voor een groot bed én een kastenwand. Aangrenzend ligt het balkon, jouw eigen buitenruimte om te ontspannen. Het balkon is gelegen op het zuidoosten, wat betekent dat je hier al in de ochtend kunt genieten van de zon en deze tot in de middag lekker blijft hangen. Ideaal voor een ontbijtje in de zon, een kop koffie of juist om met mooi weer heerlijk buiten te zitten.

Daarnaast beschikt het appartement over een externe berging. Perfect voor het stallen van fietsen, seizoenspullen of gereedschap – altijd handig om wat extra ruimte te hebben!

Klinkt dit als jouw volgende thuis? Wacht dan niet te lang en plan snel een bezichtiging!

– Bouwjaar: 1967
– Woonoppervlakte: 55 m²
– Energielabel: C
– Balkon: circa 5 m² gelegen op het Zuid Oosten

Op loopafstand van het appartement bevinden zich diverse supermarkten en speciaalzaken, waardoor dagelijkse boodschappen gemakkelijk te doen zijn. De dorpskern van Krommenie biedt een breed scala aan diverse winkels, variërend van boetieks tot verswinkels, waardoor je een ruime keuze hebt aan producten en diensten. Met een korte fietstocht van vijf minuten bereik je station Krommenie-Assendelft, waarvandaan je de trein kunt nemen die je in 12 minuten naar Zaandam en in 23 minuten naar Amsterdam Centraal brengt. Ook met de auto zijn omliggende steden uitstekend bereikbaar. Binnen maximaal 25 minuten rijd je naar steden zoals Amsterdam, Alkmaar, Haarlem, Zaandam, en zelfs de kust is binnen enkele minuten te bereiken.

Bijzonderheden:
– Praktisch ingedeeld tweekamerappartement in het gezellige Krommenie;
– Het complex beschikt over een lift;
– Woonkamer van circa 20 m² met ruimte voor een zithoek én eettafel;
– Balkon op het zuidoosten met zon van de ochtend tot in de middag;
– Badkamer met douche, eenvoudig om te bouwen tot inloopdouche;
– Slaapkamer met ruimte voor een groot bed en kastenwand;
– Externe berging ideaal voor fietsen en seizoenspullen;
– Ideaal gelegen ten opzichten van winkels, openbaar vervoer en uitvalswegen;
– Oplevering kan snel;

Interesse in dit huis? Schakel direct je eigen NVM-aankoopmakelaar in. Jouw NVM-aankoopmakelaar komt op voor jouw belang en bespaart je tijd, geld en zorgen. Adressen van collega NVM-aankoopmakelaars vind je op Funda.

Wat u verder moet weten:
– Verkoper verkoopt de woning voor eigen gebruik, welke persoon daar zijn/haar hoofdverblijf gaat hebben voor tenminste een periode van vijf jaar
– Verkoper verkoopt met anti-speculatiebeding (niet verhuren noch verkopen gedurende een periode van 2 jaar);
– Het betreft een voormalige huurwoning van Parteon;
– Niet-bewoning- en ouderdomsclausule van toepassing;
– Verkoper behoudt zich het recht van gunning voor tot tekenen van de koopakte;
– Verkoper verkoopt niet aan een belegger of koper met meer onroerend goed op zijn naam;
– Woningstichting Parteon werkt samen met de volgende 3 projectnotarissen:
– Zaan Notarissen (Zaandam, Wormerveer en Assendelft)
– Actus Notarissen (Zaandijk)
– Notariskantoor Ten Brinke (Assendelft)

Alles over deze woning
Overdracht
Prijs€ 255.000 k.k.
StatusVerkocht onder voorbehoud
AanvaardingIn overleg
Aangeboden sinds3 december 2025
Bouw
Type objectAppartement
Bouwjaar1967
SoortPortiekwoning
Woonlaag2
Dak typePlat dak
IsolatievormenMuurisolatie, Dubbelglas
Oppervlaktes en inhoud
Woonoppervlakte55 m2
Inhoud182 m3
Buitenruimtes gebouwgebonden of vrijstaand4 m2
Indeling
Aantal kamers2
Aantal slaapkamers1
Locatie
LiggingIn woonwijk
Tuin
AchteromNee
Uitrusting
Soorten warm waterCV ketel
Parkeer faciliteitenOpenbaar parkeren
Ik ben Corno Pronk, NVM Register Makelaar-Taxateur / Vestigingsmanager bij Brantjes Assendelft. Het plannen van een bezichtiging is de eerste stap in de zoektocht naar jouw droomhuis. Ik kijk ernaar uit je binnenkort te ontmoeten en je te helpen bij het vinden van jouw nieuwe thuis!

Plattegronden

Verken de locatie Kervelstraat 14
Ik ben Corno Pronk, NVM Register Makelaar-Taxateur / Vestigingsmanager bij Brantjes Assendelft. Het plannen van een bezichtiging is de eerste stap in de zoektocht naar jouw droomhuis. Ik kijk ernaar uit je binnenkort te ontmoeten en je te helpen bij het vinden van jouw nieuwe thuis!