Ga naar content

Kerkstraat 31

  • 83 m2 woonoppervlakte
  • 3 slaapkamers
  • Bouwjaar 1980

Wat een fijne plek om te wonen!

Dit goed onderhouden appartement ligt aan een rustig en sfeervol plein, met een prachtig vrij uitzicht op de Grote Kerk en de Wijkertoren. Dankzij het autoluwe karakter van het plein woon je hier heerlijk rustig, terwijl je toch midden in het gezellige centrum bent.

Het appartement is keurig onderhouden en beschikt over een eigen berging op de begane grond, ideaal voor het stallen van fietsen en het opbergen van extra spullen.

Op het zonnige balkon/terras, dat gunstig is gelegen op het zuiden, kun je volop genieten van de zon en het buitenleven. Een heerlijke plek om te ontspannen en te genieten van alles wat deze fijne woonomgeving te bieden heeft.

Kortom: een ideaal appartement voor wie centraal én rustig wil wonen!

Woonoppervlakte: ca. 83 m²
Gebouwgebonden buitenruimte: ca. 7 m²
Externe bergruimte: ca. 5 m²
Inhoud: 263 m³

Indeling:
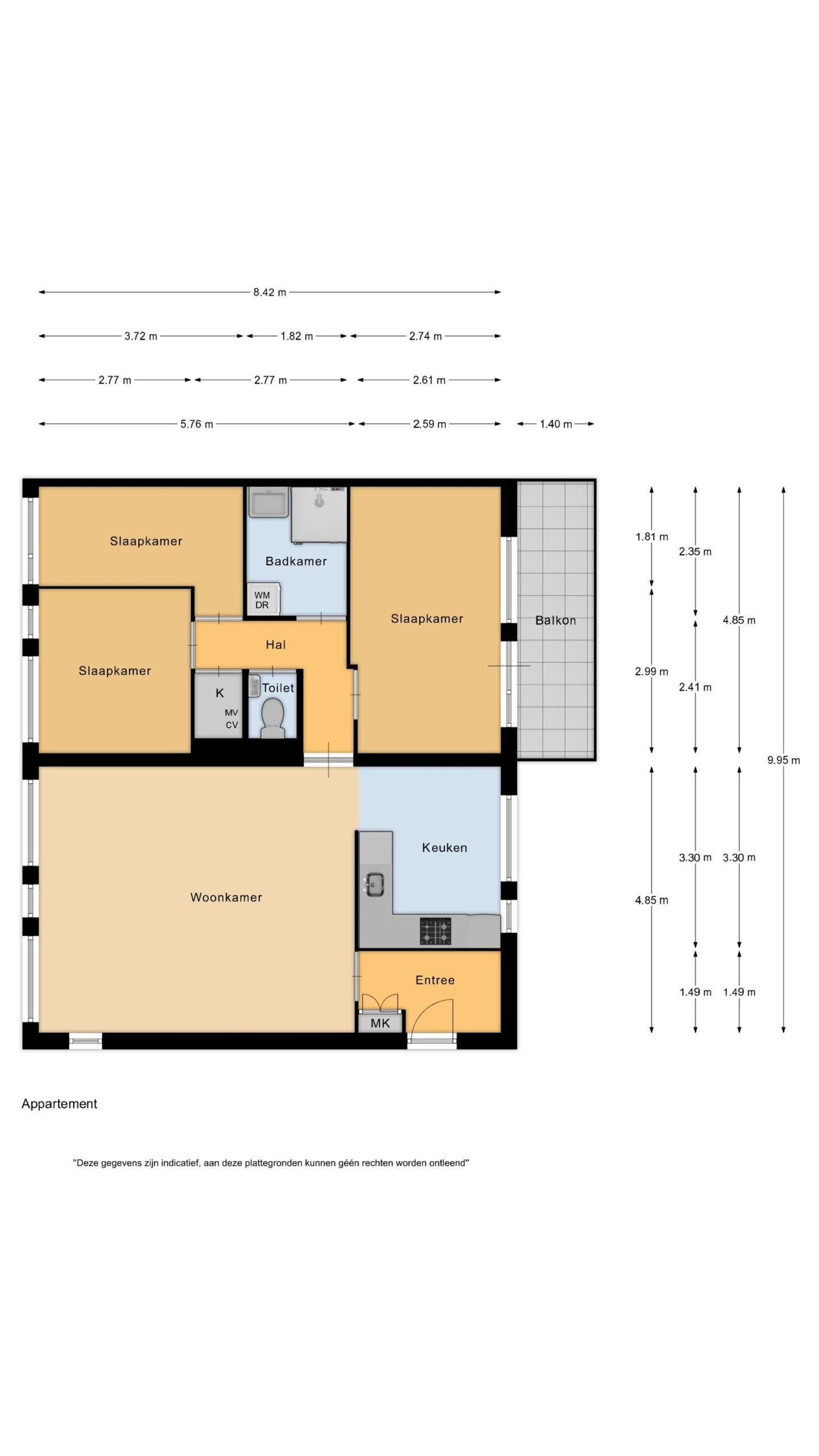
Het appartement is keurig verzorgd en dat merk je direct bij binnenkomst in de praktische hal. Vanuit hier bereik je de ruime woonkamer, waar het grote raam zorgt voor een fijne lichtinval en een prachtig uitzicht biedt op de Wijkertoren.

Aan de achterzijde bevindt zich de fraaie keuken, uitgevoerd in een moderne hoekopstelling met een gezellige bar waar koken en samenzijn hand in hand gaan.

Via de tussenhal zijn de overige vertrekken te bereiken, waaronder drie goed bemeten slaapkamers. Eén van de slaapkamers beschikt over een balkon, gunstig gelegen op het zuidwesten, waar je heerlijk van de middag- en avondzon kunt genieten. De badkamer is voorzien van een wastafelmeubel, douche, radiator en aansluitingen voor de wasmachine. Daarnaast beschikt het appartement over een apart toilet en een aparte ruimte met de opstelplaats voor de cv-ketel.

Bijzonderheden
– gelegen aan een rustig, autoluw en sfeervol plein in het hart van het centrum;
– goed onderhouden appartement;
– slaapkamers zijn voorzien van HR++ beglazing;
– zonnig balkon/terras op het zuiden;
– starterslening mogelijk;
– drie goed bemeten slaapkamers;
– eigen berging op de begane grond, ideaal voor fietsen en extra opslag;
– alle voorzieningen, winkels en horeca op loopafstand;
– oplevering half februari 2026;
– parkeren met parkeervergunning (ca. €27,- per jaar).

Interesse in dit huis? Schakel direct je eigen NVM-aankoopmakelaar in.
Jouw NVM-aankoopmakelaar komt op voor jouw belang en bespaart je tijd, geld en zorgen.
Adressen van collega NVM-aankoopmakelaars vind je op Funda.

Alles over deze woning
Overdracht
Prijs€ 329.000 k.k.
StatusVerkocht
AanvaardingIn overleg
Aangeboden sinds10 oktober 2025
Bouw
Type objectAppartement
Bouwjaar1980
SoortPortiekflat
Woonlaag1
Dak typeSamengesteld dak
IsolatievormenDakisolatie, Muurisolatie, Dubbelglas
Oppervlaktes en inhoud
Woonoppervlakte83 m2
Inhoud263 m3
Buitenruimtes gebouwgebonden of vrijstaand7 m2
Indeling
Aantal kamers4
Aantal slaapkamers3
Locatie
LiggingIn centrum, In woonwijk
Tuin
AchteromNee
Uitrusting
Soorten warm waterCV ketel
Parkeer faciliteitenOpenbaar parkeren, Parkeervergunningen
Virtuele tour
Ik ben Lars Verhoef, NVM Register Makelaar-Taxateur/ Regiomanager bij Brantjes Beverwijk. Het plannen van een bezichtiging is de eerste stap in de zoektocht naar jouw droomhuis. Ik kijk ernaar uit je binnenkort te ontmoeten en je te helpen bij het vinden van jouw nieuwe thuis!

Plattegronden

Verken de locatie Kerkstraat 31
Ik ben Lars Verhoef, NVM Register Makelaar-Taxateur/ Regiomanager bij Brantjes Beverwijk. Het plannen van een bezichtiging is de eerste stap in de zoektocht naar jouw droomhuis. Ik kijk ernaar uit je binnenkort te ontmoeten en je te helpen bij het vinden van jouw nieuwe thuis!