Ga naar content

Karl Marxstraat 3

  • 73 m2 woonoppervlakte
  • 4 slaapkamers
  • Bouwjaar 1962
  • 94 m2 perceel

Rustig wonen, maar toch alles binnen handbereik – je vindt het aan de Karl Marxstraat 3 in Zaandijk!

Ben je op zoek naar een fijne eengezinswoning waar je direct een heerlijk thuis van kunt maken? Aan de Karl Marxstraat in Zaandijk vind je precies dat. Een huis met een prettige indeling, een zonnige tuin op het zuiden en volop mogelijkheden om jouw eigen stijl eraan te geven.

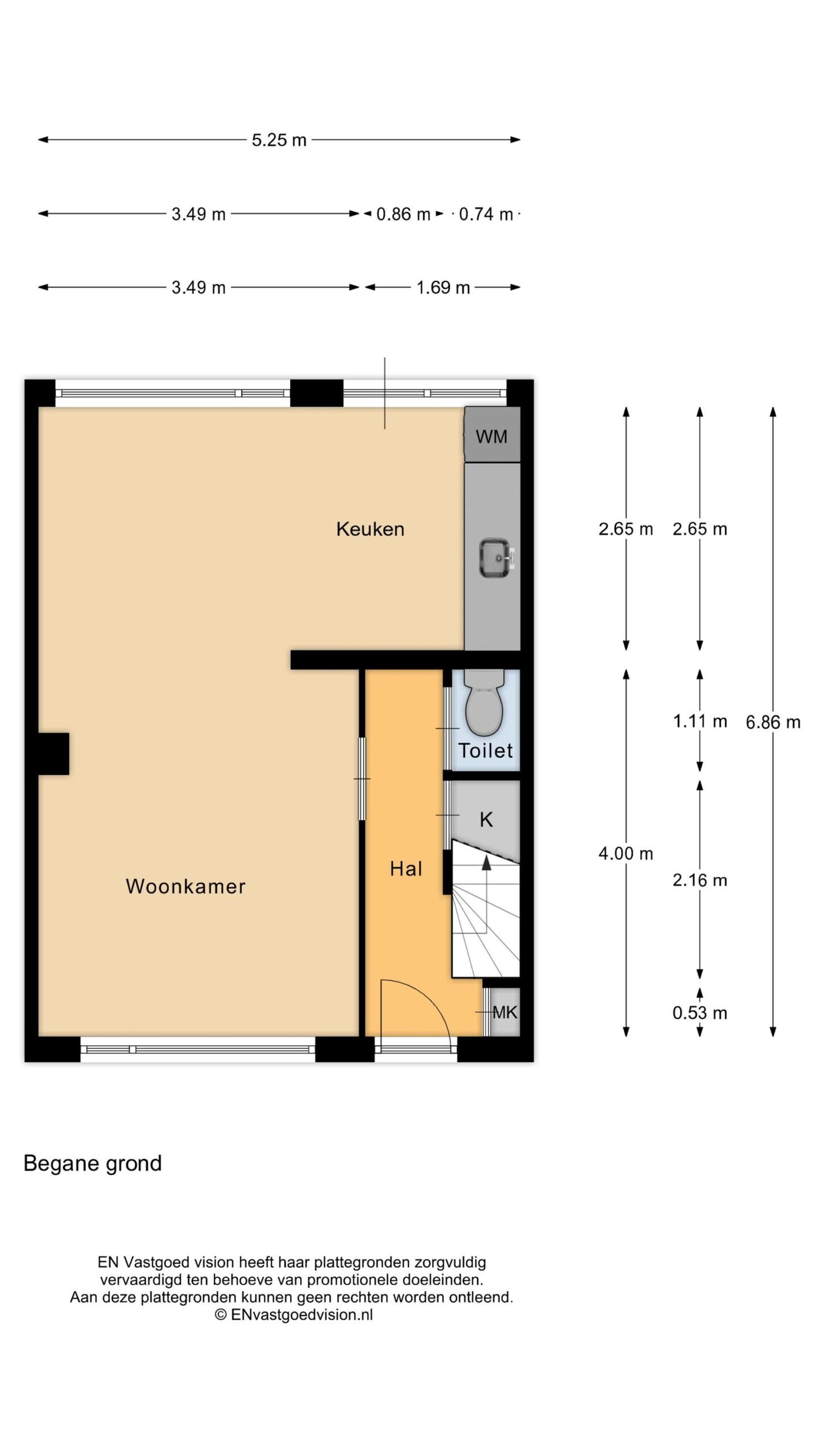
Wanneer je binnenkomt, valt direct de ruime en lichte woonkamer op. Dankzij de grote raampartij aan de voorzijde en de gunstige indeling voelt de ruimte open en uitnodigend aan. Er is volop plek voor een royale hoekbank waar je heerlijk kunt ontspannen na een lange dag, terwijl er aan de andere zijde nog voldoende ruimte is voor een grote eettafel. Hier geniet je van lange avonden tafelen met familie of vrienden, terwijl je de tuin in kijkt.

Aan de achterzijde bevindt zich de open keuken, die door de praktische opstelling en de verbinding met het eetgedeelte een fijne centrale plek vormt in huis. De keuken beschikt over diverse inbouwapparaten en biedt genoeg werkruimte om uitgebreid te koken. Vanuit de keuken stap je via de achterdeur zo de zonnige tuin in – ideaal wanneer je in de zomer buiten wilt eten of even met een kop koffie van de zon wilt genieten.

De achtertuin ligt gunstig op het zuiden, waardoor je hier de hele dag door zon hebt. Met een lengte van circa 8,5 meter is er ruimte genoeg voor zowel een gezellige loungehoek als een eettafelset. Achterin de tuin staat een stenen berging, perfect voor het stallen van fietsen of (tuin)gereedschap. Dankzij de achterom is de tuin ook via de achterzijde te bereiken – praktisch en prettig in het dagelijks gebruik.

Op de eerste verdieping zijn drie slaapkamers aanwezig. De grootste slaapkamer is ruim opgezet en biedt voldoende plek voor een tweepersoonsbed en een royale kastenwand. De tweede slaapkamer is eveneens goed bemeten, perfect als extra slaap- of kleedkamer. De derde kamer is ideaal als kinderkamer of werkkamer. De badkamer is functioneel ingedeeld en voorzien van een douche en wastafel.

Belangrijk is de bergzolder, nu nog bereikbaar via een vlizotrap. Deze ruimte van 17 m² geeft veel extra bergruimte, maar kan ook worden omgebouwd tot een volwaardige verblijfsruimte!

– Bouwjaar: 1962
– Woonoppervlakte: 73 m²
– Hoge zolderverdieping: 17 m²
– Perceeloppervlakte: 94 m² eigen grond
– Energielabel: G

De woning ligt in een rustige en kindvriendelijke woonwijk in Zaandijk, op korte afstand van allerlei voorzieningen. Op loopafstand vind je meerdere supermarkten, basisscholen en sportfaciliteiten, waaronder voetbalvelden en een fitnesscentrum. Ook het NS-station Zaandijk Zaanse Schans ligt vlakbij, waardoor je binnen circa 20 minuten met de trein in Amsterdam staat. Met de auto rijd je binnen enkele minuten naar de A8 en A7, die zorgen voor een uitstekende verbinding richting Amsterdam, Alkmaar en Purmerend. Daarnaast ligt het centrum van Zaandam met winkels, horeca en een bioscoop op slechts enkele minuten rijden.

Bijzonderheden
– Tussenwoning in het populaire Zaandijk;
– De woning beschikt over drie slaapkamers met de mogelijkheid tot een vierde;
– Voorzien van kunststof kozijnen;
– Ruime achtertuin gelegen op het zuiden;
– Voorzien van extra bergzolder;
– Oplevering kan spoedig.

Interesse in dit huis? Schakel direct jouw eigen NVM-aankoopmakelaar in. Jouw NVM-aankoopmakelaar komt op voor jouw belang en bespaart je tijd, geld en zorgen. Adressen van collega NVM-aankoopmakelaars vind je op funda.nl.

Wat u verder moet weten:
– Verkoper verkoopt de woning voor eigen gebruik, welke persoon daar zijn/haar hoofdverblijf gaat hebben voor tenminste een periode van vijf jaar
– Verkoper verkoopt met anti-speculatiebeding (niet verhuren noch verkopen gedurende een periode van 2 jaar);
– Het betreft een voormalige huurwoning van Parteon;
– Niet-bewoning- en ouderdomsclausule van toepassing;
– Verkoper behoudt zich het recht van gunning voor tot tekenen van de koopakte;
– Verkoper verkoopt niet aan een belegger of koper met meer onroerend goed op zijn naam;
– Woningstichting Parteon werkt samen met de volgende 3 projectnotarissen:
– Zaan Notarissen (Zaandam, Wormerveer en Assendelft)
– Actus Notarissen (Zaandijk)
– Notariskantoor Ten Brinke (Krommenie)

VOORRANGSREGELING PARTEON

Als sociale huurder (bij Parteon of een andere corporatie in de gemeente Zaanstad) krijg je vaak voorrang op de koopwoningen die wij aanbieden. Dit doen wij, omdat wij streven naar een passende woning voor zoveel mogelijk mensen. De woning die wordt achtergelaten kan dan weer aangeboden worden aan mensen die op de wachtlijst staan voor een betaalbare huurwoning. Zo krijgen meer mensen de kans om te wonen in een huis die past bij hun situatie.

Zijn er meerdere huurders die hebben geboden? Dan krijgt de huurder met het hoogste bod (in een bepaalde voorrangscategorie) voorrang. De voorrang is tot de uiterste inschrijfdatum bij een inschrijving geldig, voor deze woning geldt een uiterste inschrijfdatum van 25 november 2025 om 12:00 uur.

Wil je aanspraak maken op de voorrang? Lees dan goed door of je in aanmerking komt voor de koopvoorrang regeling via parteon.nl/ik-wil-huren/koopwoningen/koopvoorrang-voor-huurders , geef je huidige woonsituatie op bij de bezichtigingsaanvraag en meld het bij het uitbrengen van je bod bij de makelaar. De voorrangsregeling vervalt bij een bod onder de vraagprijs. Let op; voorrang betekent dat we met u als eerste in gesprek zullen gaan. We verkopen de woning niet onder de getaxeerde marktwaarde, en deze kan hoger zijn dan de vraagprijs.

Alles over deze woning
Overdracht
Prijs€ 350.000 k.k.
StatusBeschikbaar
AanvaardingIn overleg
Aangeboden sinds28 oktober 2025
Bouw
Type objectWoonhuis
SoortEengezinswoning
TypeTussenwoning
Bouwjaar1962
Dak typeZadeldak
IsolatievormenDubbelglas
Oppervlaktes en inhoud
Perceel94 m2
Woonoppervlakte73 m2
Inhoud313 m3
Buitenruimtes gebouwgebonden of vrijstaand2 m2
Tuinoppervlakte49 m2
Indeling
Aantal kamers4
Aantal slaapkamers4
Locatie
LiggingIn woonwijk
Tuin
TypeAchtertuin
StaatNormaal
LiggingZuid
AchteromJa
Uitrusting
Soorten warm waterCV ketel
Parkeer faciliteitenOpenbaar parkeren
Ik ben Corno Pronk, NVM Register Makelaar-Taxateur / Vestigingsmanager bij Brantjes Assendelft. Het plannen van een bezichtiging is de eerste stap in de zoektocht naar jouw droomhuis. Ik kijk ernaar uit je binnenkort te ontmoeten en je te helpen bij het vinden van jouw nieuwe thuis!

Plattegronden

Verken de locatie Karl Marxstraat 3
Ik ben Corno Pronk, NVM Register Makelaar-Taxateur / Vestigingsmanager bij Brantjes Assendelft. Het plannen van een bezichtiging is de eerste stap in de zoektocht naar jouw droomhuis. Ik kijk ernaar uit je binnenkort te ontmoeten en je te helpen bij het vinden van jouw nieuwe thuis!