Ga naar content

Kadijk 13

  • 151 m2 woonoppervlakte
  • 4 slaapkamers
  • Bouwjaar 2009
  • 163 m2 perceel

Wonen aan het park, met de zon in je tuin en alles binnen handbereik: aan de Kadijk 13 in de geliefde Broekpolder voel je je meteen thuis. Je woont hier pal aan park Vlaskamp, in een rustige en kindvriendelijke straat waar spelen, wandelen en groen vanzelfsprekend zijn.

Bij binnenkomst merk je het meteen: ruimte en licht. Aan de voorzijde kook je in de moderne, witte SieMatic-keuken met inbouwapparatuur, terwijl je tegelijk uitkijkt over de straat en park Vlaskamp. De uitgebouwde woonkamer is een fijne leefruimte met een warme houten vloer en royale openslaande deuren naar de achtertuin. Het moderne toilet op de begane grond sluit naadloos aan op de eigentijdse afwerking. Buiten geniet je van een zonnige tuin op het zuidwesten, waar je tot in de avond lekker zit. Helemaal achterin staat een praktische berging voor je fietsen en tuingereedschap.

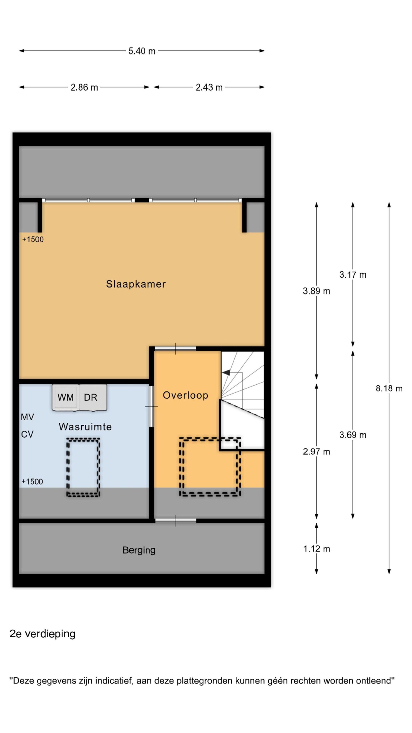
Boven vind je drie slaapkamers op de eerste verdieping, met de grootste kamer aan de voorzijde. De badkamer is modern, uitgevoerd in dezelfde smaakvolle kleurstelling als het toilet beneden en voorzien van een toilet, inloopdouche en wastafel. Op de tweede verdieping is een ruime overloop met een aparte wasruimte waar ook de cv-opstelling staat. Aan de achterzijde ligt een vierde slaapkamer met dakkapel: heerlijk licht en verrassend ruim.

De ligging is ideaal als je comfortabel én kindvriendelijk wilt wonen. Scholen en kinderopvang zijn op korte afstand, net als diverse speelplekken en sportverenigingen. Voor je dagelijkse boodschappen fiets je zo naar de winkels in Broekpolder; ook horecagelegenheden en andere voorzieningen zijn dichtbij. In je vrije tijd trek je de natuur in: park Vlaskamp ligt letterlijk aan je voeten en de duinen en groene polders rondom Heemskerk nodigen uit tot hardlopen, wandelen en fietsen.

Reis je regelmatig? Station Heemskerk ligt op loopafstand, met goede verbindingen richting Haarlem, Amsterdam en Alkmaar. Met de auto zit je snel op de uitvalswegen zoals de A9 en A22, waardoor woon-werkverkeer prettig en voorspelbaar is.

Kortom, aan de Kadijk woon je ruim, licht en groen, met de stadse gemakken op fietsafstand. Kom kijken en ervaar zelf hoe fijn het hier woont.

Bouwjaar: 2009
Woonoppervlakte: ca. 151 m2
Externe bergruimte: ca. 9 m2
Perceelgrootte: 163 m2
Energielabel: A

Bijzonderheden:
– Uitgebouwde gezinswoning;
– Vrij uitzicht aan de voorzijde over blijvend groen:
– station op 2 minuten lopen met goede bereikbaarheid naar Haarlem. Amsterdam en Alkmaar;
– 4 slaapkamers;
– Zonnige tuin op het zuidwesten;
– Ruime woonkamer;
– Moderne SieMatic-keuken;
– Aparte wasruimte;
– Ideale ligging t.o.v. de winkels, scholen en sportvoorzieningen;
– Oplevering in overleg.

Interesse in dit huis? Schakel direct je eigen NVM-aankoopmakelaar in. Jouw NVM-aankoopmakelaar komt op voor jouw belang en bespaart je tijd, geld en zorgen. Adressen van collega NVM-aankoopmakelaars vind je op Funda.

Alles over deze woning
Overdracht
Prijs€ 625.000 k.k.
StatusBeschikbaar
AanvaardingIn overleg
Aangeboden sinds21 januari 2026
Bouw
Type objectWoonhuis
SoortEengezinswoning
TypeTussenwoning
Bouwjaar2009
Dak typeZadeldak
IsolatievormenVolledig geïsoleerd
Oppervlaktes en inhoud
Perceel163 m2
Woonoppervlakte151 m2
Inhoud535 m3
Buitenruimtes gebouwgebonden of vrijstaand0 m2
Indeling
Aantal kamers5
Aantal slaapkamers4
Locatie
LiggingAan park, In woonwijk, Vrij uitzicht
Tuin
TypeAchtertuin
StaatNormaal
LiggingZuidwest
AchteromJa
Uitrusting
Soorten warm waterCV ketel
Parkeer faciliteitenOpenbaar parkeren
Virtuele tour
Ik ben Raymond Westra, NVM Register Makelaar bij Brantjes Heemskerk. Het plannen van een bezichtiging is de eerste stap in de zoektocht naar jouw droomhuis. Ik kijk ernaar uit je binnenkort te ontmoeten en je te helpen bij het vinden van jouw nieuwe thuis!

Plattegronden

Verken de locatie Kadijk 13
Ik ben Raymond Westra, NVM Register Makelaar bij Brantjes Heemskerk. Het plannen van een bezichtiging is de eerste stap in de zoektocht naar jouw droomhuis. Ik kijk ernaar uit je binnenkort te ontmoeten en je te helpen bij het vinden van jouw nieuwe thuis!