Ga naar content

Guurtjesmarken 41

  • 79 m2 woonoppervlakte
  • 3 slaapkamers
  • Bouwjaar 1984
  • 128 m2 perceel

Gelegen in een rustig en autoluw hofje zonder doorgaand verkeer vind je een plek waar kinderen veilig en vrij kunnen spelen en waar rust en wooncomfort centraal staan.

De woning beschikt over een woonoppervlakte van 79 m² en is gelegen op een perceel van 128 m². Met drie slaapkamers, een zonnige tuin en meerdere bergingen is dit een ideale woning voor starters en jonge gezinnen.

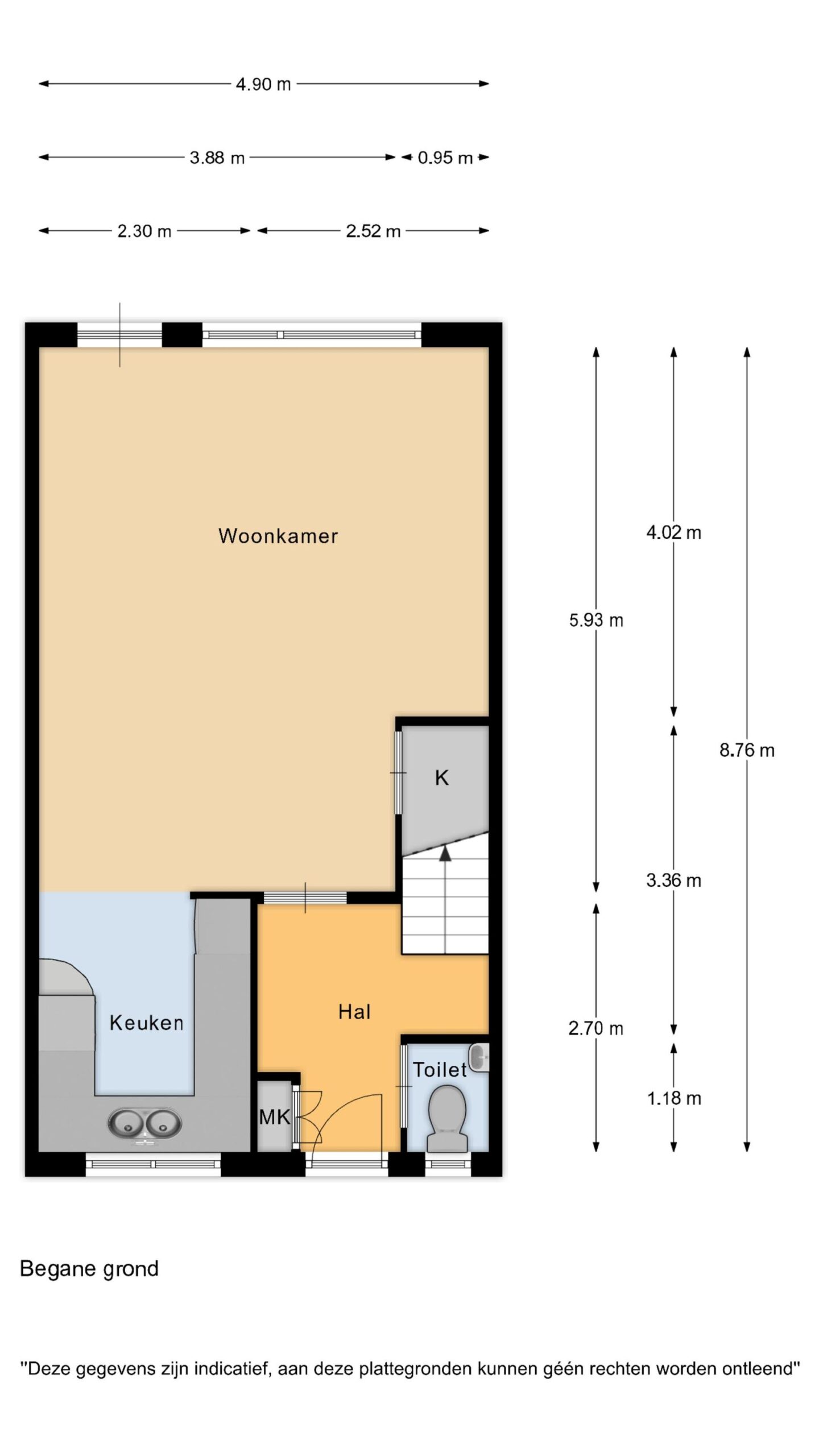
Laten we binnen een kijkje nemen. Op de begane grond tref je aan de achterzijde een mooie, grote raampartij aan, die zorgt voor een prachtige lichtinval in de woonkamer. De woonkamer heeft een prettige indeling en staat in open verbinding met de U-vormige keuken, die uitkijkt op de rustige binnenplaats van het hofje. De keuken wordt verwarmd middels vloerverwarming.

Op de verdieping bevinden zich drie slaapkamers, waarvan twee ruim zijn uitgevoerd en een derde kamer die uitstekend kan dienen als thuiswerkplek, kinderkamer of walk-in closet. De badkamer, tevens wasruimte, is voorzien van een loopdouche en wastafel en beschikt over zowel natuurlijke als mechanische ventilatie. Daarnaast biedt de badkamer volop mogelijkheden om deze geheel naar eigen wens en smaak te moderniseren.

Via de vlizotrap betreed je de ruime zolderverdieping, die momenteel in gebruik is als bergzolder. Deze verdieping biedt uitstekende mogelijkheden om uit te bouwen met een dakopbouw, waarmee extra woonruimte kan worden gecreëerd, zoals een extra slaapkamer, werkruimte of hobbykamer.

Vanuit de woonkamer heb je toegang tot de prachtige achtertuin, die netjes is aangelegd met een grasmat, mooie sierplanten en een strak en stevig tuinpad van grote terrastegels. De tuin is gelegen op het noordwesten. Doordat er geen direct achtergelegen bebouwing is en er in 2025 een nieuwe schutting is geplaatst, geniet je hier tot in de avonduren van de zon én van een vrij en open gevoel zonder inkijk van achterburen. In de tuin bevindt zich een houten berging met daarop zes zonnepanelen, ideaal voor de opslag van klusmaterialen en tuingereedschap. Daarnaast beschikt de woning over een gemetselde (fiets)berging aan de voorzijde, wat zorgt voor extra praktische bergruimte.

Kortom: een comfortabele en energiezuinige woning op een rustige en kindvriendelijke locatie, met volop mogelijkheden om deze geheel naar eigen smaak te moderniseren.

Bouwjaar: 1984
Woonoppervlakte: 79 m²
Perceeloppervlakte: 128 m²
Energielabel: B

De ligging van Guurtjesmarken 41 in Assendelft is zeer praktisch. Voor de dagelijkse boodschappen vind je diverse supermarkten in de nabijheid. Ook de basisschool ligt op loopafstand en er zijn diverse sportverenigingen in de omgeving. De woning is goed bereikbaar met zowel de auto als het openbaar vervoer. Met de auto ben je binnen circa 15 minuten in Zaandam, 25 minuten in Amsterdam en bereik je Alkmaar of de kust in ongeveer 30 minuten. Ook voor forenzen is dit een ideale locatie. Het NS-station Krommenie-Assendelft en NS-station Zaandam bieden uitstekende treinverbindingen richting onder andere Amsterdam, Alkmaar en Beverwijk. Amsterdam Centraal is per trein in circa 25 minuten bereikbaar.

Bijzonderheden:
– Gelegen in een rustig en autoluw hofje;
– Drie slaapkamers op de verdieping;
– Zeer ruime bergzolder;
– Gemetselde berging aan de voorzijde;
– Ruime achtertuin met berging;
– Vernieuwd buitenschilderwerk in 2024 (kozijnen, ramen en deuren);
– Gevelpanelen vervangen door Keralit;
– Voorzien van zes zonnepanelen;
– Gunstige ligging ten opzichte van uitvalswegen en voorzieningen;
– De woning is belast met erfpacht; de kosten bedragen € 1.137,50 per half jaar (per maand: €189,53);
– Oplevering in overleg.

Interesse in dit huis? Schakel direct je eigen NVM-aankoopmakelaar in. Jouw NVM-aankoopmakelaar komt op voor jouw belangen en bespaart je tijd, geld en zorgen. Adressen van collega NVM-aankoopmakelaars vind je op Funda.

Alles over deze woning
Overdracht
Prijs€ 350.000 k.k.
StatusOnder bod
AanvaardingIn overleg
Aangeboden sinds26 januari 2026
Bouw
Type objectWoonhuis
SoortEengezinswoning
TypeTussenwoning
Bouwjaar1984
Dak typeZadeldak
IsolatievormenDakisolatie, Muurisolatie, Vloerisolatie, Gedeeltelijk dubbelglas
Oppervlaktes en inhoud
Perceel128 m2
Woonoppervlakte79 m2
Inhoud316 m3
Buitenruimtes gebouwgebonden of vrijstaand0 m2
Tuinoppervlakte78 m2
Indeling
Aantal kamers4
Aantal slaapkamers3
Locatie
LiggingIn woonwijk
Tuin
TypeAchtertuin
StaatFraai aangelegd
LiggingNoordwest
AchteromJa
Uitrusting
Soorten warm waterCV ketel
Parkeer faciliteitenOpenbaar parkeren
Virtuele tour
Ik ben Corno Pronk, NVM Register Makelaar-Taxateur / Vestigingsmanager bij Brantjes Assendelft. Het plannen van een bezichtiging is de eerste stap in de zoektocht naar jouw droomhuis. Ik kijk ernaar uit je binnenkort te ontmoeten en je te helpen bij het vinden van jouw nieuwe thuis!

Plattegronden

Verken de locatie Guurtjesmarken 41
Ik ben Corno Pronk, NVM Register Makelaar-Taxateur / Vestigingsmanager bij Brantjes Assendelft. Het plannen van een bezichtiging is de eerste stap in de zoektocht naar jouw droomhuis. Ik kijk ernaar uit je binnenkort te ontmoeten en je te helpen bij het vinden van jouw nieuwe thuis!